Prenájom bytu 3+1 • 83 m² bez realitkySt.-Moritz-Str. 2, , Bavorsko
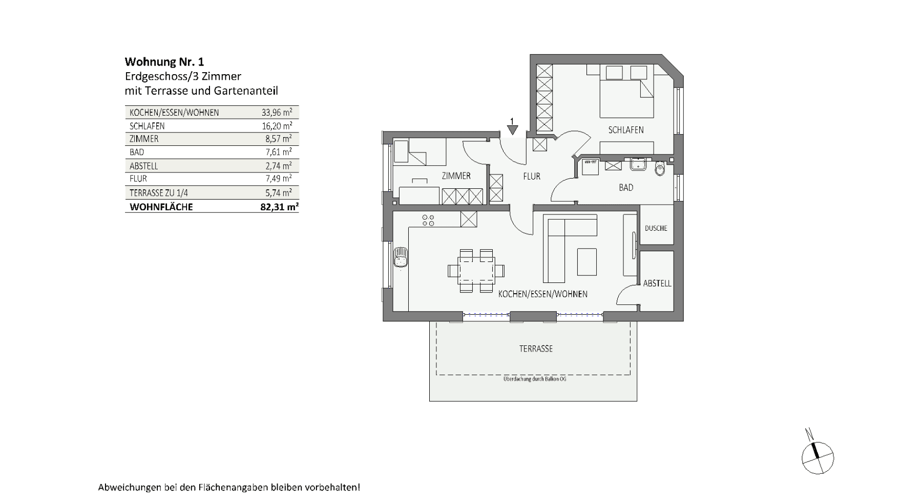
St.-Moritz-Str. 2, , BavorskoMHD 3 minúty pešo • Parkovanie • GarážByt v prvom poschodí sa vyznačuje nadštandardným interiérom. K bytu patria tri krásne izby a veľký prístreškovaný južný balkón. Otvorený obývací/variaciový a jedálenský priestor láka na spoločné varenie a oddych. Na priestrannom južnom balkóne (rozmery: cca 7 x 2 m) si môžete pokojne dopriať koniec dňa. Nenostávajú tu žiadne želania neuspokojené – či už sa jedná o slnečnú lehátko alebo gril, tu všetko nájde svoje miesto.
V úložnej miestnosti si môžete pohodlne uskladniť svoje zásoby.
Rovnako praktická je aj pivnica, ktorá poskytuje úložný priestor pre vaše veci.
Pohodlne zaparkovať môžete v individuálnej garáži s elektrickým pohonom dverí (nájom: € 60).
Nehnuteľnosť sa nachádza v peknej časti Buchloe-Honsolgen. Máte všetky výhody bývania v prírode, ale zároveň ste dobre napojení na centrum Buchloe, ako aj na diaľnicu A96. Diaľničnú pripojovaciu stanicu A96/Buchloe Ost dosiahnete približne za 5 minút. Je to ideálne riešenie pre dochádzajúcich do Mníchova alebo Augsburgu.
Dopravné spojenie:
- Mníchov: cca 45 minút
- Augsburg: cca 40 minút
- Füssen: cca 1 hodina
- Landsberg am Lech: cca 10 minút
- Türkheim: cca 14 minút
Miestna železničná stanica v centre Buchloe hrá kľúčovú úlohu v regionálnej aj nadregionálnej železničnej doprave, s priamymi spojeniami do Mníchova, Augsburgu, Lindau a do Allgäu. Letisko Memmingen je dostupné autom približne za 30 minút.
V Buchloe nájdete:
Reštaurácie, kaviarne, zmrzlináreň, supermarkety, obchody s odevmi, čerpacie stanice, autodílnu, pekáreň, lekárne, ihrisko, materské školy, základnú školu, gymnázium, reálnu školu, strednú školu, vonkajší bazén, krytý bazén, lekárov, fyzioterapiu, zdravotnícky obchod, nemocnicu, športové kluby, hasičov a mnoho ďalších.
Prehľad vybavenia
– Masívna konštrukcia
– Podlahové kúrenie
– Kúrenie: vzduch-voda tepelné čerpadlo
– Zmäkčovač vody
– Domofón s kamerou
– Ventilačný systém s rekuperáciou tepla (decentrálny)
– Drevené izolačné okná z jedľového dreva s trojnásobným zasklením
– Veľký balkón (zábradlie: jedľové drevo, podlaha: WPC terasové dosky)
– Okenné parapety (vnútorné) z prírodného kameňa
– Elektrické rolietové žalúzie a lamely
– Dizajnová vinylová podlaha
– Krásne biele vnútorné dvere
– Vchodové dvere bytu: zvuková izolácia triedy 3
– SAT – systém
– Kúpeľňa s oknom a prípojkou na práčku
– Úložná miestnosť v byte
– Jeden pivničný priestor patrí bytu
– Miestnosť na bicykle je k dispozícii pre všetkých obyvateľov domu
Máte záujem?
Prosíme, pošlite nám písomnú správu s vašimi kontaktnými údajmi a niekoľkými krátkymi informáciami o sebe.
Pri podávaní žiadosti o prenájom bytu vás žiadame, aby ste pripravili nasledujúce dokumenty (v kópii):
• Vyplnený dotazník pre nájomcu
• Kópia občianskeho preukazu (predná a zadná strana)
• Aktuálny výpis zo Schufy (nesmie byť starší ako 3 mesiace)
• Výplatné pásky za posledné 3 mesiace alebo porovnateľný dôkaz príjmu
Poznámky:
– Chov domácich zvierat v nehnuteľnosti bohužiaľ nie je povolený.
– Nájomná zmluva bude uzatvorená ako stupňovacia nájomná zmluva.
– Obrázky zodpovedajú predstave ilustrátora. Skutočná realizácia sa môže líšiť od zobrazenia. Nábytok slúži len na ilustráciu a nie je zahrnutý v cene prenájmu.
Parametre nehnuteľnosti
| Vek | Nad 50 rokov |
|---|---|
| Dispozícia | 3+1 |
| PENB | A - Mimoriadne úsporné |
| Cena za jednotku | 14 € / m2 |
| Dostupné od | 1. 2. 2026 |
|---|---|
| Číslo inzerátu | 967232 |
| Úžitková plocha | 83 m² |
Čo táto nehnuteľnosť ponúka?
| Balkón | |
| Garáž | |
| MHD 3 minúty pešo |
| Pivnica | |
| Parkovanie | |
| Terasa |
V okolí nehnuteľnosti nájdete
Stále hľadáte to pravé?
Nastavte si strážneho psa. Ponuky vybrané na mieru dostanete súhrnne 1× denne e-mailom. S Premium profilom máte po ruke rovno 5 strážcov a keď sa niečo objaví, informujú vás obratom.







