Predaj domu 2+1 • 56 m² bez realitky, Dolné Sasko
, Dolné SaskoMHD 3 minúty pešo • ParkovanieIn Sandhorste vzniká od februára 2025 na približne 679 m² veľkom vlastníckom pozemku, približne 900 metrov od lesa, tento atraktívny dvojdomový bungalov so 2 kvalitnými jednotkami. Renomovaný developer a všetky remeselné firmy sú odborné spoločnosti z regiónu. Tento bungalov má približne 56 m² obytného priestoru.
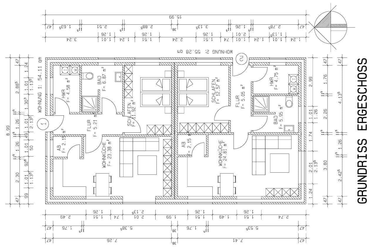
V prízemí sa nachádza priestranná, svetlom naplnená „obytná kuchyňa“ s podlahovými oknami a priamym vstupom na terasu. Jedna spálňa, kúpeľňa, úložná miestnosť na zásoby, práčovňa s pripojením pre práčku a chodba dopĺňajú prízemie.
Celý priestorový program nájdete v priložených náčrtkoch pôdorysu.
Celý dom je vybavený podlahovým vykurovaním. Medzi ďalšie výhody patrí decentralizovaný systém prívodu a odvodu vzduchu značky Bosch s rekuperáciou tepla, trojsklo z plastových okien (antracit) s elektrickými rolety, vzduchová tepelná pumpa od Boschu, satelitný prijímač a domové prípojky. Všetky stropy v prízemí budú tapetované s rauhfaser tapetou a natreté, pričom steny budú natreté bielou farbou. Medziz nosníkovou stropnou konštrukciou bude izolovaný priestor a na podkroví vám zostávajú ďalšie možnosti rozšírenia. Podlahy v prízemí – v chodbe, priestore „obývanie, jedáleň a varenie“, v úložnej miestnosti aj spálni – budú vybavené vinylovými dizajnovými podlahovými krytinami (štandardná inštalácia). Kúpeľňa s prístupnou sprchou a práčovňa budú obložené obkladmi. Vonkajšie úpravy vrátane dlažby chodníkov, parkovacieho miesta a terasy, ako aj zariadenie záhrady (sejba trávnika), prevezmeme my. Zabudovaná kuchyňa nie je zahrnutá v cene, no môže byť dodatočne ponúknutá.
Tento skvelý dvojdomový bungalov bude obložený kvalitným klinkerom (Röben „Sheffield“) a strecha bude krytá čiernymi strešnými taškami.
Vo vonkajšej časti máte k dispozícii vlastný záhradný pozemok, terasu a parkovacie miesto pre automobil.
Kúpna cena neobsahuje províziu pre kupujúceho. Ponuková cena vo výške 269 000 € sa vzťahuje na jednotku č. 2 (zadná, s väčším podielom záhrady, 481 m² pozemku). Predná jednotka č. 1 je už predaná.
Energetický preukaz bude záujemcovi pri obhliadke odovzdaný alebo dodaný neskôr!
Tento pozemok sa nachádza v pokojnej rezidenčnej oblasti, približne 800 metrov od závodu Enercon. V okruhu približne 900 metrov sa nachádza les.
Parametre nehnuteľnosti
| Vek | Nad 50 rokov |
|---|---|
| Číslo inzerátu | 966805 |
| Úžitková plocha | 56 m² |
| Cena za jednotku | 4 804 € / m2 |
| Dispozícia | 2+1 |
|---|---|
| PENB | A - Mimoriadne úsporné |
| Plocha pozemku | 481 m² |
Čo táto nehnuteľnosť ponúka?
| Parkovanie | |
| Terasa |
| MHD 3 minúty pešo |
V okolí nehnuteľnosti nájdete
Stále hľadáte to pravé?
Nastavte si strážneho psa. Ponuky vybrané na mieru dostanete súhrnne 1× denne e-mailom. S Premium profilom máte po ruke rovno 5 strážcov a keď sa niečo objaví, informujú vás obratom.









