Prenájom bytu 4+1 • 139 m² bez realitkyGartenstraße 15, , Šlezvicko-Holštajnsko
Gartenstraße 15, , Šlezvicko-HolštajnskoMHD 3 minúty pešoTáto 5-izbový byt sa nachádza na zvýšenej prízemnej úrovni (Hochparterre) pôvabného viacfamilijného domu z roku 1964.
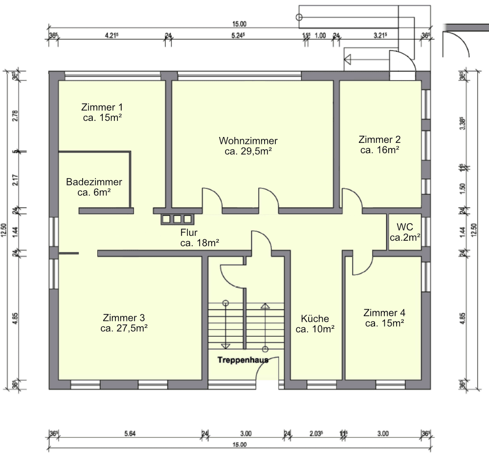
Celková obytná plocha bytu je približne 139 m². Pôdorys je praktický a dobre premyslený: Z chodby sa dostanete do priestrannej obývacej izby, štyroch ďalších izieb, kuchyne, kúpeľne a samostatného WC.
Izby sú svetlé a priestranne navrhnuté. Byt je ideálny pre rodiny alebo páry, ktoré si želajú veľa priestoru a jasné členenie miestností.
Budova sa nachádza v centre v skutočne výbornom umiestnení mesta Bad Segeberg. Z veľmi pokojnej lokality na Gardenstraße je to len kúsok chôdze do rušnej pešej zóny s pestrou gastronómiou a rozsiahlymi nákupnými príležitosťami. Tak sa dá Kurhausstraße prejsť pešo za menej ako 5 minút, obľúbená Kirchstraße alebo týždenný trh za menej ako 10 minút. V pešej vzdialenosti sa nachádza aj niekoľko ambulancií, nemocnice Segeberger Kliniken, ako aj rôzne školy a materské školy. Len pár minút odtiaľ sa nachádza veľké Segeberger jazero, ktoré láka na prechádzky a disponuje požičovňou pedálových lodí, vonkajším bazénom a vlastným plachetnicárskym klubom.
Bad Segeberg, s viac ako 16 000 obyvateľmi, je tretím najväčším mestom okrsku Segeberg. Leží s vynikajúcim prístupom na diaľnice v trojuholníku medzi Kiel (A21), Lübeck (A20) a Hamburgom (A21). Do Neumünster sa dostanete autom za pol hodiny cez cestnú značku B 205. Prostredníctvom Bad Oldesloe je možné pohodlne a rýchlo vlakom dosiahnuť Hamburg a Lübeck. Spojenie vlakom do Neumünster prebieha dokonca bez prestupu.
Avšak nie je to len poloha, ktorá robí Bad Segeberg tak atraktívnym. Mimo hraníc mesta je Bad Segeberg známe aj vďaka každoročným Karl-May festivalom na 91 metrov vysokej vápencovej hore Kalkberg. Návštevníci aj obyvatelia sa okrem dobrých nákupných možností môžu tešiť aj z rozsiahlej ponuky kultúrnych a voľnočasových aktivít. Medzi príklady patria výstava “Fledermaus Erlebnisausstellung”, múzeum Alt-Segeberger Bürgerhaus, jaskyne Kalkberg a kostol Marienkirche. Počas roka sa koná množstvo rôznych festivalov a aktivít, napríklad Segeberger Kultursommer alebo letné koncerty na amfiteátri.
Celonárodne známa spoločnosť Möbel-Kraft AG má tu svoje sídlo, rovnako aj Kassenärztliche Vereinigung a Ärztekammer Schleswig-Holsteinu. Mesto disponuje viacerými školami vrátane školskej dospelosti (Volkshochschule).
Byt je celkovo vo veľmi dobrom stave. Steny sú natreté bielou farbou a podlahy sú prevažne z ľahko udržiavateľného laminátu. V kuchyni a kúpeľni sú položené dlaždice. Kuchyňa je pohodlne dostupná cez chodbu. Veľké okná zabezpečujú dostatok denného svetla. Heizungsanlage a ohrevné zariadenie domu boli úplne obnovené až v roku 2025.
Byt je momentálne prenajatý agentúre poskytujúcej ošetrovanie a bude k dispozícii najskôr od 1. januára 2026. Existujúca kúpeľňa bude ešte pred nasťahovaním zrekonštruovaná a v priestore vyznačenom na pôdoryse (kuchyňa 10 m²) bude inštalovaná úplne nová kuchyňa. Kuchyňa zobrazená na fotkách je len provizórna "kancelárska kuchyňa" súčasného nájomcu.
Minimálna doba prenájmu je 12 mesiacov. V prípade otázok a pri dohodnutí termínu nás neváhajte kedykoľvek kontaktovať. Pri dopyte nám môžete uviesť aj najdôležitejšie informácie (príjem, počet obyvateľov, želaný termín nasťahovania atď.), aby sme mohli váš dopyt čo najefektívnejšie vybaviť.
Parametre nehnuteľnosti
| Vek | Nad 50 rokov |
|---|---|
| Dispozícia | 4+1 |
| PENB | G - Mimoriadne nehospodárne |
| Cena za jednotku | 10 € / m2 |
| Stav | Dobrý |
|---|---|
| Číslo inzerátu | 966739 |
| Úžitková plocha | 139 m² |
Čo táto nehnuteľnosť ponúka?
| MHD 3 minúty pešo |
V okolí nehnuteľnosti nájdete
Stále hľadáte to pravé?
Nastavte si strážneho psa. Ponuky vybrané na mieru dostanete súhrnne 1× denne e-mailom. S Premium profilom máte po ruke rovno 5 strážcov a keď sa niečo objaví, informujú vás obratom.









