
Predaj domu 5+1 • 141 m² bez realitky, Dolné Sasko
, Dolné SaskoMHD 2 minúty pešo • ParkovanieCena319 000 €
Preložené AI
Len približne 2 km od BS sa nachádza rodinný dom s úplným suterénom, ktorý je časťou potrebný na rekonštrukciu.
V cene je zahrnuté rozdelenie pozemku, nový katastrálny plán a pre objekt vypracovaný plán rekonštrukcie od stavebného znalca.
Tento balík vhodný na zábezpeku poskytuje istotu a zabezpečí rýchle rozhodnutie zo strany bank.
Prípadne požadovaná vlastná práca bude odmenená plnou remeselníckou cenou.
Jednoducho si dohodnite obhliadku.
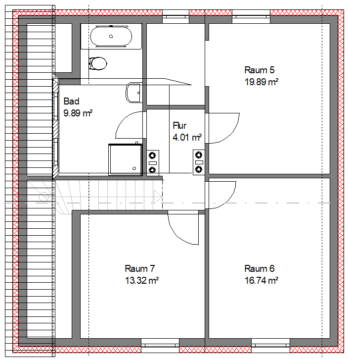
Parametre nehnuteľnosti
| Vek | Nad 50 rokov |
|---|---|
| Číslo inzerátu | 966286 |
| Úžitková plocha | 141 m² |
| Celkové poschodia | 2 |
| Dispozícia | 5+1 |
|---|---|
| PENB | D - Menej hospodárne |
| Plocha pozemku | 645 m² |
| Cena za jednotku | 2 262 € / m2 |
Čo táto nehnuteľnosť ponúka?
| Pivnica | |
| MHD 2 minúty pešo |
| Parkovanie | |
| Terasa |
V okolí nehnuteľnosti nájdete
MHDLehre, Rathaus
🚶 142 m (2 min)
Pošta
🚶 237 m (3 min)
ObchodBudde
🚶 147 m (2 min)
BankaVolksbank
🚶 132 m (2 min)
ReštauráciaPizzeria Anna
🚶 167 m (2 min)
LekáreňRote Apotheke Hahne
🚶 100 m (1 min)
ŠkolaOberschule Lehre
🚶 253 m (3 min)
Materská školaKita Kunterbunt
🚶 456 m (5 min)
Športoviskofit+
🚶 67 m (1 min)
IhriskoKinderspielplatz Eitelbrotstraße Lehre
🚶 577 m (7 min)
Vzdialenosť k:
Cena319 000 €
Stále hľadáte to pravé?
Nastavte si strážneho psa. Ponuky vybrané na mieru dostanete súhrnne 1× denne e-mailom. S Premium profilom máte po ruke rovno 5 strážcov a keď sa niečo objaví, informujú vás obratom.




