Predaj domu 4+1 • 186 m² bez realitkyGrünau im Almtal Grünau im Almtal Oberösterreich 4645
Grünau im Almtal Grünau im Almtal Oberösterreich 4645MHD 2 minúty pešo • ParkovanieŽiadni makléri!!! Žiadni sprostredkovatelia!!!
Na predaj je vysoko kvalitne vybavený rodinný dom postavený v systéme plného dreva, postavený renomovanou stolárňou Holzbau Bammer v Scharnstein. Dom spája prírodné materiály, moderný komfort bývania a premyslené rozloženie miestností – zasadený do úchvatnej scenérie údolia Alm.
Nehnuteľnosť bola v roku 2019 dokončená s veľkou láskou k detailu. Všetok nábytok a vnútorné dvere sú na mieru vyrobené stolárske práce z vetvanej dubovej dreva, doplnené o elegantnú dubovú parketovú podlahu vo všetkých obytných priestoroch. Efektívne vzduchové tepelné čerpadlo spolu s vysoko kvalitnou pecou na kachle zaručujú príjemnú atmosféru počas celého roka.
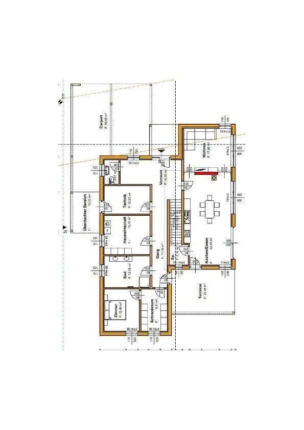
Okrem toho je k dispozícii priestranný carport so štýlovým obkladom z larche – ideálny pre dva vozidlá a s dodatočným úložným priestorom.
Rozloženie priestorov:
Prízemie:
• Reprezentatívny vstupný priestor
• Samostatné WC
• Technická miestnosť
• Spálňa s priestranným šatníkom (walk-in šatník)
• Veľká kúpeľňa so sprchou a vaňou
• Ďalšia izba (momentálne využívaná ako detská izba)
• Veľká otvorená obývacia kuchyňa
• Obývacia izba, oddeliteľná posuvnými dverami
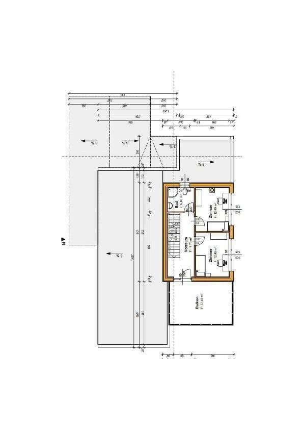
Horné poschodie:
• Dve ďalšie izby
• Druhá kúpeľňa
• Balkon s nádherným výhľadom
Vonkajšia časť:
Starostlivo upravená záhrada s terasou ponúka absolútny relax, priestor pre rodinu a miesto pre individuálne návrhy.
Carport s larche obkladom sa dokonale hodí k prírodnej architektúre domu a poskytuje ochranu vašim vozidlám.
Výnimočné prednosti:
• Drevená rámová stavba v harmónii s prírodou
• Nábytok a dvere na mieru z dubového dreva
• Dve kúpeľne
• Peca na kachle + vzduchové tepelné čerpadlo
• Priestranný carport s obkladom z larche
• Balkon a záhrada
• Ihneď k nastěhovaniu – žiadny stavebný stres!
• Nasťahujte sa a užívajte si – tento dom je pripravený na pohodlné bývanie!
Energetický preukaz môže byť poskytnutý na požiadanie!
V prípade záujmu prosím kontaktujte na čísle +436601569020
Dom sa nachádza v Grünau v údoli Alm, jednej z najkrajších a najprírodnejších obcí Horného Rakúska, zasadený do ohromujúceho horského panorámatu Alm. Lokalita spája pokoj, súkromie a vysokú kvalitu života – ideálna pre rodiny, milovníkov prírody a všetkých, ktorí si cenia uvoľnené bývanie.
Infraštruktúra je vynikajúca: materská škola, základná škola, miestne obchody a gastronomické zariadenia sú v obci ľahko dostupné. Okresné mesto Kirchdorf an der Krems je vzdialené len pár minút autom a ponúka široké možnosti nákupov, zdravotnú starostlivosť, školy a železničné spojenie.
Región je známy množstvom možností voľnočasových aktivit: turistika, lyžovanie, kúpanie pri Almsee, cyklistika alebo pozorovanie prírody v Cumberland Wildparku. Tenisové ihrisko v Grünau, športové vyžitie a množstvo klubov zaručujú živý spoločenský život.
Vďaka dobrej dopravnej dostupnosti sa do miest ako Wels, Gmunden a Linz dostanete v primeranom čase – ideálne pre dochádzajúcich, ktorí zároveň túžia bývať v blízkosti prírody.
Vysokokvalitné stolárske vybavenie v celom dome – nábytok na mieru, premyslené riešenia úložných priestorov a prvotriedne spracovanie dreva vytvárajú moderné a útulné prostredie pre bývanie.
Parametre nehnuteľnosti
| Vek | Nad 50 rokov |
|---|---|
| Dispozícia | 4+1 |
| PENB | B - Veľmi úsporné |
| Plocha pozemku | 853 m² |
| Stav | Veľmi dobrý |
|---|---|
| Číslo inzerátu | 966270 |
| Úžitková plocha | 186 m² |
| Cena za jednotku | 3 898 € / m2 |
Čo táto nehnuteľnosť ponúka?
| Balkón | |
| MHD 2 minúty pešo |
| Parkovanie |
V okolí nehnuteľnosti nájdete
Stále hľadáte to pravé?
Nastavte si strážneho psa. Ponuky vybrané na mieru dostanete súhrnne 1× denne e-mailom. S Premium profilom máte po ruke rovno 5 strážcov a keď sa niečo objaví, informujú vás obratom.


















