Predaj domu • 263 m² bez realitkyWildschapbachstraße 6, , Bádensko-Wurttembersko
Wildschapbachstraße 6, , Bádensko-WurttemberskoMHD 6minút pešo • Parkovanie • GarážKRÍZOVO BEZPEČNÉ A AUTONÓMNE DO BUDÚCNOSTI
Zabudnite na titulky o blackoute, zrútení elektrických sietí a ďalších katastrofách a na s nimi spojené následky, ako je výpadok najdôležitejšej základnej potreby – vody. Bývanie zostáva studené, pretože bez elektriny nefunguje ani moderné kúrenie a dodávka potravín je v ohrození.
S týmito nehnuteľnosťami môžete pokojne čeliť všetkým tým latentným katastrofám a ich scenárom. Navyše, v čase pandémie Corona sa žilo mimo obmedzení bytu, v priestore plnom prírody.
ZABEZPEČENÉ ZÁSOBOVANIE VODOU
Zásobovanie vodou je vždy zaručené, pretože dodávka prebieha cez studňu, ktorá beží bez akejkoľvek potreby energie, využívajúc fyzikálne sily. Navyše, za vodu v kvalitnej “Schwarzwald” kvalite a bez chlóru neplatíte ani cent.
ELEKTROENERGIA
Dodávka elektriny je čiastočne zabezpečená prostredníctvom 9 kV fotovoltaickej inštalácie. Generátor dopĺňa vznikajúce medzery, čím je aspoň zabezpečené kúrenie prostredníctvom olejového kotla inštalovaného v roku 2017.
TEPLO V BYTĚ – TEPLO V JEDLE
Každý byt v tomto dvojrodinnom dome má drevený kachlový kachol (oba boli schválené a certifikované dňa 13.06.2025). Byt v prízemí disponuje dokonca aj antickým kachlovým sporákom s pecou na pečenie a malým vodným kotlom, pričom potrebné drevo máte zadarmo priamo pred dverami. Obyvatelia tak vždy získajú teplé jedlo namiesto studenej konzervy raviol.
SOBESTAČNOSŤ
Vďaka veľkej záhrade a pozemku s rozlohou 1,7 ha si môžete zabezpečiť základné potraviny. Na pozemku sa navyše nachádza rad ovocných a hospodárskych stromov, ako napríklad dva veľké gaštany, vlašské orechy, mirabelky, kvetuše, jablká a iné plody. Súčasťou je aj malá lesná zóna, ktorá patrí vám. Okrem toho domová nehnuteľnosť obsahuje veľkú lúku, ohraničenú potokom, na ktorej je možné chovať aj zvieratá.
ČISTÁ PRÍRODA + ODĽAHLÁ POLOHA
Tento dom v odľahlej lokalite sa vyznačuje pokojom a neporušenou prírodou, pričom susedia sa nachádzajú mimo vášho výhľadu. Predstavte si, že ráno vstanete na balkóne alebo terase, vychutnáte si svoju rannú kávu či čaj a dýchate krištáľovo čistý vzduch. Počúvate prírodu, vychádzajúce slnko hreje vašu pokožku a čo počujete? Nič – iba zurčenie potoka pri vašich nohách prerušuje naprostú ticho.
Večer, v tme, opäť vystúpite na terasu a obdivujete nočnú oblohu. Pri krištáľovo čistom vzduchu a bez vplyvu umeľného osvetlenia sledujete hviezdnu oblohu. Keď si vaše oči pomaly zvykajú na tmu, vidíte drobné body našej galaxie, Mliečnej cesty, so svojimi miliardami hviezd a nebeských telies tak jasne, ako ste tento fascinujúci pohľad možno dosiaľ nevideli.
CENA
Cena tohto čerstvo zrekonštruovaného domu sa nachádza na najnižšej úrovni odhadov a porovnateľných hodnôt a je omnoho pod uvedeným maximom.
PREDAJNÝ ARGUMENT
Možno sa teraz pýtate, prečo sa takýto dom so všetkými uvedenými jedinečnými vlastnosťami predáva? Bohužiaľ, je ponúkaný práve teraz, pretože čas neubúda na dome, ale na majiteľovi – inzerentovi. Nakoniec sa každý pýta, kedy je správny čas na predaj – a ten je teraz. Nehnuteľnosť je vo výbornom stave, a preto je súčasný moment ideálny na odovzdanie domu do mladších rúk, ktoré srdcom aj rozumom sprevádzajú nehnuteľnosť do budúcnosti.
NEHNUTEĽNOSŤ – NÁKUP BEZ PROVÍZIÍ MAKLÉROV
Nehnuteľnosť sa nachádza v Národnom parku Schwarzwald so všetkými jeho prednosťami. Tento výnimočný dvojrodinný dom, kompletne zrekonštruovaný a zmodernizovaný v roku 2025, na odľahlej polohe s 1,73 ha lesov a lúk pozdĺž potoka, so studňou pre zásobovanie vodou, s PV systémom a moderným, úsporným olejovým kúrením (energetický preukaz C) vám ponúka všetky vyššie uvedené možnosti – a to bez dodatočných nákladov na maklérske či sprostredkovateľské poplatky.
BYTY – PRVÝ VSTUP PO REKONŠTRUKCII
Okrem nádhernej prírody čakajú na budúcich majiteľov dva svetlé a priestranné byty s inteligentným komfortom najmodernejšej technológie, vynikajúcim stavebným aj komfortným prostredím konvenčne postaveného domu, množstvom užitočných priestorov, garážou, prístreším pre autá aj parkovacími miestami, veľkou záhradou a napriek odľahlosti aj s vynikajúcou infraštruktúrou.
PRE INVESTOROV
Obe samostatné bytové jednotky je možné bez väčších zásahov rozdeliť do štyroch samostatných jednotiek. Každý byt disponuje aspoň jednou kúpeľňou alebo sprchou. Nedostatok bývania v tejto oblasti často spôsobuje problémy pri obsadzovaní voľných pracovných miest.
INFRAŠTRUKTÚRA A OKOLIE
V bezprostrednej blízkosti nájdete banky, poštu, reštaurácie, obchody, školy (školský autobus zastavuje priamo pred dverami), rekreačné a športové zariadenia, ako aj vykurovaný potok, ktorý je financovaný miestnym združením. Tiež len niekoľko kilometrov ďaleko sa nachádza celosvetovo známy medveďový a vlčí park.
Lyžiarske vleky sú vhodné pre zimných športovcov a sú dostupné len 20 minút autom. Turisti a horolezci nájdu množstvo možností, ako preskúmať a spoznať región.
Zdravotná starostlivosť je zabezpečená od praktického lekára až po nemocnicu.
V regióne sa nachádza niekoľko baní na ťažbu zriedkavých zemin, ktoré je možné aj navštíviť.
V blízkosti baní sa nachádza aj mineralogické centrum otvorené pre návštevníkov, kde si môžete vyskúšať hľadanie minerálov – obľúbená aktivita pre rodičov aj deti.
Mnohé firmy, vrátane niektorých svetových lídrov, majú tu svoje pobočky a ponúkajú množstvo pracovných miest. Firmy často sťažujú, že obsadzovanie voľných pracovných miest zlyháva kvôli nedostatku bývania.
V blízkosti sa nachádza aj Matematický ústav, ktorý podporuje výskum, medzinárodnú vedeckú spoluprácu a ďalšie vzdelávanie v oblasti matematiky a jej príbuzných disciplín.
Autobusové linky pravidelne premávajú do Freudenstadtu, do susedných obcí alebo do Offenburgu. Európska metropolitná oblasť Štrasburg so svojou francúzskou atmosférou je autom dostupná približne za hodinu.
STRUČNÝ PREHĽAD
Dvojrodinný dom – zrekonštruovaný v roku 2025 za výhodnú cenu so dvoma oddelenými a samostatnými bytmi:
• Byt v prízemí: 163 m²
• Byt v nadzemí: 100 m²
• Prvý vstup po rekonštrukcii
• Odľahlá poloha – veľa prírody – pokoj – čistý vzduch – kvalitná voda
• Kvalitná a komplexná rekonštrukcia a sanácia
• Použitie veľmi kvalitných stavebných materiálov v pôvodnej budove
• Dve samostatné bytové jednotky – možnosť rozdelenia do štyroch jednotiek
• Všetky okná a vonkajšie dvere so žalúziami alebo s oknovými parapetmi
• Nový kondenzačný olejový kotol (inštalovaný v 07/2017)
• Energetický preukaz triedy C
• 9 kV fotovoltaická inštalácia pre udržateľnú výrobu elektriny
• Dvojgaráž (diaľkovo ovládaná), prístrešie pre autá a niekoľko parkovacích miest
• Zásobovanie vodou zo studne v najvyššej kvalite, zadarmo – bez chlóru
• Množstvo užitočných priestorov – stodola, sklep s klenbami, bývalé stáje
• Veľká užitočná záhrada
• Niekoľko chát a skleníkov
• Veľký park strojov (diaľkovo ovládaná sekačka, mulčovač, rôzne stroje a podobne)
• Predaj priamo od majiteľa – žiadne maklérske ani sprostredkovateľské provízie!
• Okamžite na nastťahovanie, bez nájomníkov
INTERIÉROVA REKONŠTRUKČNÁ A SANÁČNA PRÁCA
• Všetky izby a chodby boli novozomietnuté a natreté
-> Izby s jemnou omietkou
-> Chodby s hrubšou omietkou
• Nové energeticky úsporné a elektronicky riadené radiátory
• Nové WC v kúpeľniach a sprchových kútach
• Nové umývadlá a armatury v kúpeľniach a sprchách
• Nové kúpeľňové zrkadlá s LED osvetlením a funkciou proti zamlžovaniu
• Obnova sprchového kúta v prízemí – podlahová sprcha s vysoko kvalitnou armaturou
• Nové dvere
• Nové parapety
• Čiastočne nové okná
• Obnovené zásuvky a vypínače
• Vysoko kvalitné parkety – zrenovované a zapečatené
• Podlahové kúrenie v kúpeľniach a sprchách
EXTERIÉROVA REKONŠTRUKCIA A SANÁCIA
• Nové dvere a okná (s dvojitým zasklením)
-> Vykurovacia miestnosť
-> Sklep s klenbami
• Renovované vstupné dvere
• Rekonštrukcia a čiastočná obnova balkóna
• Rekonštrukcia a čiastočná obnova terás
BYTOVÁ KULTÚRA
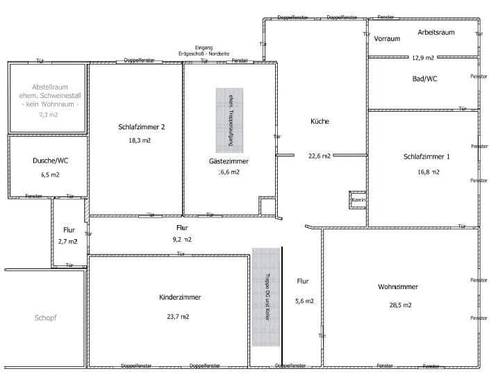
Dva oddelené byty s celkovou obytnou plochou 263 m² – svetlé, vzdušné a preľudnené priestory
• 4 kúpeľne alebo sprchové kúty (dva na každý byt)
-> vybavené podlahovým kúrením a radiátormi
• Celkovo 10 izieb
• Veľká kuchyňa v prízemí s historickým kachlovým sporákom
• Obývacia časť v nadzemí so švédskym kachlovým/krbovým sporákom
-> Oba kotly boli schválené a testované dňa 13.06.2025
• Všetky okná a sklenené dvere s dvojitým/izolačným zasklením
• Okná so žalúziami (časťou elektricky ovládané) alebo s okenicami
• Kvalitné parkety vo viacerých obytných priestoroch
• Nízkoúdržbové kamenné podlahy vo vstupných priestoroch a chodbách
• Dlažba v kúpeľniach
• Laminát v hosťovských a detských izbách
POHODLIE A KOMFORT
• Video-dvierový systém pre dvojrodinný dom
• Mnohé dvere a okná s elektricky ovládanými žalúziami
• Osvetlenie vnútri i v okolí domu cez pohybové senzory
• WLAN pokrývajúce celý dom a jeho okolie
• Televízny signál cez WLAN
• Diaľkové ovládanie garážových dverí
• Elektronické regulátory a riadenie radiátorov – možnosť individuálneho nastavenia teploty a času pre každý radiátor
• Zásobovanie vodou zo studne – zadarmo
INVESTÍCIA DO BUDÚCNOSTI
• Cenný stromový porast – orechy, gaštany, drevné suroviny!
-> Drevený materiál pre oba existujúce kotly je k dispozícii v hojne – zadarmo!
• Diaľkovo ovládaná sekačka
ENERGETICKÁ TECHNIKA A EFEKTIVITA
• Energetický preukaz s triedou C
• 9 kV fotovoltaická inštalácia – 2015
• Moderné olejové kúrenie – inštalované v 07/2017
-> Každá časť (kúrenie a teplá voda) je možné ovládať samostatne
• Nové efektívne radiátory
-> Elektronické regulátory s individuálnym nastavením pre každý radiátor
• Dodatočné drevené/pevné kúrenie pre každý byt (certifikované 13.06.2025)
• Zdarma drevo z vlastného lesa
BEZ MAKLÉRA
Ušetríte maklérske alebo sprostredkovateľské poplatky vo výške cez 20 000 eur, keďže predaj je organizovaný súkromne.
PRVÝ VSTUP PO REKONŠTRUKCII
IHNED NA NASTŤAHOVANIE
Ponúkaná nehnuteľnosť je pripravená na nastťahovanie, bez nájomníkov, takže po vybavení formalít sa môžete ihneď presťahovať.
MAKLÉRSKE DOPYTY A KONTAKT – NIE SÚ VÍTANÉ!
Parametre nehnuteľnosti
| Vek | Nad 50 rokov |
|---|---|
| Číslo inzerátu | 965243 |
| Úžitková plocha | 263 m² |
| Celkové poschodia | 2 |
| Stav | Po rekonštrukcii |
|---|---|
| PENB | C - Hospodárne |
| Plocha pozemku | 17 301 m² |
| Cena za jednotku | 2 049 € / m2 |
Čo táto nehnuteľnosť ponúka?
| Balkón | |
| Garáž | |
| MHD 6 minút pešo |
| Pivnica | |
| Parkovanie | |
| Terasa |
V okolí nehnuteľnosti nájdete
Stále hľadáte to pravé?
Nastavte si strážneho psa. Ponuky vybrané na mieru dostanete súhrnne 1× denne e-mailom. S Premium profilom máte po ruke rovno 5 strážcov a keď sa niečo objaví, informujú vás obratom.




















































