Predaj pozemku • 762 m² bez realitky, Bádensko-Wurttembersko
, Bádensko-WurttemberskoMHD do minúty pešoPozemok so 4 schválenými radovými domami na predaj
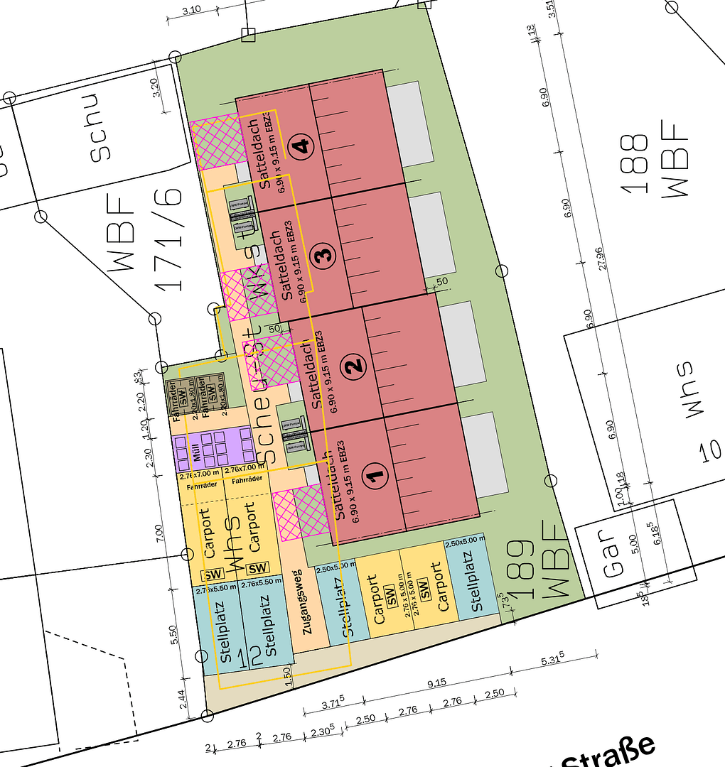
Na predaj je atraktívny stavebný pozemok s úplne udeleným stavebným povolením na výstavbu 4 moderných radových domov v rodinne prívetivej lokalite Balingen Ostdorf, PSČ 72336.
Základné údaje o projekte
• 4 schválené radové domy
• Celková obytná plocha: cca 528 m² (4 × 132 m²)
• Celková obytná a využiteľná plocha: cca 720 m² vrátane priestorov na využitie
• 8 parkovacích miest / prístreškov na autá
• Stavebné povolenie je úplné
Pozemok
• Veľkosť pozemku: 762 m²
• Rovný pozemok ideálny pre rodiny
• Žiadne znečistenie, žiadne stavebné záväzky
• Pokojné a príjemné obytné prostredie
• Cca 2,9 km od železničnej stanice Balingen
• Dobrá infraštruktúra a dostupnosť
Stavebný dopyt/plánovanie na požiadanie – zahrnuté v kúpnej cene.
Predaj prebieha bez provízie, priamo od vlastníka.
Parametre nehnuteľnosti
| Číslo inzerátu | 965169 |
|---|---|
| Cena za jednotku | 394 € / m2 |
| Plocha pozemku | 762 m² |
|---|
Čo táto nehnuteľnosť ponúka?
| MHD 0 minút pešo |
V okolí nehnuteľnosti nájdete
Stále hľadáte to pravé?
Nastavte si strážneho psa. Ponuky vybrané na mieru dostanete súhrnne 1× denne e-mailom. S Premium profilom máte po ruke rovno 5 strážcov a keď sa niečo objaví, informujú vás obratom.

