Predaj rekreačného objektu • 57 m² bez realitkyMilešov - Milešov nad Vltavou, Středočeský kraj
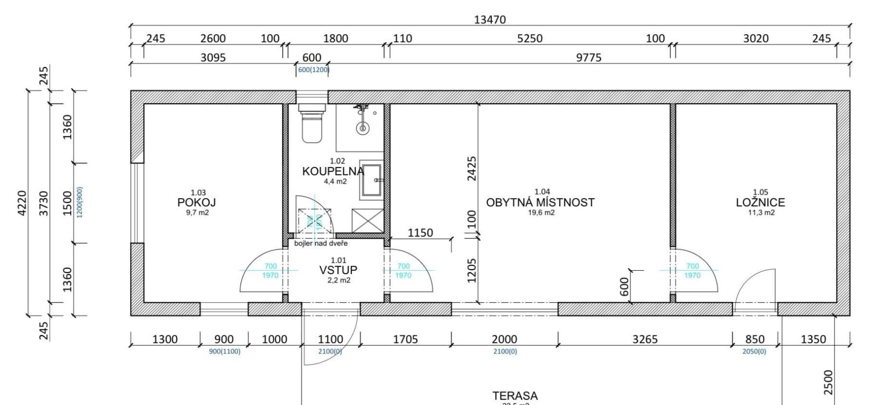
Milešov - Milešov nad Vltavou, Středočeský krajMHD 8minút pešo • Garáž • Terasa 20 m²Nabízím k prodeji novostavbu v podobě chaty postavené na krásném pozemku s výhledem na přehradu Orlík . Nemovitost disponuje prostornou obytnou plochou o výměře 57 m², která je situována na 500m2 velkém pozemku. Díky štítku energetické náročnosti budovy třídy B se můžete těšit na výhodnou a úspornou technologii stavby, která zajišťuje moderní a ekologické bydlení.
Chata je ve stavu novostavby a poskytuje nevybavený prostor, který můžete podle svých představ upravit a přizpůsobit svému životnímu stylu. Součástí nemovitosti je také parkovací stání , která zajišťuje bezpečné parkování, přestože venkovní parkovací možnosti nejsou k dispozici. Navíc má nemovitost terasu o rozloze 20 m², ideální pro odpočinek a posezení v příjemném venkovním prostředí. Dům je vytápěn TČ ,má vlastni zdroj vody z vrtu a jímku na odpady .
Pokud Vás tato nabídka zaujala, neváhejte mě kontaktovat skrz zprávy na této komunikační platformě a domluvíme si prohlídku.
Parametre nehnuteľnosti
| Dostupné od | 14. 11. 2025 |
|---|---|
| Výstavba budov | Drevostavba |
| Číslo inzerátu | 965110 |
| Vlastníctvo | Osobné |
| Poloha rekreačného objektu | Oddelené stránky |
| Úžitková plocha | 57 m² |
| Cena za jednotku | 174 561 CZK / m2 |
| Stav | Novostavba |
|---|---|
| Vybavené | Nevybavené |
| Nízkoenergetická | Áno |
| PENB | B - Veľmi úsporné |
| Umiestnenie | Tichá časť |
| Plocha pozemku | 500 m² |
Čo táto nehnuteľnosť ponúka?
| Garáž | |
| Terasa 20 m² |
| MHD 8 minút pešo |
V okolí nehnuteľnosti nájdete
Stále hľadáte to pravé?
Nastavte si strážneho psa. Ponuky vybrané na mieru dostanete súhrnne 1× denne e-mailom. S Premium profilom máte po ruke rovno 5 strážcov a keď sa niečo objaví, informujú vás obratom.






