Predaj domu 1+1 • 23 m² bez realitkyGüssing Burgenland 7540
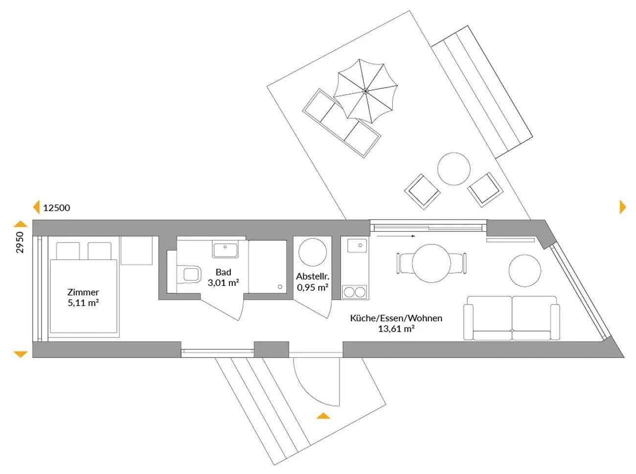
Güssing Burgenland 7540MHD 2 minúty pešo • ParkovanieRáno sa prebúdzať spolu s vtákmi, behať bosou nohou cez rosu a sledovať, ako sa plaché slnečné lúče pohrávajú s oparmi hmly. Po kúpeli v jazere si vychutnať prvú kávu dňa. Na chvíľu sa ešte vrátiť do postele, kým raňajky nezavolajú na slnečnú terasu. Páči sa vám takýto scenár? Náš mini dovolenkový dom s jednou spálňou by bol skvelou základňou – dosť malý, aby sotva komplikoval život, a zároveň dosť veľký pre pohodové chvíle. Ponúka priestor pre kuchynský kút, pohodlná sprchovňa je vybavená všetkým potrebným a tri sklenené panoramatické steny ponúkajú nádherný výhľad.
Na vašom pozemku alebo …
Aktuálne vám môžeme ponúknuť nasledujúce pozemky:
Güssing: cca 2 600 m² – pozemková plocha a orientácia pozemku si určujete podľa seba
-----------------------------------------------------------------------------------------
Pichling pri Stainzi: cca 7 500 m² stavebného pozemku – rozmery a usporiadanie pozemku voľne voliteľné
-----------------------------------------------------------------------------------------
Kraubath v Groß St. Florian: cca 5 000 m² stavebného pozemku – rozmery a usporiadanie pozemku voľne voliteľné
-----------------------------------------------------------------------------------------
8530 Deutschlandsberg: cca 2 180 m² stavebného pozemku. Schválený projekt so 4 obytnými jednotkami.
Majiteľ je ešte otvorený ďalším ponukám – rozmery a umiestnenie pozemkov si určujete podľa seba
-----------------------------------------------------------------------------------------
Oberer Bahnweg 14, 8523 Frauental: 1 000 m² stavebného pozemku so schváleným dvojdomovým projektom – stavebný projekt si môžete ešte prispôsobiť
-----------------------------------------------------------------------------------------
Vlastník pozemku a staviteľ domu nie sú v úzkom ekonomickom vzťahu!
Tu sú stavebné pozemky prvej triedy – v najlepšej lokalite a s úchvatným výhľadom na nádherný hrad Güssing!
Poloha úplne rovinatá, veľkosti od 500 m² do 1 500 m².
Infračervené kúrenie a tepelné čerpadlo na ohrev teplej vody, ako aj decentralizovaná rekuperácia vzduchu s využitím tepelnej energie
Kompletne dodané v hotovom stave
Drevená obloha na fasáde
Vinylová podlaha
Sanitárne zariadenie
Veľkoformátové a vodotesné obklady v kúpeľni
Dekoračné dosky na stenách a strope
Príprava pre inštaláciu fotovoltaického systému
Objednajte si stavebný popis a katalógy!
Pre tento účel je potrebné uviesť vaše telefónne číslo, e-mailovú adresu a adresu.
Ďakujeme pekne!
FINANCOVACÍ KALKULÁTOR
https://www.finaustria.at/finanzierungsrechner
Parametre nehnuteľnosti
| Vek | Nad 50 rokov |
|---|---|
| Dispozícia | 1+1 |
| Úžitková plocha | 23 m² |
| Celkové poschodia | 1 |
| Stav | Novostavba |
|---|---|
| Číslo inzerátu | 964975 |
| Plocha pozemku | 1 m² |
| Cena za jednotku | 3 552 € / m2 |
Čo táto nehnuteľnosť ponúka?
| Parkovanie | |
| Terasa |
| MHD 2 minúty pešo |
V okolí nehnuteľnosti nájdete
Stále hľadáte to pravé?
Nastavte si strážneho psa. Ponuky vybrané na mieru dostanete súhrnne 1× denne e-mailom. S Premium profilom máte po ruke rovno 5 strážcov a keď sa niečo objaví, informujú vás obratom.

















