Predaj domu • 245 m² bez realitkyWilhelmsburg Wilhelmsburg Niederösterreich 3150
Wilhelmsburg Wilhelmsburg Niederösterreich 3150MHD 1 minúta pešo • ParkovanieNa predaj je ponúkaný pôvabný a starostlivo udržiavaný viacfamilijný dom so štyrmi samostatne využiteľnými obytnými jednotkami v centrálnej časti Wilhelmsburgu, južne od St. Pölten. Nehnuteľnosť spája historický charakter s moderným bývacím komfortom a je vhodná ako atraktívny investičný objekt aj na vlastné bývanie – napríklad pre viacgeneračné bývanie alebo kombináciu bývania a prenájmu. Objekt sa nachádza len 40 minút od lyžiarskeho strediska Annaberg.
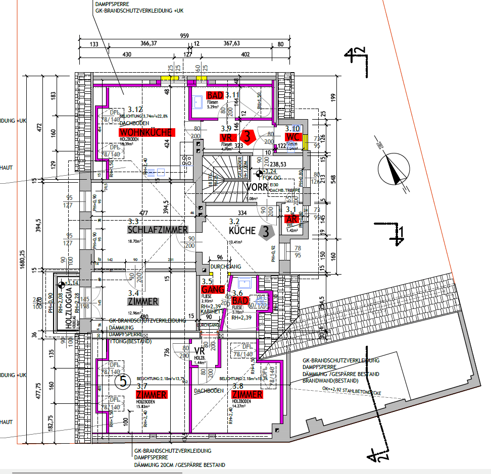
Dom pochádza z obdobia medzi rokmi 1905 a 1910, avšak v posledných rokoch bol komplexne zrekonštruovaný a zmodernizovaný. Osobitne je potrebné vyzdvihnúť kvalitne vybudovaný podkrovný priestor z roku 2023, ktorý ponúka dodatočný obytný priestor s osobitým šarmom.
Kúrenie zabezpečuje centrálne, novodobé peletové kúrenie, ktoré efektívne a ekologicky prispieva k príjemnému teplu. V priebehu posledných piatich rokov boli do konštrukcie a vybavenia domu priebežne investované prostriedky:
* Strecha bola kompletně prepracovaná
* Fasáda rekonštruovaná
* Príjazdová cesta bola nová dláždená
* Podkrovný priestor bol zrealizovaný
* Pozdĺž ulice bol postavený nový plot
Táto nehnuteľnosť ponúka zriedkavú príležitosť získať všestranný obytný objekt so solídnym potenciálom rastu hodnoty – v regióne s dobrou infraštruktúrou a vysokou kvalitou života.
Základné údaje
* Kúpna cena: 745 000 €
* Celková obytná plocha: cca 225 m²
* Plocha pozemku: cca 489 m²
* Počet izieb: 16
* Spálne: 6
* Kúpeľne: 4
* Parkovacie miesta: 2 pred domom (na verejnom pozemku) + ďalšie na dvore
* Kúrenie: centrálne peletové kúrenie (rok výstavby 2020)
* Suterén: cca 9 m²
* Výnimočnosti: drevený zimný balkón, tepelná izolácia, tichá lokalita, dobré verejné spojenie
* Internet: pripojenie optickým vláknom je k dispozícii
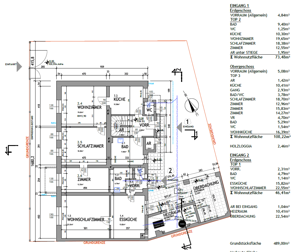
Rozloženie bytu
* Top 1 (prízemie, cca 73 m²): kuchyňa, obývacia izba, 2 spálne, kúpeľňa, WC
* Top 2 (prízemie, cca 46 m²): kuchyňa, spálňa, kúpeľňa, WC
* Top 3 (podkrovie, cca 80 m²): kuchyňa, obývacia izba, 2 spálne, kúpeľňa/WC, kancelária, balkón, úložný priestor
* Top 4 (podkrovie, cca 28 m²): štúdio s otvorenou kuchyňou/obytným priestorom, kúpeľňa/WC
Dva nesanované byty v prízemí sú momentálne prenajaté na dohodnutú dobu a veľký byt v podkroví je aktuálne obývaný mojou rodinou a mnou – takže Top 4 je momentálne voľný.
Lokalita a infraštruktúra
Nehnuteľnosť sa nachádza vo Wilhelmsburgu, pokojnom malom meste so vynikajúcou infraštruktúrou:
* Diaľničné pripojenie, vlaková stanica, autobusová zastávka sú dosiahnuteľné do 10 minút
* Obchody, lekári, školy sú dostupné pešo
* Prírodné okolie s dobrou dostupnosťou priemyselných zón – ideálne pre nájomcov a dochádzačov
V roku 2015 došlo v jednom z bytov k poškodeniu vodou, ktoré bolo v nasledujúcich rokoch tiež zrekonštruované. Podrobnosti sú k dispozícii na vyžiadanie. Prierezový objekt vedľa domu bol v roku 2018 postihnutý požiarom a následne v rokoch 2019 a 2020 bol rozsiahlo zrekonštruovaný. Podkrovie bolo zmodernizované v roku 2023. Energetický preukaz je k dispozícii.
Parametre nehnuteľnosti
| Vek | Nad 50 rokov |
|---|---|
| Poschodie | Prízemie |
| PENB | B - Veľmi úsporné |
| Plocha pozemku | 489 m² |
| Stav | Dobrý |
|---|---|
| Číslo inzerátu | 964574 |
| Úžitková plocha | 245 m² |
| Cena za jednotku | 3 041 € / m2 |
Čo táto nehnuteľnosť ponúka?
| Balkón | |
| Parkovanie | |
| Terasa |
| Pivnica | |
| MHD 1 minúta pešo |
V okolí nehnuteľnosti nájdete
Stále hľadáte to pravé?
Nastavte si strážneho psa. Ponuky vybrané na mieru dostanete súhrnne 1× denne e-mailom. S Premium profilom máte po ruke rovno 5 strážcov a keď sa niečo objaví, informujú vás obratom.



















