Prenájom kancelárie • 620 m² bez realitkyIndustriestrasse 48, , Severné Porýnie - Westfálsko
Industriestrasse 48, , Severné Porýnie - WestfálskoMHD 6minút pešo • GarážVo veľmi udržiavanom objekte z roku 1996 sa nachádza:
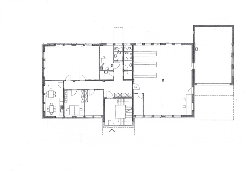
V prízemí o rozlohe cca 280 m²
• 2 montážne miestnosti / skladové haly
• 2 kancelárie
• Kuchyňa
• 2 WC
• 2 malé skladové miestnosti
• Rozvodná miestnosť
• Vstup so skleneným schodiskom
Hala je dlažbovaná, vytopená (radiátory), s výškou haly cca 2,8 m a prejazdovou výškou cca 3,2 m, pričom prístup je z prízemia budovy a cez rolovaciu bránu s rozmermi 5,6 m široká x 2,8 m vysoká. Vonkajší priestor pred halou je zastrešený sklenenou konštrukciou (viď obrázky).
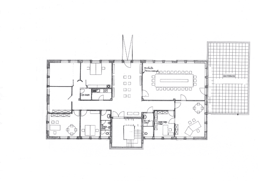
V nadzemnom podlaží o rozlohe cca 280 m²
• Veľká konferenčná miestnosť s nastaviteľnou stenou (priečny priestor je možné zapojiť)
• 7 kancelárií
• Kuchyňa
• 2 WC
• Klimatizovaná serverovňa
• Vstup do parkoviska cez most
• Sklenené schodisko
V exteriéri sa nachádza početné parkovacie miesta. Priamo pred budovou je dláždená plocha a v zadnej časti štrkovaná – tieto plochy je možné prenajať podľa potreby.
Objekt je možné nasťahovať od 1. mája 2026.
Čistá nájomná cena bez nákladov na energie, kúrenie, vodu a elektrinu je 6.385 EUR (netto). Parkovacie miesta a vonkajší priestor je možné prenajať dodatočne podľa potreby.
Objekt sa nachádza centrálne v priemyselnej zóne 51399 Burscheid. Nachádza sa na okrajovom pozemku, pričom park je zariadený podobne.
Dopravné spojenia na diaľnice A1 (prípojka Burscheid) a A3 (prípojka Kreuz Leverkusen) sú obe dosiahnuteľné za cca 10 minút.
Centrá miest Leverkusen (cca 10 km), Köln (cca 20 km) a Düsseldorf (cca 40 km) sú takisto rýchlo dostupné.
Letiská Köln/Bonn a Düsseldorf sú dosiahnuteľné za 30 až 40 minút, letisko vo Frankfurte je vzdialené približne 180 km.
Obchody pre denné potreby (Lidl, Aldi, …), jedáleň s denne meniacimi sa teplými obedmi a fitness centrum sú dostupné pešo.
Na jar 2024 bola inštalovaná nová kondenzačná plynová centrálna kúrenie (značka Wolf).
Optické (vláknové) pripojenie je k dispozícii od leta 2025.
Všetky vonkajšie okná sú vybavené elektrickými rolietami.
Parametre nehnuteľnosti
| Vek | Nad 50 rokov |
|---|---|
| Stav | Dobrý |
| Číslo inzerátu | 964222 |
| Cena za jednotku | 10 € / m2 |
| Dostupné od | 1. 5. 2026 |
|---|---|
| Poschodie | 1. poschodie z 2 |
| Plocha kancelárie | 620 m² |
Čo táto nehnuteľnosť ponúka?
| Garáž |
| MHD 6 minút pešo |
V okolí nehnuteľnosti nájdete
Stále hľadáte to pravé?
Nastavte si strážneho psa. Ponuky vybrané na mieru dostanete súhrnne 1× denne e-mailom. S Premium profilom máte po ruke rovno 5 strážcov a keď sa niečo objaví, informujú vás obratom.











































