Predaj domu 5+1 • 105 m² bez realitkySteinweg, Lage-Billinghausen, , Severné Porýnie - Westfálsko
Steinweg, Lage-Billinghausen, , Severné Porýnie - WestfálskoMHD 3 minúty pešo • ParkovaniePonúkame 3 radové domy v novej rezidenčnej štvrti v Lage-Billinghausen (Steinweg) „na kľúč“ na predaj. Domy budú postavené podľa normy Efektívny dom 40 (možná podpora KfW).
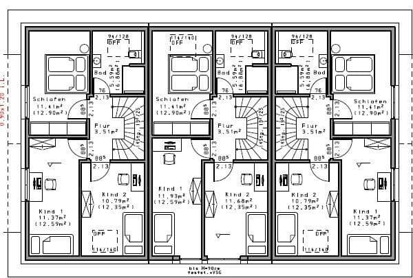
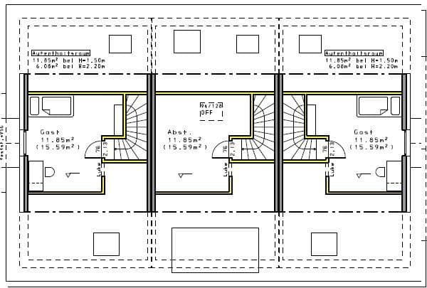
Obytová plocha je približne 105 m² pre každý dom.
Cena zahŕňa aj pozemok:
Dom 1 (vľavo): 349.800 € (rezervovaný)
Dom 2 (v strede): 319.800 €
Dom 3 (vpravo): 342.900 €
Presnú polohu pozemkov nájdete na priložených obrázkoch a súboroch.
Tešíme sa na Vašu kontakt a radi Vám poskytneme ďalšie informácie.
Billinghausen je časť mesta Lage v okrese Lippe, Severné Porýnie - Vestfálsko, a nachádza sa približne 4,5 kilometra juhozápadne od centra Lage. Okolie je charakteristické harmonickou zmesou vidieckeho idylky a dobrej infraštruktúry. S približne 1 900 obyvateľmi ponúka Billinghausen pokojné, rodinné bývanie s dedinským charakterom a vybudovanou susedskou komunitou.
Táto časť mesta je obklopená poľami, malými lesíkmi a typickou lippskou krajinou. Zástavba pozostáva z rodinných a viacrodinných domov, historických statkov ako aj novších obytných oblastí, najmä v Billinghauser Heide. V jadre obce nájdete niekoľko starých farmárskych statkov s bohatou históriou. Billinghausen je dobre napojený na dopravnú sieť: cez blízke cesty B66 a B239 sa rýchlo dostanete do okolitých miest ako Lage, Detmold, Lemgo alebo Bad Salzuflen. Verejná doprava pravidelne spája Billinghausen s centrom Lage a ostatnými časťami mesta.
V samotnej obci nájdete materskú školu, základnú školu a rôzne spolky, ktoré formujú komunitný život. Obchody, lekári, stredné školy a všetky dôležité služby sú dostupné v blízkom mestskom centre Lage. Zelené okolie pozýva na prechádzky, cyklistiku a rozmanité voľnočasové aktivity.
Billinghausen spája výhody bývania v prírode a pokojného prostredia s dobrou dostupnosťou mestských služieb – ideálne pre rodiny, milovníkov prírody a všetkých, ktorí hľadajú uvoľnené bývanie.
Parametre nehnuteľnosti
| Vek | Nad 50 rokov |
|---|---|
| Stav | Novostavba |
| Číslo inzerátu | 963566 |
| Plocha pozemku | 200 m² |
| Cena za jednotku | 3 046 € / m2 |
| Dostupné od | 1. 12. 2026 |
|---|---|
| Dispozícia | 5+1 |
| Úžitková plocha | 105 m² |
| Celkové poschodia | 3 |
Čo táto nehnuteľnosť ponúka?
| Parkovanie | |
| Terasa |
| MHD 3 minúty pešo |
V okolí nehnuteľnosti nájdete
Stále hľadáte to pravé?
Nastavte si strážneho psa. Ponuky vybrané na mieru dostanete súhrnne 1× denne e-mailom. S Premium profilom máte po ruke rovno 5 strážcov a keď sa niečo objaví, informujú vás obratom.





