Predaj bytu 2+1 • 42 m² bez realitky, Šlezvicko-Holštajnsko
, Šlezvicko-HolštajnskoMHD do minúty pešo • ParkovanieKrásny byt s terasou sa nachádza v prízemí bytového komplexu so 12 jednotkami v pokojnej obytné štvrti v Schönhagen / Brodersby.
Byt je plne vybavený a môže byť využívaný na prenájom aj na vlastné bývanie.
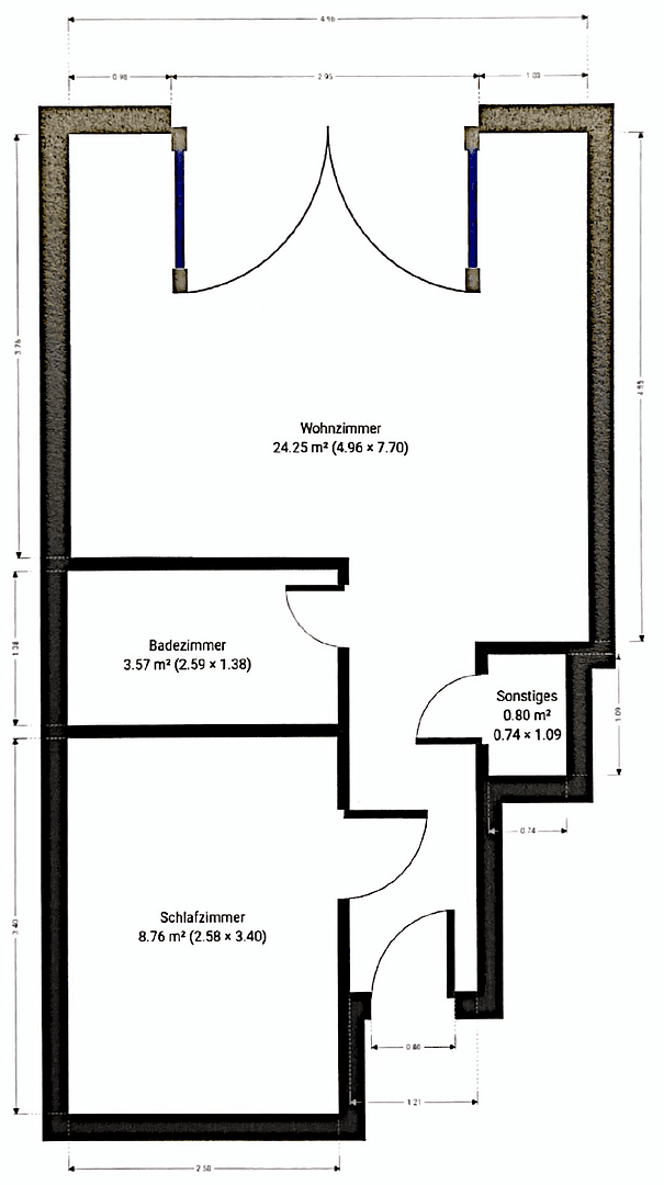
Srdcom bytu tvorí otvorený obývací a jedálenský priestor s modernou kuchynkou. Tu bol odbornými rukami položený nový vinylový podlahový kryt.
Vnútorná kúpeľňa je vybavená umývadlom, toaletou a sprchou.
Spálňa je svetlá a útulná.
Byt je vykurovaný podlahovým kúrením, ktoré zabezpečuje vlastný plynový kotol z roku 2017.
Terasa má juhozápadnú orientáciu.
Široké parkovacie miesto pre motorové vozidlo je priamo pred dverami. Okrem toho je k dispozícii aj krytý stojan pre bicykle pre 2 bicykle.
Byt má vlastnú úložnú miestnosť a navyše ďalšiu úložnú miestnosť, v ktorej sa nachádza plynový kotol, ktorá sa používa so zdieľaním s horným spoluvlastníkom.
Momentálne je byt využívaný na dovolenkový prenájom.
Pri vážnom záujme si, prosím, dohodnite termín prehliadky. Prehliadky sú plánované na sobotu 15.11.2025 a piatok 21.11.2025. Prehliadka bez termínu nie je možná.
Ostseebad Schönhagen, časť obce Brodersby, sa nachádza priamo pri Baltskom mori.
Byt sa nachádza v pokojnej obytné oblasti. V bezprostrednej blízkosti nájdete kaviarne, reštaurácie a turistickú informačnú kanceláriu. Baltská pláž s promenádou, prenájmom lehátok, psím pieskom a strmým útesom je dosiahnuteľná za pár minút pešo.
Hneď v blízkosti nájdete aj Kappeln. Kappeln je mimo iného známe aj vďaka posledným sledom rybárskych sietí v Európe a svojím romantickým starým mestom, množstvom obchodov a zábavných možností a týždenným trhom vás pozýva na prechádzky a pochutnávanie si; autom je dosiahnuteľné do 10 minút alebo peknou cyklistickou trasou za 30 minút.
Pohodlne dostupné autom je aj Ostseebad Damp, kde nájdete rekreačno-zdravotné centrum, wellnesspark, bazény a prístav.
Uniknite každodennosti a užite si čarovný dovolenkový byt priamo vedľa zámku Schönhagen. Ideálny pre páry alebo malú rodinu, tento byt je dokonalým útočiskom v Ostseebad Schönhagen.
Byt je nefajčiarsky objekt. Priamo pred domom máte k dispozícii parkovacie miesto pre vaše auto a stojan na bicykle pre dva bicykle.
Integrovaný obývací a jedálenský priestor vás pozýva k oddychu a ponúka modernú malú kuchynku, ktorá je vybavená všetkým, čo potrebujete na prípravu vašich obľúbených jedál: chladnička, rúra, keramická varná doska, odsávač pary, umývačka riadu, ako aj varná kanvica, toustovač, kávovar a mikrovlnná rúra.
Spálňa s dvojlôžkom (každé 90x200 cm) zabezpečí pokojné noci. Kúpeľňa je vybavená sprchou, umývadlom a toaletou.
Pre vašu zábavu máte k dispozícii TV aj rádio. Laminátové a vinylové podlahy spolu s podlahovým kúrením vytvárajú aj počas chladnejších dní príjemnú atmosféru.
Užite si čerstvý vzduch na terase so záhradou. Tu nájdete záhradný nábytok aj gril.
Súkromný predaj – bez makléra!
Parametre nehnuteľnosti
| Vek | Nad 50 rokov |
|---|---|
| Stav | Dobrý |
| Číslo inzerátu | 963302 |
| Úžitková plocha | 42 m² |
| Dostupné od | 5. 12. 2025 |
|---|---|
| Dispozícia | 2+1 |
| PENB | D - Menej hospodárne |
| Cena za jednotku | 4 393 € / m2 |
Čo táto nehnuteľnosť ponúka?
| Parkovanie | |
| Terasa |
| MHD 0 minút pešo |
V okolí nehnuteľnosti nájdete
Stále hľadáte to pravé?
Nastavte si strážneho psa. Ponuky vybrané na mieru dostanete súhrnne 1× denne e-mailom. S Premium profilom máte po ruke rovno 5 strážcov a keď sa niečo objaví, informujú vás obratom.



















