Predaj domu 6+1 • 255 m² bez realitky, Severné Porýnie - Westfálsko
, Severné Porýnie - WestfálskoMHD do minúty pešoFREIESLEBEN-LUXUSIMMOBILIEN Vám predstavuje tento jedinečný, reprezentatívny obytný a obchodný dom s prestížnou reštauráciou v historickom starom meste Waltrop.
Linky na virtuálne prehliadky nehnuteľnosti nájdete tu:
Link na Maisonette byty:
https://my.matterport.com/show/?m=sHhC1tBhge3
Link na reštauráciu:
https://my.matterport.com/show/?m=FsrGFCdpU41
Luxusný dom s dochovanou konštrukciou bol postavený pred viac ako 600 rokmi – odhadom odborníka na tradičné drevené stavby – na pozemku o veľkosti cca 397 m². Pred približne 120 rokmi bol dom rozšírený o prístavbou, ktorá bola taktiež postavená v tradičnom štýle. V roku 1978 bola pridaná ďalšia prístavba v zdrovej konštrukcii.
V posledných rokoch prešiel objekt rozsiahlou rekonštrukciou.
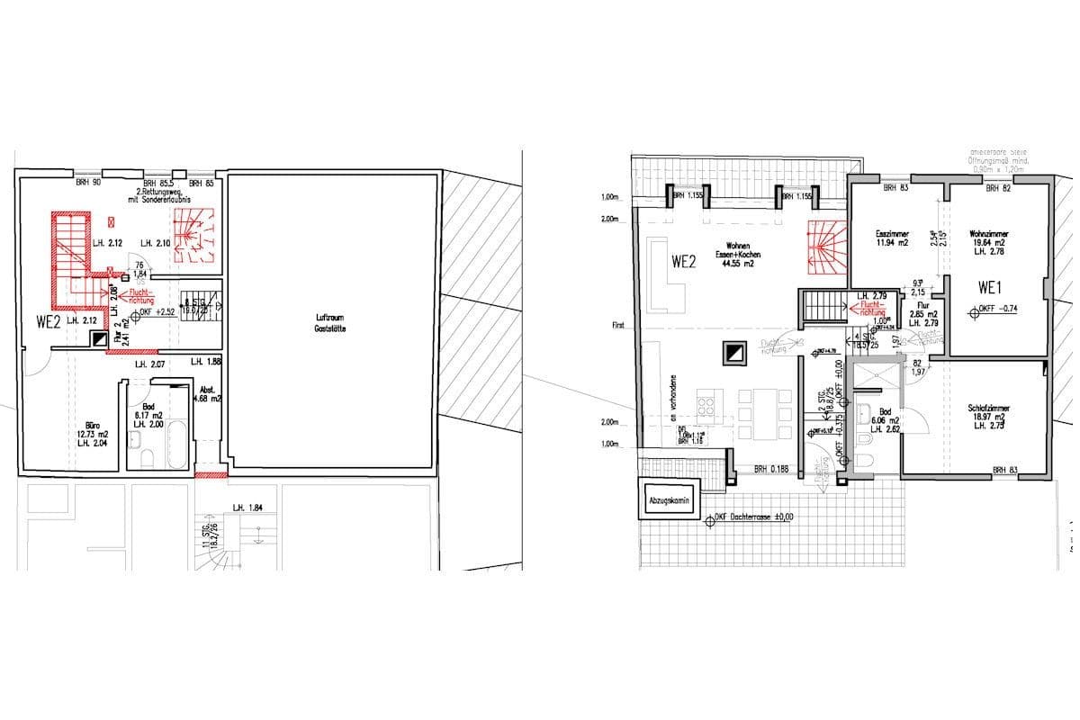
V prvom a druhom poschodí sa nachádza výnimočný Maisonette byt s terasou na streche a s obytnou plochou cca 145 m². Pri rekonštrukcii bytu sa dbalo na zachovanie starých a dekoratívnych stavebných materiálov pre zdravé vnútorné prostredie a fascinujúci zážitok z priestoru.
Cez priestranný spoločný vstup s úložným priestorom pre elektrobicykle, detské kočíky alebo aj možnosťou umiestniť skriňu na funkčné oblečenie, vstúpite aj do Maisonette bytu na prvom poschodí. Izba, ktorá môže byť využitá ako kancelária alebo/ a knižnica, okamžite láka svojím šarmom tradičného dreveného konštrukčného štýlu a množstvom dreva.
Cez chodbu sa najskôr dostanete napríklad do oddychovej izby na čítanie s možnosťou pripojenia krbu, ktorá vedie do spálne, a cez ňu do kúpeľne, ktorá bola kvalitne zrekonštruovaná a štýlovo spája prvky starého domu s modernými detailmi.
Medzi kúpeľňou a spálňou sa nachádza šatníková miestnosť s úložným priestorom.
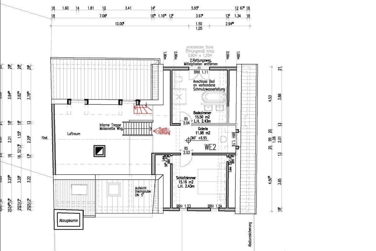
Cez kvalitne prispôsobený drevený schodisko sa dostanete do ohromujúcej obývacej/ jedálne s otvorenou kuchyňou. Pohľad tu siaha vysoko až ku krovu strechy. Ručne vyrábaný unikátny liatinový krb „Iron Dog“ vytvára útulnú atmosféru. Z jedálneho priestoru sa cez veľké moderné okná a dvere dostanete na veľkú strešnú terasu s vzdušným zábradlím a schodmi vedúcimi do vnútorného dvora. Prístup na strešnú terasu môže byť využitý aj ako vstup do bytu. Vedľa obývacej izby sa nachádza ďalšia izba s prechodom, ktorá ponúka úložný priestor a schody do nižších častí bytu. Z obývacej izby sa cez schodisko dostanete do najvyššej časti bytu, do spálne s otvorenou, moderne zariadenou kúpeľňou s walk-in sprchou. Aj tu boli zachované a vyladené mnohé dekoratívne prvky pôvodného stavby.
Maisonette byt môže byť dodaný prázdny alebo prenajatý súčasnému majiteľovi. Prenájom ako dovolenkový byt bol tento rok zahájený, čím je možné dosiahnuť mesačný príjem z prenájmu vo výške cca 3 600 €. Do októbra vrátane roku 2025 mohli byť z Maisonette bytu generované príjmy z prenájmu vo výške 19 218 €.
V hornom poschodí domu sa nachádza pekný, dobre prenajatý byt s obytnou plochou cca 60 m², rozdelený medzi obývaciu izbu, kuchyňu s jedálenským kútom, spálňu, moderne zariadenú kúpeľňu s denným svetlom a sprchou a vstupnú časť.
Podlahy bytu sú pokryté kvalitnou parketovou podlahou a kúpeľňa je obložena dlažbou.
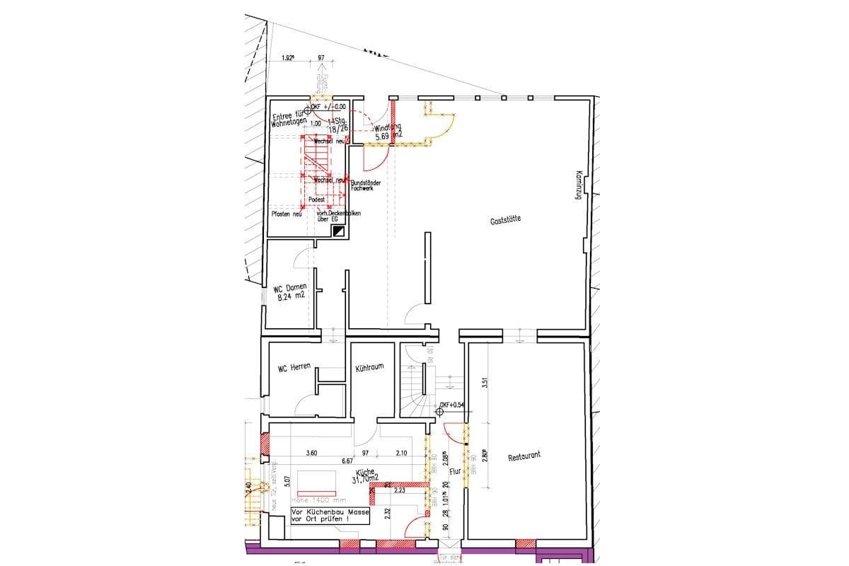
V prízemí domu sa nachádza elegantná, dobre prenajatá reštaurácia o rozlohe cca 320 m² s terasou.
Udržiavané pivničné podlažie je využívané pre reštauráciu a zahŕňa mimo iného prípojky domu, skladovacie priestory, šatňu pre zamestnancov a práčovňu.
Táto výnimočná nehnuteľnosť sa nachádza v útulnom starom meste Waltrop.
Pešo dostupné sú rôzne možnosti nákupov, lekári, lekárne, reštaurácie, športové kluby a mestský park.
Základné školy, materské školy a stredné školy sú taktiež rýchlo dostupné.
Waltrop leží na severnom okraji Porúria, nedaleko centier Dortmundu a Essenu a vďaka blízkej rýchlej ceste je absolútne rýchlo dostupný. Mesto s približne 30 000 obyvateľmi tvorí most medzi centrálnou oblasťou urbánneho priemyselného regiónu a vidieckym Münsterlandom.
Zelené chodníky a cyklotrasy pozývajú na rozsiahle prechádzky pozdĺž kanálov alebo polí.
Rozmanitá kultúrna ponuka, živý spolkový život a známy parkfest, ktorý presahuje obecné hranice, dodávajú tomuto takmer rodinne pôsobiacemu malomestu svoj šarm.
Ročný aktuálny nájom/ nájomné bez prenájmu Maisonette bytu (čistý): 47 760,00 €
Ročný očakávaný nájom/ nájomné (čistý) vrátane trvalého prenájmu Maisonette bytu: 60 960,- €
- Pri dovolenkovom prenájme Maisonette bytu s cca 120,- €/deň pri plnej obsadenosti je možný príjem až 90 960,- €.
- Jedinečný, reprezentatívny obytný a obchodný dom s gastronómiou
- Dom s tradičnou konštrukciou odhadovaný na približne 600 rokov, dom s tradičnou konštrukciou starší približne 120 rokov (oba bez ochrany ako pamiatka), prístavba v zdrovej konštrukcii z roku 1978
- Čiastočne s pivnicou
- Kúpny pozemok cca 397 m²
- Náročná rekonštrukcia s ohľadom na zachovanie tradičných konštrukčných prvkov od roku 2008 do 2023
- Elegantná reštaurácia s cca 310 m² plochy, prenajatá
- Byt s cca 60 m² obytného priestoru, prenajatý
- Výnimočný Maisonette byt s cca 145 m² obytného priestoru
- Krb
- Strešná terasa
- Kvalitné, starostlivo vybrané materiály, preto zdravé vnútorné prostredie
Chcete si domov pozrieť?
Pošlite nám, prosím, dopyt cez kontaktný formulár alebo e-mailom na: info@immobilienmakler12.de, budeme Vás neodkladne kontaktovať.
Písomné dopyty sú spracovávané oveľa rýchlejšie ako telefonické dopyty!
BEZ PROVÍZIE PRE KÚPITEĽA
Toto je neviazuca ponuka spoločnosti
FREIESLEBEN GmbH,
Steinstraße 14
45657 Recklinghausen
Tel.: 02361 - 90 61 030
Internet: www.immobilienmakler12.de
E-mail: info@immobilienmakler12.de
Môžete nás kontaktovať PO MONDI až DO NEDIELE
od 7:00 do 22:00. Víkendy Vám navyše ponúkame naše služby ohľadom ohodnotenia nehnuteľnosti, prehliadok objektov a osobného stretnutia.
Čo sa týka objektu, spoliehame sa na informácie od vlastníkov a úradov. Za správnosť a úplnosť poskytnutých údajov neručíme. Okrem toho za objekt nemožno poskytnúť žiadnu záruku a za likviditu zmluvných partnerov neručíme.
Chcete, aby Vašu nehnuteľnosť profesionálne uvedli na trh?
- Využite našu bezplatnú službu a nechajte si od jedného z našich realitných špecialistov zhodnotiť aktuálnu hodnotu Vašej nehnuteľnosti.
- Zoptimalizujte predajné šance Vašej nehnuteľnosti tým, že pre Vás vytvoríme špeciálne prispôsobený marketingový plán.
- Využite našu vynikajúcu, celorepublikovú sieť a my Vám čo najskôr sprostredkujeme záujemcov. Stovky záujemcov čakajú na Vás!
Zavolajte nám, tešíme sa na Vás!
Centrálne Münsterland: Tel.: 0251 - 39 444 998
Centrálne Porúrie: Tel.: 0234 - 58 13 05
Parametre nehnuteľnosti
| Vek | Nad 50 rokov |
|---|---|
| Dispozícia | 6+1 |
| Úžitková plocha | 255 m² |
| Celkové poschodia | 3 |
| Stav | Veľmi dobrý |
|---|---|
| Číslo inzerátu | 963119 |
| Plocha pozemku | 397 m² |
| Cena za jednotku | 3 137 € / m2 |
Čo táto nehnuteľnosť ponúka?
| Pivnica | |
| Terasa |
| MHD 0 minút pešo |
V okolí nehnuteľnosti nájdete
Stále hľadáte to pravé?
Nastavte si strážneho psa. Ponuky vybrané na mieru dostanete súhrnne 1× denne e-mailom. S Premium profilom máte po ruke rovno 5 strážcov a keď sa niečo objaví, informujú vás obratom.




































