
Predaj domu 4+kk • 160 m² bez realitkyJana Čermáka, Přišimasy - Přišimasy, Středočeský kraj
Jana Čermáka, Přišimasy - Přišimasy, Středočeský krajMHD 4 minúty pešo • Čiastočne vybavené • Balkón 13,66 m² • Pivnica 5,58 m²Rodinný dům s vinotékou v Přišimasech – domov s duší, komfortem a vizí do budoucna
Nabízíme k prodeji samostatně stojící cihlový rodinný dům v srdci obce Přišimasy, ideální pro rodiny, které hledají klid, zázemí a možnost spojit bydlení s podnikáním nebo prací z domova.
Dům se nachází v centru obce, v pěší vzdálenosti od školy, školky i obchodů. Díky výborné dostupnosti do Prahy autem, vlakem i autobusem představuje místo, kde se venkovská pohoda potkává s městským komfortem.
⸻
Místo, které roste s vámi
Obec Přišimasy právě prochází dynamickým rozvojem – budují se nové chodníky, chystá se spádová škola v Úvalech (otevření do 2 let) a probíhá výstavba nového obchvatu, který výrazně zrychlí cestu do Prahy a zároveň sníží provoz v obci.
To vše zvyšuje hodnotu nemovitostí i kvalitu života obyvatel.
___
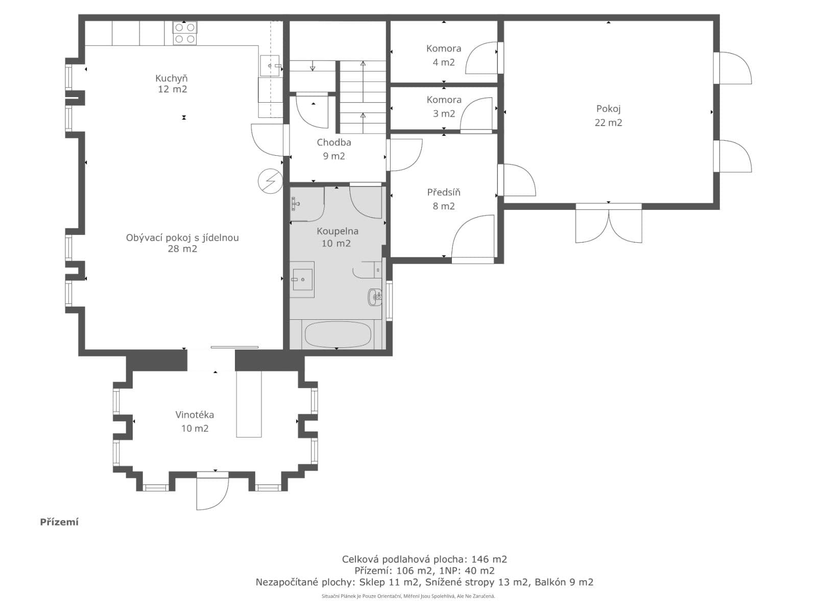
Dům s charakterem, pohodlím i moderními technologiemi
Dům nabízí užitnou plochu cca 160 m² a je ve výborném technickém stavu.
Součástí je zahrada o rozloze 457 m², která poskytuje soukromí i prostor pro relaxaci.
Zastavěná plocha činí 179 m².
Součástí prodeje je kompletní kuchyňská linka včetně elektrospotřebičů, takže nový majitel může dům okamžitě užívat bez nutnosti dalších investic.
K vybavení patří klimatizace, elektricky ovládaná brána a bezpečnostní systém,
vše propojené s chytrým ovládáním přes mobilní telefon – včetně topení.
Dům je tedy nejen útulný, ale i technologicky moderní a energeticky úsporný.
K domu je již zpracována architektonická studie rozšíření dětského pokoje o přilehlý balkon –
tedy možnost, jak elegantně zvětšit obytnou část a přidat další funkční prostor pro rodinu.
⸻
Vinotéka s potenciálem
Velkou přidanou hodnotou je stylová vinotéka, která je nyní vedena jako nebytová část.
Díky své dispozici ji však lze velmi snadno upravit na plnohodnotnou bytovou jednotku.
Tento prostor umožňuje spojit bydlení s podnikáním – ideální například pro maminku, která chce pracovat z domova, nebo jako showroom, e-shop, ateliér či kancelář.
Dům tak nabízí nejen domov, ale i příležitost pro osobní svobodu a finanční nezávislost.
⸻
✨ Shrnutí předností:
• klidné bydlení v centru obce Přišimasy
• stylová vinotéka – nebytová část s možností přestavby na byt
• užitná plocha cca 160 m², zahrada 457 m², zastavěná plocha 179 m²
• v ceně kuchyňská linka včetně elektrospotřebičů
• klimatizace, elektrická brána, bezpečnostní systém i topení ovládané mobilem
• architektonická studie pro rozšíření dětského pokoje o balkon
• nově budované chodníky, spádová škola v Úvalech, obchvat ve výstavbě
• ideální pro rodinu s dětmi nebo jako investice s potenciálem růstu
⸻
Pokud Vás tento dům zaujal, rádi Vás přivítáme na osobní prohlídce.
Přijďte se přesvědčit, že právě tady můžete žít pohodlně, chytře a s výhledem do budoucnosti.
Dům, který spojuje domov, podnikání i investici, už čeká na své nové majitele.
Jsme přímí prodejci, RK, prosíme opravdu nevolejte!!!!
Parametre nehnuteľnosti
| Dostupné od | 4. 11. 2025 |
|---|---|
| Konštrukcia budovy | Tehla |
| Vybavené | Čiastočne |
| Nízkoenergetická | Áno |
| PENB | B - Veľmi úsporné |
| Úžitková plocha | 160 m² |
| Cena za jednotku | 95 000 CZK / m2 |
| Stav | Dobrý |
|---|---|
| Dispozícia | 4+kk |
| Číslo inzerátu | 961816 |
| Vlastníctvo | Osobné |
| Poloha domu | Oddelené stránky |
| Plocha pozemku | 570 m² |
Čo táto nehnuteľnosť ponúka?
| Balkón 13,66 m² | |
| MHD 4 minúty pešo |
| Pivnica 5,58 m² |
V okolí nehnuteľnosti nájdete

Predaj domuVykáň - Vykáň, Středočeský kraj- 5+kk
- 242 m²
- 395 m²
13 990 000 CZK16 387 200 CZK
Ušetríte 2 397 200 CZK



Stále hľadáte to pravé?
Nastavte si strážneho psa. Ponuky vybrané na mieru dostanete súhrnne 1× denne e-mailom. S Premium profilom máte po ruke rovno 5 strážcov a keď sa niečo objaví, informujú vás obratom.



















