
Predaj bytu 3+kk • 72 m² bez realitkyLegerova, Praha - Nové Město
Nabízíme nový byt 3+kk po kompletní rekonstrukci v ulici Legerova, Nové Město, Praha 2. Byt je čerstvě po rekonstrukci (dokončeno 10/2025), nový, neobydlený, příprava na kuchyňskou linku. Byt je tichý o celkové ploše 62 m², k tomu zděný sklep o velikosti 10 m² v suterénu, který je možný obývat (pynové vafky, el., umyvadlo, dřevěná zavěšená dvoupostel).
Byt se nachází v cihlovém budově v 2. nadzemním podlaží z 5. Byt je světlý a vzdušný. Dvě okna do vnitrobloku, jedno okno do ulice Legerova. Historický dům je v dobrém stavu, proběhla výměna oken do ulice, stoupačky, vstup na čip, ostatní části domu v dobrém stavu.
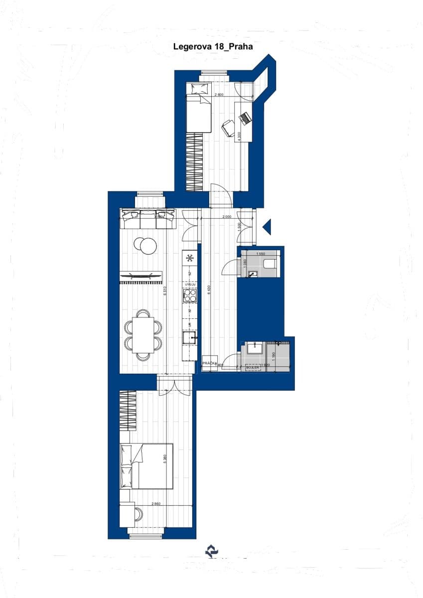
Dispozice bytu:
• obývací pokoj s přípravou pro kuchyňskou linku (19 m2)
• pokoj 1. s komorou (12,4 m2)
• pokoj 2. (15,8 m2)
• koupelna se sprchovým koutem, umyvadlem a bojlerem (2,4m2)
• samostatné WC s umyvadlem (2 m2)
• chodba s prostorem na vestavěnou skříň a vývody na pračku (10,2 m2)
• sklep s patrovou dvoupostelí (obyvatelná místnost) (10,3 m2)
Poplatky týkající se bytu jsou nyní 4.300 Kč / měsíčně (voda, fond oprav, atd.) + poplatky ze elektřinu.
Rekonstrukce bytu zahrnovala:
• kompletní výměnu elektroinstalačních rozvodů
• kompletní výměnu rozvodů vody a odpadu
• topení na el. olejové radiátory
• kompletní úprava povrchů stěn (štukování, malování)
• nové dřevěné parkety na podlahách v pokojích
• podlahové obvodové lišty
• dveře interiérové nové včetně obložkových zárubní
• renovované dvoje vnitřní dvoukřídlé dveře
• kompletní nová koupelna a toaleta
• dlažba BETONICO bílo šedá 60x60 rekt.
• obklad BETONICO bílo šedá 60x60 rekt.
• umývadlo Laufen pro S 60 cm
• zrcadlo 60 x 80 cm s LED podsvícením
• nové WC závěsné
• nový sprchový kout
• umyvadlo se skříňkou
• SDK strop s bodovými světly na chodbě, WC, koupelně
• nová světla s dálkovým tlumením v pokojích
• před-příprava vývodů pro kuchyňskou linku
• vstup přes původní dvoukřídlé dveře
Kuchyňskou linku si můžete objednat i přes naší spolupracující dodavatele - bližší informace u makléře.
Dům stojí ve vynikající lokalitě s výbornou infrastrukturou a dostupností. V okolí naleznete veškerou občanskou vybavenost. Perfektní dopravní dostupnost k dispozici autobusy, tramvaje a stanice metra I.P. Pavlova 4 min chůze od bytu.
Parametre nehnuteľnosti
| Dostupné od | 12. 11. 2025 |
|---|---|
| Výstavba budov | Tehla |
| Vybavené | Nevybavené |
| Číslo inzerátu | 956004 |
| PENB | G - Mimoriadne nehospodárne |
| Umiestnenie | Tichá časť |
| Cena za jednotku | 138 750 CZK / m2 |
| Stav | Po rekonštrukcii |
|---|---|
| Dispozícia | 3+kk |
| Poschodie | 2. poschodie z 5 |
| Vlastníctvo | Osobné |
| Rekonštrukcia | Kompletné |
| Úžitková plocha | 72 m² |
Vyberáte byt?
Majte istotu, že máte všetky dôležité informácie!
Čo táto nehnuteľnosť ponúka?
| Pivnica 10 m² |
V okolí nehnuteľnosti nájdete
Stále hľadáte to pravé?
Nastavte si strážneho psa. Ponuky vybrané na mieru dostanete súhrnne 1× denne e-mailom. S Premium profilom máte po ruke rovno 5 strážcov a keď sa niečo objaví, informujú vás obratom.




















