Prenájom nebytového priestoru • 270 m² bez realitkyWartburgstr. 5, , Durínsko
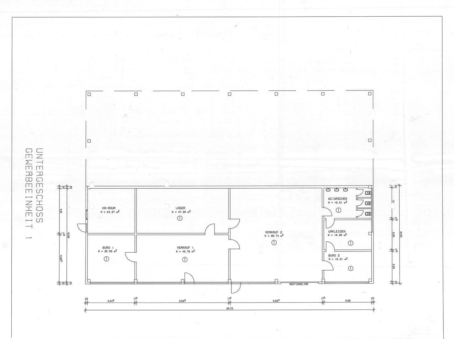
Wartburgstr. 5, , DurínskoMHD 1 minúta pešoPonúkaná obchodná jednotka sa nachádza v objektovom komplexe postavenom v roku 1992 v prízemí a zahŕňa približne 270 m² využiteľnej plochy. Na pozemku s rozlohou približne 1000 m², ktorý patrí k nájomnej nehnuteľnosti, má budúci nájomca navyše k dispozícii približne 300 m² trávnika (NEZARÁTANÉ DO NÁJOMNÉJ CENY, CENA: 1,00 €/m²) a približne 300 m² dlažebných parkovacích miest. Obchodná jednotka sa nachádza v prízemí a je úplne oddelená od dvoch ďalších prenajatých obchodných jednotiek (štúdio športovej fyzioterapie + výrobca nástrojov), ktoré sa nachádzajú v zadnej časti budovy. Využiteľná plocha pozostáva zo 7 miestností:
1x sanitárie cca 16,5 m², s 3 toaletami a 3 umývadlami,
1x prezliečňa cca 16 m²,
1x kancelária/kuchyňa cca 16,5 m² s obkladom z dlaždíc a prípojkami pre kuchyňu,
1x výstavné/produkčné/predajné priestory cca 100 m² s plne sklenenou čelou,
1x výstavné/predajné/konzultačné priestory cca 50 m² s plne sklenenou čelou,
1x sklad/produkcia cca 50 m²,
1x kancelária/predaj cca 25 m².
Približne 30 m dlhé sklenené čelo a okná ponúkajú voľný výhľad na nezastavanú krajinu.
Obchodná jednotka je vďaka dispozícii, polohe a vybaveniu veľmi univerzálne využiteľná.
Priestory boli doteraz využívané ako predajné a výstavné plochy nábytku.
Vybavenie
Ponúkané obchodné priestory sa nachádzajú v Stedtfeld OT Eisenach/Gewerbepark. Miestnosti sú situované priamo na Oberlandstr./Wartburgstr., a sú teda veľmi centrálne. Najbližšie prístupové body diaľnice BA 4 sú Eisenach-West a Herleshausen (cca 8 minút autom). Autobusová zastávka sa nachádza priamo vedľa obchodnej nehnuteľnosti. Úplne nová cyklistická cesta (50 m vzdialená) vedie pozdĺž rieky do Eisenachu.
Podlahové krytiny z laminátu a dlažieb.
Markízy vonku a žalúzie vo vnútri.
Kúrenie: diaľkové kúrenie
Teplá voda: prietokový ohrievač alebo diaľkový kotol
Optické káble už vedené do budovy a budú čoskoro pripojené.
Čerstvo inštalovaná fotovoltaická inštalácia s výkonom cca 30 kW ponúka možnosť lacnej elektriny.
Parametre nehnuteľnosti
| Vek | Nad 50 rokov |
|---|---|
| Číslo inzerátu | 955267 |
| Plocha pozemku | 1 000 m² |
| Stav | Dobrý |
|---|---|
| Plocha nebytového priestoru | 270 m² |
| Cena za jednotku | 6 € / m2 |
Čo táto nehnuteľnosť ponúka?
| MHD 1 minúta pešo |
V okolí nehnuteľnosti nájdete
Stále hľadáte to pravé?
Nastavte si strážneho psa. Ponuky vybrané na mieru dostanete súhrnne 1× denne e-mailom. S Premium profilom máte po ruke rovno 5 strážcov a keď sa niečo objaví, informujú vás obratom.



























