
Predaj pozemku • 328 m² bez realitkyNepovolená, Praha - Dubeč
Nepovolená, Praha - DubečMHD 3 minúty pešoNabízíme k prodeji STAVEBNÍ POZEMEK včetně STAVEBNÍHO POVOLENÍ ve stávající zástavbě městské části Praha 10 - Dubeč. Ideální pro ty, kteří chtějí stavět vlastní dům bez rizika zdlouhavého získávání stavebního povolení, případně pro ty hledají možnost výstavby vlastního rodinného domu.
K prodeji nabízíme samostatně i druhý přiléhající pozemek (k záměru lze přistoupit i jako k investici, kdy v jedné nemovitosti lze bydlet a druhou pronajímat či prodat).
Při nastavení vzájemně vyhovujících časových a finančních mechanizmů je prodejní cena k jednání.
Nabízení pozemek rozloze 328 m2 představuje skvělou investiční příležitost pro bydlení s veškerým zázemím. Klíčovou výhodou je již zahrnuté STAVEBNÍ POVOLENÍÉ pro rodinný dům, což zjednodušuje a zrychluje proces plánování a výstavby.
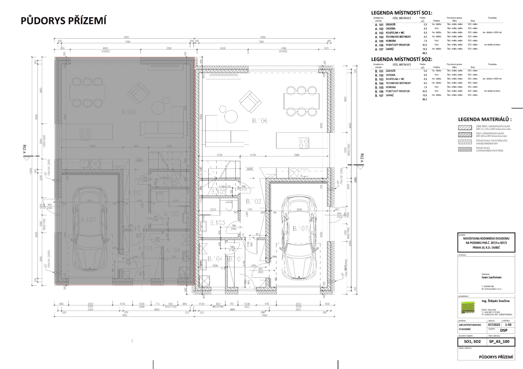
Dvoupodlažní rodinný dům je připojen na veřejné rozvody elektrické energie, vodovodu a kanalizace. Vytápění je zajištěno tepelným čerpadlem a podlahovým vytápěním. Výměna vzduchu je zajištěno rekuperační jednotkou vzduchu.
Pozemek je situačně velmi příhodně umístěn s dobrou dostupností městské hromadné dopravy, autobusových linek i přilehlé silniční komunikace, což činí cestování a spojení s centrem Prahy velmi pohodlným.
V přiléhající komunikaci jsou vedeny rozvody elektřiny, kanalizace, vodovodu, plynu a datové rozvody.
Lokalita poskytuje klid a pohodu, kdy pozemek je umístěn v proluce stávající zástavby (nejedná se o "satelitní bydlení"), přičemž zachovává blízkost městské civilizace a všech důležitých služeb.
Pokud hledáte pozemek s možností zahájení stavby na jaře příštího roku, tato nabídka je pro vás ideální volbou.
Prohlídky jsou možné po předchozí domluvě. Pro více informací o této nemovitosti nebo sjednání prohlídky nás prosím kontaktujte nebo vyplňte níže uvedený formulář, rádi Vám pomůžeme.
Prosím zástupce realitních kanceláří, aby nás nekontaktovali s nabídkou svých služeb.
We are offering for sale a CONSTRUCTION LAND, including a BUILDING PERMIT, in the existing development of the Prague 10 – Dubeč district. It is ideal for those who want to build their own house without the risk of a lengthy permit approval process, or for those looking for the opportunity to construct a single-family home.
In addition to the main plot, we also offer a second adjacent plot (which can be considered an investment opportunity where one property can be used for residential purposes and the other rented out or sold).
With mutually agreeable timing and financial arrangements, the selling price is negotiable.
The offered 323 m² plot represents an excellent investment opportunity for residential purposes with all necessary amenities. A key advantage is the already approved BUILDING PERMIT for a family house, which simplifies and accelerates the planning and construction process.
The two-story family house is connected to public electricity, water, and sewage networks. Heating is provided by a heat pump and underfloor heating, and air exchange is ensured by a recuperation unit.
The plot is very conveniently located with good access to public transportation, bus lines, and nearby roads, making commuting to the center of Prague very easy. In the adjacent street, the networks for electricity, sewage, water, gas, and data are already installed.
The area offers peace and tranquility as the plot is situated in a clearing within the existing built-up area (not in so-called “satellite housing”), while still being close to urban civilization and all essential services.
If you are looking for a plot that allows construction to start in the spring of next year, this offer is an ideal choice.
Viewings are possible by prior arrangement. For more information about this property or to schedule a viewing, please contact us or fill out the form below – we will be happy to assist you.
Please, representatives of real estate agencies, refrain from contacting us with offers of your services.
Parametre nehnuteľnosti
| Dostupné od | 12. 10. 2025 |
|---|---|
| Typ pozemku | Stavebný |
| Umiestnenie | Tichá časť |
| Cena za jednotku | 26 677 CZK / m2 |
| Číslo inzerátu | 954674 |
|---|---|
| Vlastníctvo | Osobné |
| Plocha pozemku | 328 m² |
Čo táto nehnuteľnosť ponúka?
| MHD 3 minúty pešo |
V okolí nehnuteľnosti nájdete



Predaj pozemkuNa Vinicích, Davle - Davle, Středočeský kraj- 1552 m²
8 200 000 CZK8 500 000 CZK
Ušetríte 300 000 CZK

Stále hľadáte to pravé?
Nastavte si strážneho psa. Ponuky vybrané na mieru dostanete súhrnne 1× denne e-mailom. S Premium profilom máte po ruke rovno 5 strážcov a keď sa niečo objaví, informujú vás obratom.







