
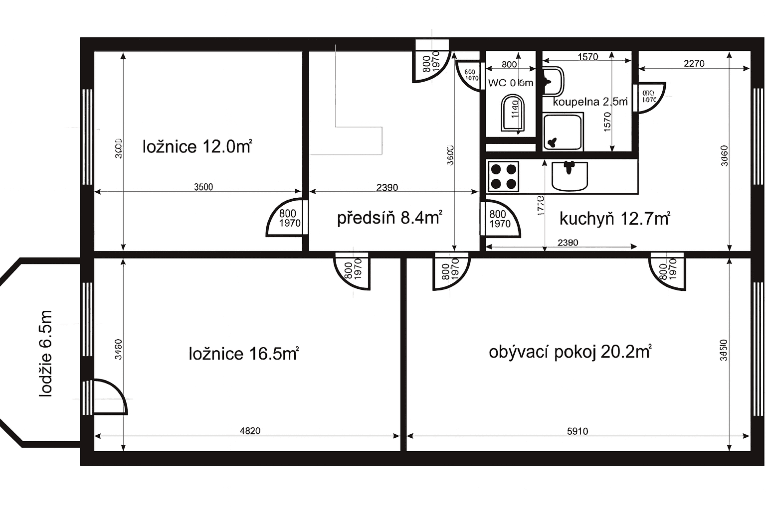
Predaj bytu 3+1 • 72 m² bez realitkyNa Loučkách, Kuřim - Kuřim, Jihomoravský kraj
Nabízím k prodeji krásný světlý byt 3+1 v osobním vlastnictví po rekonstrukci, která zahrnovala - nové laminátové podlahy, vnitřní dveře, kuchyňskou linku, koupelnu, žaluzie, výmalbu, elektroinstalaci. K bytu náleží prostorná lodžie o výměře 6,5 m2 a sklepní koje. Je zde možnost využití i dalších prostor - druhá lodžie - vstup z chodby, kočárkárna a kolárna. Dům je zateplený s výtahem.
Byt je připraven k okamžitému nastěhování.
Výborná dostupnost do Brna - před domem je autobusová zastávka a poblíž i vlakové nádraží. Pohodlné parkování u domu. V blízkosti domu se nachází základní a mateřská škola, mnoho hřišť a přírody.
Prohlídky bytu jsou možné po předchozí domluvě. Jedná se o prodej bez RK, neplatíte provizi. (Nemám zájem o kontaktování RK a děkuji za respektování.) Jedná se o přímý prodej bez provize RK. Prosím aby mne RK nekontaktovaly. Pokud se Vám nepodaří spojit telefonicky, piště prosím sms či e-mail, ozvu se Vám co nejdříve a poskytnu bližší informace.
Parametre nehnuteľnosti
| Dostupné od | 11. 10. 2025 |
|---|---|
| Výstavba budov | Panel |
| Vybavené | Nevybavené |
| Prevedenie | Luxusné |
| Vlastníctvo | Osobné |
| Umiestnenie | Rezidencie |
| Cena za jednotku | 102 639 CZK / m2 |
| Stav | Po rekonštrukcii |
|---|---|
| Dispozícia | 3+1 |
| Poschodie | 1. poschodie z 8 |
| Číslo inzerátu | 954456 |
| PENB | C - Hospodárne |
| Úžitková plocha | 72 m² |
Čo táto nehnuteľnosť ponúka?
| Pivnica 2 m² | |
| Lodžia 6,5 m² |
| Výťah | |
| Parkovanie |
V okolí nehnuteľnosti nájdete
Stále hľadáte to pravé?
Nastavte si strážneho psa. Ponuky vybrané na mieru dostanete súhrnne 1× denne e-mailom. S Premium profilom máte po ruke rovno 5 strážcov a keď sa niečo objaví, informujú vás obratom.




















