
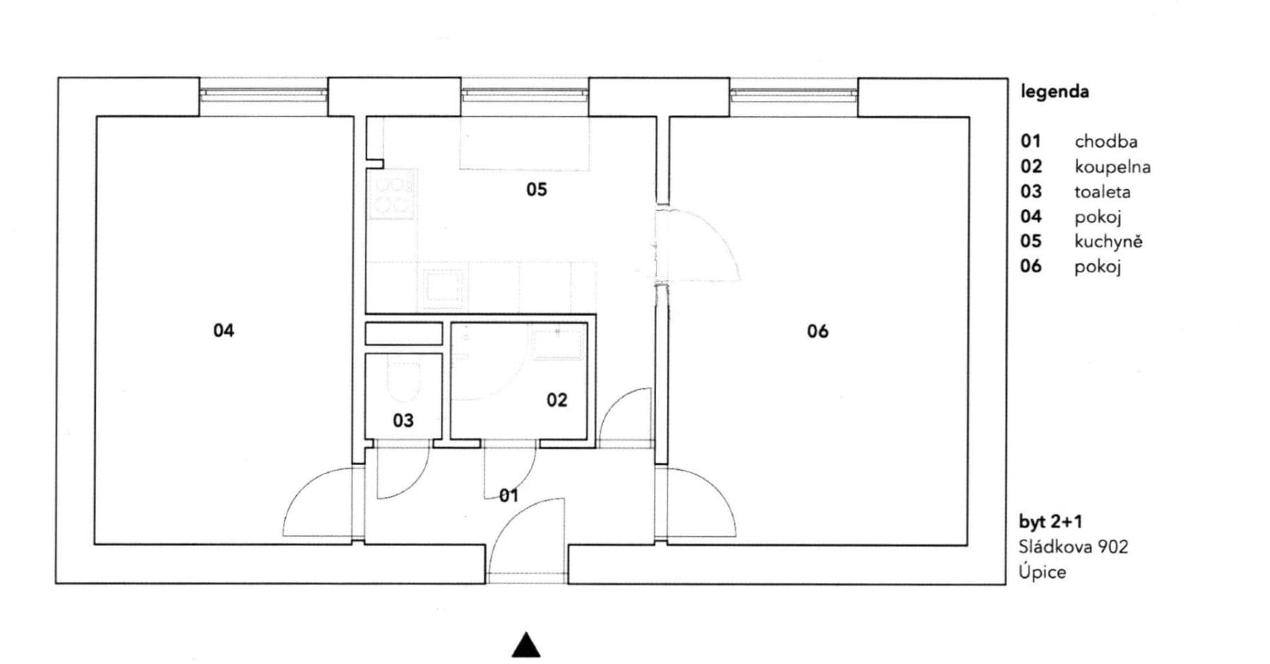
Predaj bytu 2+1 • 54 m² bez realitkySládkova, Úpice - Úpice, Královéhradecký kraj
Sládkova, Úpice - Úpice, Královéhradecký krajČiastočne vybavené • Parkovanie • Pivnica 4 m²Prodej zděného bytu 2+1, 54 m² v osobním vlastnictví – po rekonstrukci, ihned k nastěhování
Nabízíme k prodeji světlý byt v klidné části města, v osobním vlastnictví, 2+1 o velikosti 54 m². Byt se nachází v kompletně zrekonstruovaném a zatepleném cihlovém domě. Byt je orientovaný na jih, což zaručuje dostatek denního světla po celý den.
Byt prošel rekonstrukcí – nové rozvody elektřiny v mědi, plastová okna, rozvody vody a odpadu v plastu. Nové vnitřní dveře a světla. Koupelna je moderně zrekonstruovaná, vybavená novým sprchovým koutem, umyvadlem a velkoformátovými obklady. Ohřev vody je zajištěn vlastním plynovým kotlem.
Kuchyň je vybavena novým kombinovaným sporákem (plyn + elektřina) a má, stejně jako zbytek bytu, dostatek úložných prostor. Obývací část a ložnice mají zrestaurované dřevěné parkety, které dodávají interiéru příjemný charakter.
K bytu náleží sklep o rozloze 4m². Možnost využívat společnou kolárnu (kola, koloběžky, kočárky).
Dům, v kterém se byt nachází, má novou fasádu, opravenou střechu, plastová okna a díky těmto úpravám nabízí nízké náklady na vytápění. Měsíční platba do fondu oprav činí pouhých 900,-Kč/měsíc.
BYT JE PŘIPRAVEN K OKAMŽITÉMU NASTĚHOVÁNÍ A UŽÍVÁNÍ - BEZ NUTNOSTI DALŠÍCH INVESTIC.
Prosíme, RK nevolat.
Výhody bytu:
- Zateplený cihlový dům po rekonstrukci
- Nízký fond oprav – pouze 900 Kč/měsíc
- Orientace na jih
- Vlastní plynový kotel
- Kompletně zrekonstruovaný byt
- K bytu náleží sklep o výměře 4 m²
- Možnost využívat společnou kolárnu (úložný prostor pro kola, koloběžky, kočárky)
- Klidná lokalita s veškerou občanskou vybaveností
Lokalita:
Byt se nachází ve vyhledávané a klidné čtvrti – v docházkové vzdálenosti je zastávka MHD, obchod s potravinami i lesopark hned za domem. Všechny potřebné služby jsou dostupné ve městě.
Neváhejte nás kontaktovat pro více informací nebo si rovnou domluvte prohlídku!
Parametre nehnuteľnosti
| Dostupné od | 2. 9. 2025 |
|---|---|
| Konštrukcia budovy | Tehla |
| Vybavené | Čiastočne |
| Číslo inzerátu | 940161 |
| PENB | G - Mimoriadne nehospodárne |
| Úžitková plocha | 54 m² |
| Stav | Veľmi dobrý |
|---|---|
| Dispozícia | 2+1 |
| Poschodie | 4. poschodie z 4 |
| Vlastníctvo | Osobné |
| Umiestnenie | Tichá lokalita |
| Cena za jednotku | 46 111 CZK / m2 |
Čo táto nehnuteľnosť ponúka?
| Pivnica 4 m² |
| Parkovanie |
V okolí nehnuteľnosti nájdete
Stále hľadáte to pravé?
Nastavte si strážneho psa. Ponuky vybrané na mieru dostanete súhrnne 1× denne e-mailom. S Premium profilom máte po ruke rovno 5 strážcov a keď sa niečo objaví, informujú vás obratom.








