
Predaj bytu 4+kk • 97 m² bez realitkyNa Folimance, Praha - Vinohrady
Na Folimance, Praha - VinohradyČiastočne vybavené • Výťah • Pivnica 3 m² • Lodžia 5 m²Unikátní byt s duší architektury v prestižní lokalitě Vinohrad – přímo u parku Folimanka
Architektonické studio BekArch s.r.o. ve spolupráci se stavební firmou 4interior&tiles s.r.o. Vám exkluzivně představují jedinečnou příležitost pořídit si byt navržený architekty v jedné z nejvyhledávanějších částí Prahy – na pomezí Vinohrad, v těsné blízkosti parku Folimanka.
Hledáte výjimečné bydlení?
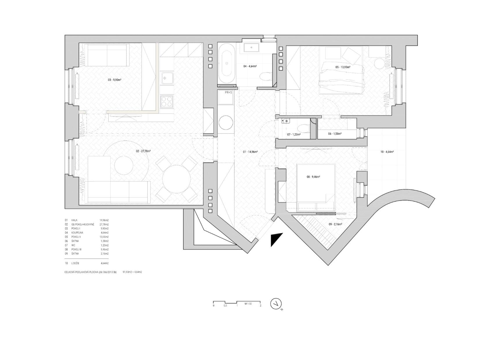
Styl, prostor a lokalita – to vše spojuje tento světlý a vzdušný byt 3+kk o rozloze 91,93 m² s možností úpravy na 4+kk, doplněný o lodžii 4,65 m². Byt se nachází v klidné ulici Na Folimance a aktuálně prochází kompletní rekonstrukcí podle návrhu architekta. Vizualizace finálního stavu a fotografie současného stavu jsou k dispozici k nahlédnutí v inzerátu.
Byt bude dokončen ve stavu fitout – tedy plně připravený k nastěhování: nové koupelny, dubové parketové podlahy, prvotřídní zařizovací předměty. Uvedená cena se vztahuje k dokončené jednotce.
Co dělá tento byt tak výjimečným?
Prostorný obývací pokoj s kuchyňským koutem – ideální pro rodinný život i společenská setkání
Klidné ložnice orientované do vnitrobloku – pro ničím nerušený spánek
Kvalitní materiály a důraz na detail: nové dubové parkety, špaletová okna, zachované původní dveře, prémiové obklady a vybavení
Možnost výběru dispozice 3+kk nebo 4+kk – dle vašich životních potřeb
Výběr povrchových materiálů – obklady, dlažby, podlahy dle vzorků přímo v architektonickém ateliéru
Výhody, které jinde nenajdete:
Personalizace interiéru ve spolupráci s architektem
Bez provize – kupujete přímo od majitele
Prestižní lokalita s výbornou dopravní dostupností a občanskou vybaveností
Park Folimanka doslova pár kroků od domu
Možnost dodělání interiéru na klíč přesně podle vašich představ (není součástí ceny)
Bydlení, které má styl. Prostor, který má smysl. Lokalita, která má jméno.
Kontaktujte nás ještě dnes a rezervujte si osobní prohlídku.
Tento byt může být už brzy vaším novým domovem – výjimečné příležitosti nečekají dlouho.
Unique Apartment with Architectural Soul in the Prestigious Vinohrady Location – Right Next to Folimanka Park
Architectural studio BekArch s.r.o. in collaboration with construction company 4interior&tiles s.r.o. exclusively presents you with a unique opportunity to acquire an apartment designed by architects in one of Prague’s most sought-after areas – on the edge of Vinohrady, in close proximity to Folimanka Park.
Looking for extraordinary living?
Style, space, and location – all come together in this bright and airy 3+kk apartment covering 91.93 m², with the possibility to modify it into a 4+kk arrangement, complemented by a 4.65 m² loggia. The apartment is located on the quiet Na Folimance street and is currently undergoing a complete renovation based on an architect’s design. Visualizations of the final state and photographs of the current condition are available in the advertisement.
The apartment will be completed in a fitout state – meaning it is fully ready to move in: new bathrooms, oak parquet floors, top-quality fixtures. The stated price refers to the finished unit.
What makes this apartment so exceptional?
• A spacious living room with a kitchenette – ideal for family life and social gatherings
• Quiet bedrooms facing the inner courtyard – ensuring an undisturbed sleep
• High-quality materials and attention to detail: new oak parquet, multi-pane windows, preserved original doors, premium wall coverings, and fittings
• The option to choose the layout of 3+kk or 4+kk – according to your lifestyle needs
• Choice of surface materials – wall coverings, tiles, floors according to samples directly in the architectural studio
Advantages you won’t find elsewhere:
• Personalized interior design in collaboration with an architect
• No commission – you buy directly from the owner
• Prestigious location with excellent transport links and civic amenities
• Folimanka Park is literally just a few steps from your door
• The option to finish the interior turnkey exactly according to your vision (not included in the price)
Living with style. Space with meaning. A location with a name.
Contact us today and book a personal viewing.
This apartment could soon be your new home – exceptional opportunities don’t last long.
Parametre nehnuteľnosti
| Dostupné od | 15. 10. 2025 |
|---|---|
| Výstavba budov | Tehla |
| Vybavené | Čiastočne |
| Číslo inzerátu | 936239 |
| PENB | D - Menej hospodárne |
| Úžitková plocha | 97 m² |
| Stav | Veľmi dobrý |
|---|---|
| Dispozícia | 4+kk |
| Poschodie | 1. poschodie z 4 |
| Vlastníctvo | Osobné |
| Umiestnenie | Tichá časť |
| Cena za jednotku | 184 536 CZK / m2 |
Vyberáte byt?
Majte istotu, že máte všetky dôležité informácie!
Čo táto nehnuteľnosť ponúka?
| Pivnica 3 m² | |
| Lodžia 5 m² |
| Výťah |
V okolí nehnuteľnosti nájdete

Predaj bytuMilánská, Praha - Horní Měcholupy- 4+kk
- 120 m²
16 990 000 CZK18 500 000 CZK
Ušetríte 1 510 000 CZK



Stále hľadáte to pravé?
Nastavte si strážneho psa. Ponuky vybrané na mieru dostanete súhrnne 1× denne e-mailom. S Premium profilom máte po ruke rovno 5 strážcov a keď sa niečo objaví, informujú vás obratom.










