
Predaj domu • 185 m² bez realitkyRadějovice - Radějovice, Středočeský kraj
Radějovice - Radějovice, Středočeský krajParkovanie • Garáž • Balkón 15 m² • Terasa 20 m²Nabízíme k prodeji výjimečnou, atypickou nemovitost na lukrativním pozemku se vzrostlou zahradou
A velkorysým bazénem.
Dispozice domu jsou:
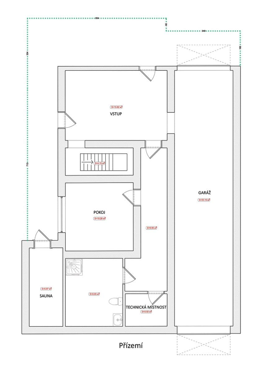
• Přízemí - 90 m2
• Vstupní hala
• Schodiště do 1.patra
• Pokoj
• Chodba
• Koupelna, WC, solárium
• Sauna
• Technická místnost
• Garáž
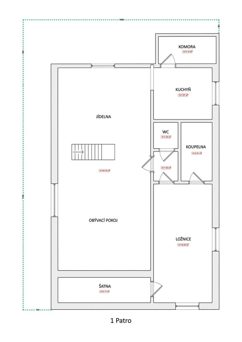
• 1. Patro - 95 m2
• Obývací pokoj a jídelna
• ložnice
• šatna
• chodba
• WC samostatné
• Koupelna + WC
• Kuchyň
• Komora
U bazénu je venkovní dlážděná terasa s ohništěm.
V patře je kolem poloviny domu, která vede nad zahradou, prostorný, průchozí balkon.
Kromě garáže o velikosti 33 m2 lze na vjezdu do pozemku zaparkovat 3 auta.
Autobusová zastávka je 1 minutu chůze od domu.
Požadovaná cena je 12.950.000 Kč.
RK nevolejte.
Parametre nehnuteľnosti
| Dostupné od | 26. 6. 2025 |
|---|---|
| Konštrukcia budovy | Tehla |
| Vybavené | Nevybavené |
| Vlastníctvo | Osobné |
| Poloha domu | Samostatný |
| Plocha pozemku | 1 742 m² |
| Stav | Dobrý |
|---|---|
| Dispozícia | Ostatné |
| Číslo inzerátu | 918684 |
| PENB | E - Nehospodárne |
| Úžitková plocha | 185 m² |
| Cena za jednotku | 70 000 CZK / m2 |
Čo táto nehnuteľnosť ponúka?
| Balkón 15 m² | |
| Parkovanie |
| Garáž | |
| Terasa 20 m² |
V okolí nehnuteľnosti nájdete
Stále hľadáte to pravé?
Nastavte si strážneho psa. Ponuky vybrané na mieru dostanete súhrnne 1× denne e-mailom. S Premium profilom máte po ruke rovno 5 strážcov a keď sa niečo objaví, informujú vás obratom.












