
Predaj domu 5+kk • 145 m² bez realitkyPřevýšov - Převýšov, Královéhradecký kraj
Převýšov - Převýšov, Královéhradecký krajČiastočne vybavené • Parkovanie • Garáž • Pivnica 37,05 m²Https://my.matterport.com/show/?m=waBso7fEA32
Prodám RD v Převýšově (okr. Hradec Králové). Samostatně stojící, podsklepený rodinný dům, s částečně využitím podkrovím, zkolaudovaný v roce 1988. Tento dům o zastavěné ploše 145 m2 s pozemkem 1439 m2 se nachází v okrajové klidné části obce.
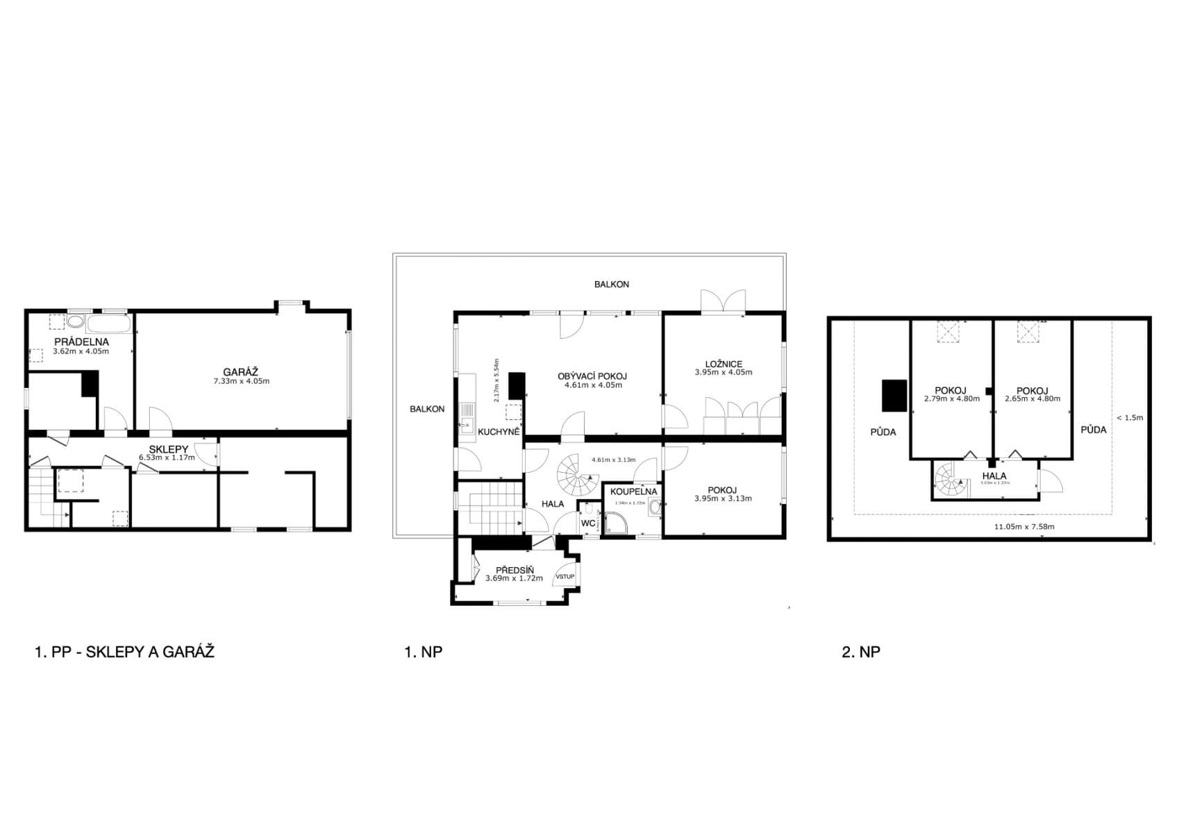
V 1.PP (se nachází technické zázemí domu (garáž, kotelna, prádelna, sklad uhlí a dřeva, sklep).
1.NP se nachází (ložnice, dětský pokoj, obývací pokoj s kuchyní a spíží, chodba, koupelna a WC. Z obývacího pokoje je vstup na prostornou terasu s výhledem do zahrady.
2. NP je jen částečně využité a nachází se zde 2 pokoje s chodbou, která vede na půdu.
V průběhu let prošel dům rekonstrukcí
Dům je napojen na inženýrské sítě (voda, elektřina). Vytápění je kotlem na tuhá paliva. Vlastní studna, odkanalizování domu do vlastní jímky. Možné napojení na obecní plyn a kanalizaci.
Velkou výhodou je kompletní občanská vybavenost v místě – školka, dětské hřiště, obchod, hospoda. Výborná dopravní dostupnost: autobus, vlak, jen 25 minut do Hradce Králové a 40 minut do Prahy.
RK nevolat.
Parametre nehnuteľnosti
| Vek | 30 - 50 rokov |
|---|---|
| Stav | Po částečné rekonstrukci |
| Dispozícia | 5+kk |
| Vykurovanie | Ostatné |
| Vlastníctvo | Osobné |
| Poloha domu | Samostatný |
| Úžitková plocha | 145 m² |
| Celkové poschodia | 3 |
| Dostupné od | 1. 3. 2026 |
|---|---|
| Konštrukcia budovy | Zmiešaná |
| Vybavené | Čiastočne |
| Číslo inzerátu | 913856 |
| PENB | G - Mimoriadne nehospodárne |
| Umiestnenie | Tichá lokalita |
| Plocha pozemku | 1 584 m² |
| Cena za jednotku | 58 613,79 CZK / m2 |
Čo táto nehnuteľnosť ponúka?
| Pivnica 37,05 m² | |
| Parkovanie |
| Garáž |
V okolí nehnuteľnosti nájdete
Stále hľadáte to pravé?
Nastavte si strážneho psa. Ponuky vybrané na mieru dostanete súhrnne 1× denne e-mailom. S Premium profilom máte po ruke rovno 5 strážcov a keď sa niečo objaví, informujú vás obratom.



















