
Predaj bytu 3+kk • 74 m² bez realitkyHořelické náměstí, Rudná - Hořelice, Středočeský kraj
Hořelické náměstí, Rudná - Hořelice, Středočeský krajČiastočne vybavené • Parkovanie • Lodžia 5,98 m²Prodám byt 3+kk, 74 m² s balkonem, Rudná u Prahy
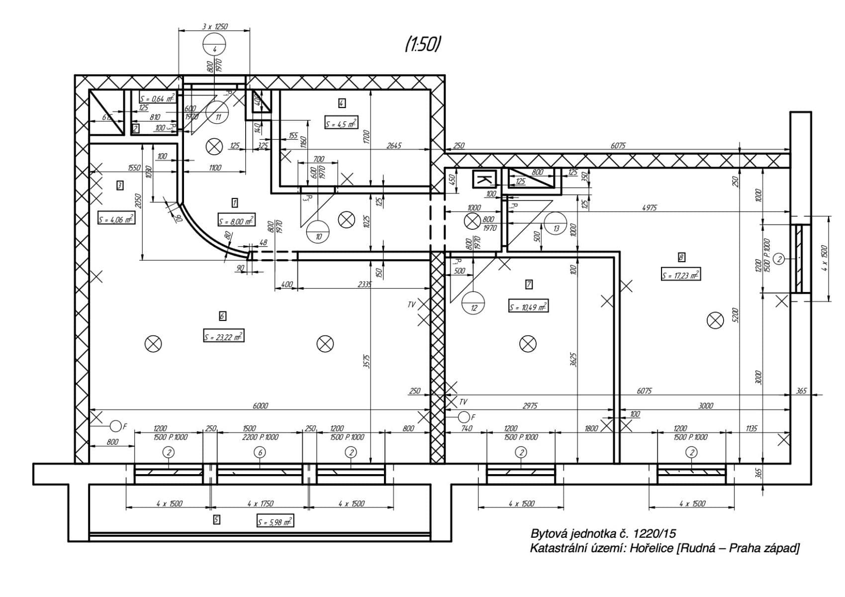
Prodám byt o dispozici 3+kk a celkové ploše 74 m² s balkonem v Rudné u Prahy. Cena bytu je 7 900 000 Kč.
K bytu náleží parkovací stání a sklep. Byt je vybaven klimatizací v každém pokoji a má zasklený balkon, který zvyšuje komfort bydlení po celý rok.
Byt se nachází v klidné lokalitě na adrese Hořelické náměstí, Rudná u Prahy s dobrou dostupností do Prahy a veškerou občanskou vybaveností v okolí. Prodej přímo od majitele – bez realitní kanceláře.
V případě zájmu mě neváhejte kontaktovat zprávou. Jestli vás tato nabídka zaujala můžete mi napsat. Prosíme, realitní makléři nepište a nevolejte !
Hello.
We plan to sell our 3-room apartment (3+kk) (74 m²) in Rudná, on Hořelická Square. The apartment is priced at 7,500,000 CZK. It comes with a cellar and a parking space. The apartment is located on the 2nd floor and has a glazed balcony. Sale directly from the owner – no real estate agency. Please, real estate agents, do not contact me!
If you are interested, feel free to contact me by message. If this offer catches your attention, you can write to me. Real estate agents, please do not write!
Parametre nehnuteľnosti
| Vek | 10 - 30 rokov |
|---|---|
| Stav | Veľmi dobrý |
| Dispozícia | 3+kk |
| Poschodie | 3. poschodie z 4 |
| Vykurovanie | Plynové |
| Vlastníctvo | Osobné |
| Umiestnenie | Tichá lokalita |
| Cena za jednotku | 106 757 CZK / m2 |
| Dostupné od | 1. 3. 2026 |
|---|---|
| Konštrukcia budovy | Tehla |
| Vybavené | Čiastočne |
| Prevedenie | Štandardné |
| Číslo inzerátu | 899503 |
| PENB | C - Hospodárne |
| Úžitková plocha | 74 m² |
Vyberáte byt?
Majte istotu, že máte všetky dôležité informácie!
Čo táto nehnuteľnosť ponúka?
| Lodžia 5,98 m² |
| Parkovanie |
V okolí nehnuteľnosti nájdete
Stále hľadáte to pravé?
Nastavte si strážneho psa. Ponuky vybrané na mieru dostanete súhrnne 1× denne e-mailom. S Premium profilom máte po ruke rovno 5 strážcov a keď sa niečo objaví, informujú vás obratom.






















