Predaj domu 3+1 • 74 m² bez realitkyTřešťská, Batelov - Batelov, Kraj Vysočina
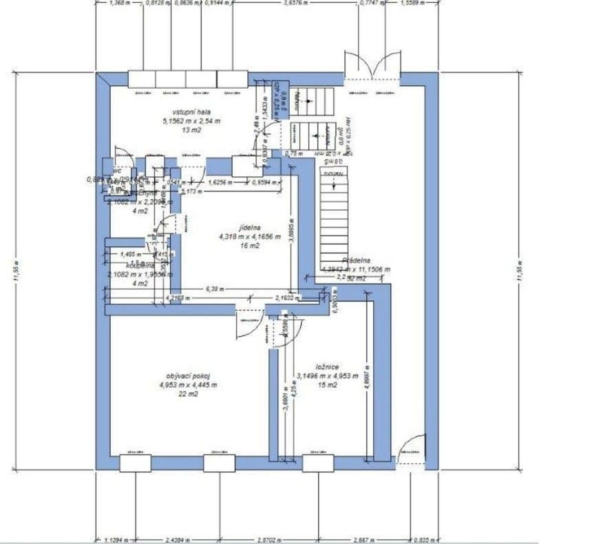
Třešťská, Batelov - Batelov, Kraj VysočinaGaráž • Balkón 3 m² • Pivnica 30 m²Nabízíme k prodeji rodinný dům s nádhernou velkou zahradou, garáží a zahradním domkem, v klidné části Batelova. Dům je napojen na veřejný vodovod, k dispozici je vlastní studna s užitkovou vodou, vytápění je řešeno plynovým kotlem, popřípadě lze nainstalovat lokální topení na tuhá paliva. Nad obytnou částí se rozkládá půda, kterou je možno využít pro vestavbu obytných prostor. Dům bude předán vyklizený, připravený na úpravy dle představ nového majitele.
V Batelově nalezneme školu, školku, poštu, několik obchodů a restauraci. Přibližně dvacet kilometrů je vzdálená Jihlava a Pelhřimov. Objekt je vhodný, po úpravách, jako rekreační nemovitost i k trvalému bydlení. Vzhledem veliké zahradě, uprostřed zastavěného území, lze doporučit i koupi jako investici, pozemek lze rozdělit a část odprodat.
Dohoda o ceně při bezproblémovém jednání možná.
Parametre nehnuteľnosti
| Dostupné od | 30. 3. 2025 |
|---|---|
| Výstavba budov | Tehla |
| Vybavené | Nevybavené |
| Číslo inzerátu | 886360 |
| PENB | G - Mimoriadne nehospodárne |
| Umiestnenie | Tichá časť |
| Plocha pozemku | 1 050 m² |
| Cena za jednotku | 69 595 CZK / m2 |
| Stav | Pred rekonštrukciou |
|---|---|
| Dispozícia | 3+1 |
| Vykurovanie | Plynové |
| Vlastníctvo | Osobné |
| Poloha domu | Sériové |
| Úžitková plocha | 74 m² |
| Celkové poschodia | 2 |
Čo táto nehnuteľnosť ponúka?
| Balkón 3 m² | |
| Garáž |
| Pivnica 30 m² |
V okolí nehnuteľnosti nájdete
Stále hľadáte to pravé?
Nastavte si strážneho psa. Ponuky vybrané na mieru dostanete súhrnne 1× denne e-mailom. S Premium profilom máte po ruke rovno 5 strážcov a keď sa niečo objaví, informujú vás obratom.















