Predaj bytu 4+1 • 87 m² bez realitkyAntonína Slavíčka, Svitavy - Čtyřicet Lánů, Pardubický kraj
Prodej bytu 4+1 s lodžií, 87 m², Svitavy – klidná lokalita
Cena: 3 390 000 Kč
Nabízíme k prodeji prostorný byt 4+1 s lodžií ve vyhledávané a klidné části Svitav. Byt se nachází v cihlovém domě, který právě prochází vnější kompletní rekonstrukcí – nová okna, střecha, zasklené balkony, zateplená fasáda. Kupující tak nečekají žádné další investice do domu.
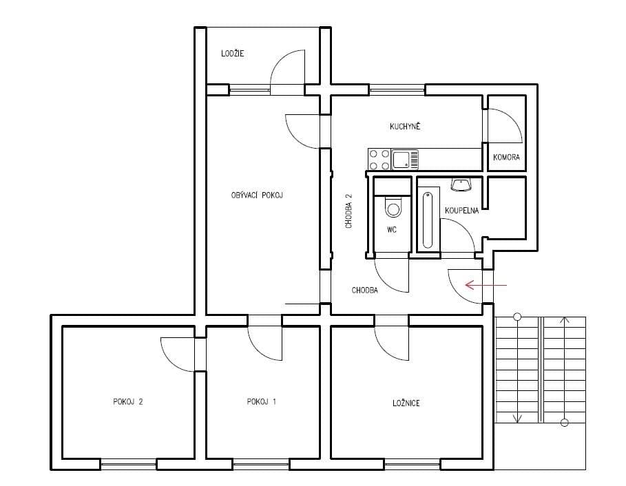
Byt o celkové ploše 87 m² disponuje velmi příjemnou a praktickou dispozicí:
obývací pokoj 20 m² s výstupem na zasklenou lodžii
kuchyně 8,2 m² + komora/spíž 2 m²
tři samostatné pokoje (12,24 m², 12,24 m², 12 m²)
koupelna 4,5 m²
samostatné WC
prostorná předsíň 7,2 m²
Topení zajišťuje vlastní plynový kotel, v kuchyni se nachází kombinovaný sporák. Interiér bytu je v původním stavu a je připravený k rekonstrukci dle vlastních představ. Exteriér domu je aktuálně v rekonstrukci, komplet hotové bude na jaře 2026, což představuje výraznou úsporu do budoucna.
K bytu náleží 2 sklepy – jeden vlastní samostatný, druhý sdílený s další rodinou – a také přilehlé pozemky patřící k budově. Parkování je možné přímo u domu.
Byt je ideální pro rodinu, která hledá prostorné bydlení, nebo pro každého, kdo oceňuje možnost upravit si interiér podle svého stylu. Vzhledem k velikosti, dispozici a stavu domu jde o mimořádně atraktivní nabídku v cenové hladině do 3,4 mil. Kč.
Prohlídky jsou možné kdykoliv po domluvě.
Rád vám byt osobně představím.
Parametre nehnuteľnosti
| Vek | 30 - 50 rokov |
|---|---|
| Stav | Pred rekonštrukciou |
| Dispozícia | 4+1 |
| Poschodie | 4. poschodie z 4 |
| Vykurovanie | Plynové |
| Vlastníctvo | Osobné |
| Rekonštrukcia | Interiér |
| Úžitková plocha | 87 m² |
| Dostupné od | 5. 12. 2025 |
|---|---|
| Konštrukcia budovy | Tehla |
| Vybavené | Čiastočne |
| Prevedenie | Štandardné |
| Číslo inzerátu | 804792 |
| PENB | G - Mimoriadne nehospodárne |
| Umiestnenie | Tichá lokalita |
| Cena za jednotku | 38 966 CZK / m2 |
Čo táto nehnuteľnosť ponúka?
| Pivnica 7 m² | |
| Parkovanie |
| Lodžia 4 m² | |
| MHD 7 minút pešo |
V okolí nehnuteľnosti nájdete
Stále hľadáte to pravé?
Nastavte si strážneho psa. Ponuky vybrané na mieru dostanete súhrnne 1× denne e-mailom. S Premium profilom máte po ruke rovno 5 strážcov a keď sa niečo objaví, informujú vás obratom.















