
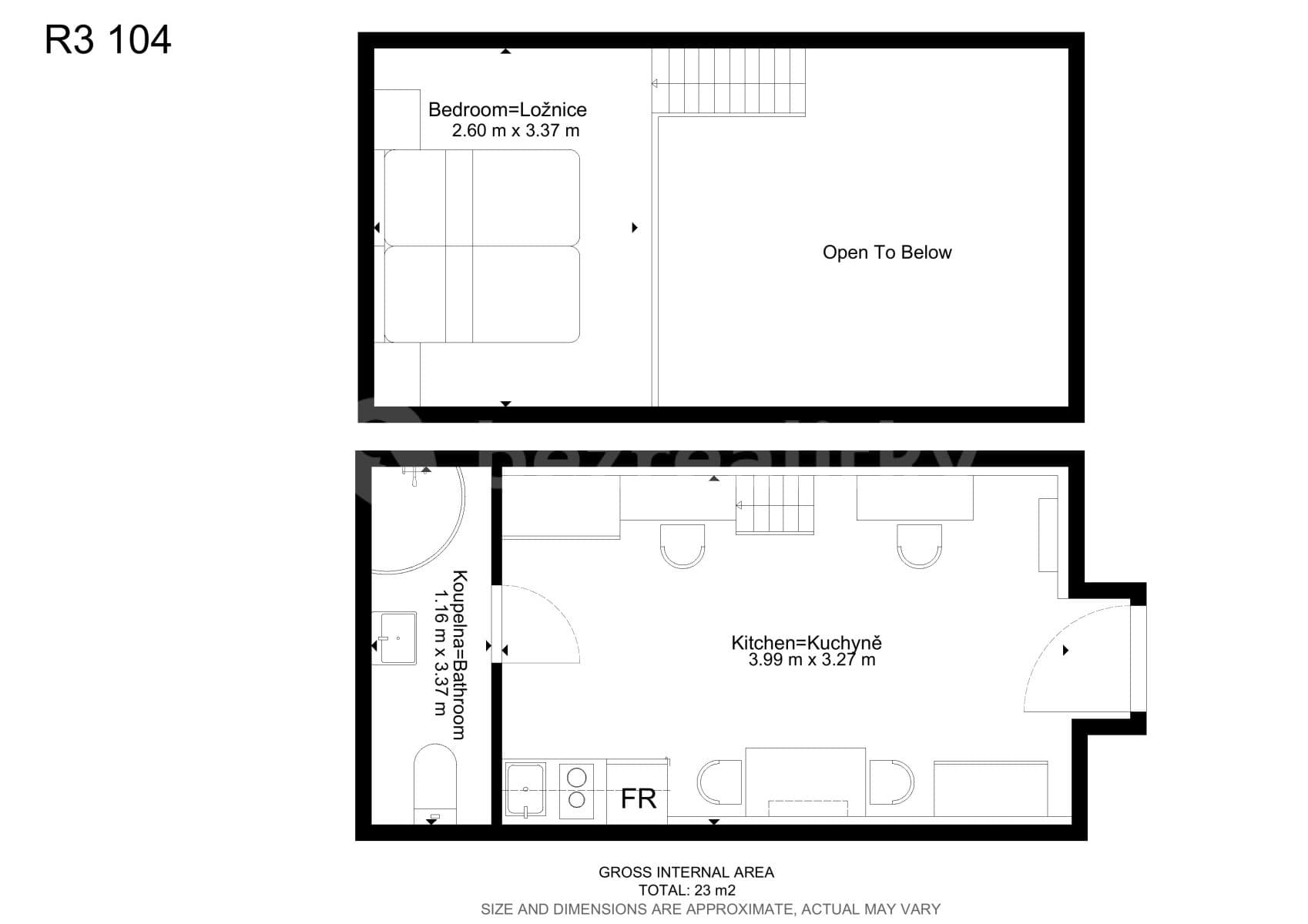
Prenájom bytu 1+kk • 20 m²Václavská, Staré Brno, Jihomoravský kraj
Václavská, Staré Brno, Jihomoravský krajMHD 2 minúty pešo • Vybavené • ParkovanieNabízíme k podnájmu jednotku R3.104 o celkové výměře 20,36 m2, která je k dispozici ihned. K dispozici je ve stejném komplexu několik jednotek ve velikosti 1+kk, 2+kk a 2+1 pro 2- 4 osoby od dřívějšího data.
Jedná se o podnájem kompletně vybavené jednotky o dispozici 1+kk v nově zrekonstruovaném domě. Součástí je plně zařízený kuchyňský kout včetně lednice, sklokeramické desky, mikrovlnné trouby, varné konvice, digestoře a dřezu. Jednotka je vybavena dvěma pracovními stoly se židlemi, jídelním stolem se židlemi, mezonetovým spaním a prostornou skříní. Koupelna nabízí sprchový kout, záchod a umyvadlo se zrcadlem. V jednotce je k dispozici internetové připojení a je možné sjednat parkovací kartu se slevou.
Cena 10 900 Kč + 2 000 Kč energie + 2 420 Kč služby + 25 000 Kč vratná kauce + jednorázová platba administrativní poplatek.
Jednotky se nachází v lukrativní oblasti v bezprostřední blízkosti centra Brna. Samotné centrum Brna je dostupné v pěší vzdálenosti. V těsné blízkosti se nachází jeden z největších dopravních uzlů v Brně – Mendlovo náměstí, které Vám zajistí bezproblémové spojení na brněnské univerzity. V okolí se nachází několik obchodů, restaurací, barů, posiloven a ostatních služeb, které Vám zpříjemní žití na tomto místě.
O aktuální dostupnosti a podmínkách Vás budeme rádi informovat.
Rádi se s Vámi setkáme na osobní prohlídce.
We offer for rent unit R3.104 with a total area of 20.36 m2, which is available from 1.8.2023. Several units in the size of 1+kk, 2+kk and 2+1 for 2-4 people are available in the same complex from an earlier date.
This is a rental of a fully equipped unit available 1+kk in a newly renovated building. It includes a fully equipped kitchenette including a fridge, glass ceramic hob, microwave oven, kettle, hood and sink. The unit is equipped with two work tables with chairs, a dining table with chairs, a bunk bed and a spacious closet. The bathroom offers a shower, a toilet and a sink with a mirror. In the building, you can use the common laundries, where there are always washing machines and dryers. Internet connection is available in the apartment unit. It is possible to arrange a parking card with a 50% discount for each apartment unit.
Price: CZK 10,900 + CZK 2,000 energy + CZK 1,210 utilities + CZK 25,000 refundable deposit + one-time payment of CZK 5,000 administrative fee.
The units are located in a lucrative area in the immediate vicinity of the center of Brno. The center of Brno itself is within walking distance. One of the largest transport hubs in Brno - Mendlovo náměstí - is located in the immediate vicinity, which will provide you with a problem-free connection to Brno's universities. In the vicinity there are several shops, restaurants, bars, gyms and other services that will make living in this place more pleasant.
We will be happy to inform you about the current availability and conditions.
We will be happy to meet you for a personal tour.
Parametre nehnuteľnosti
| Dostupné od | 27. 4. 2026 |
|---|---|
| Konštrukcia budovy | Tehla |
| Vybavené | Vybavené |
| Číslo inzerátu | 782962 |
| Umiestnenie | Tichá lokalita |
| Cena za jednotku | 795 CZK / m2 |
| Stav | Veľmi dobrý |
|---|---|
| Dispozícia | 1+kk |
| Poschodie | 1. poschodie z 3 |
| PENB | G - Mimoriadne nehospodárne |
| Úžitková plocha | 20 m² |
Čo táto nehnuteľnosť ponúka?
| Parkovanie |
| MHD 2 minúty pešo |
V okolí nehnuteľnosti nájdete
Stále hľadáte to pravé?
Nastavte si strážneho psa. Ponuky vybrané na mieru dostanete súhrnne 1× denne e-mailom. S Premium profilom máte po ruke rovno 5 strážcov a keď sa niečo objaví, informujú vás obratom.















