
Prenájom bytu 2+1 • 62 m² bez realitkyTeyschlova, Brno - Bystrc, Jihomoravský kraj
K dlouhodobému pronájmu nabízím zrekonstruovaný byt (rok 2015) o dispozici 2+1 v klidné lokalitě Brno-Bystrc na ulici Teyschlova.
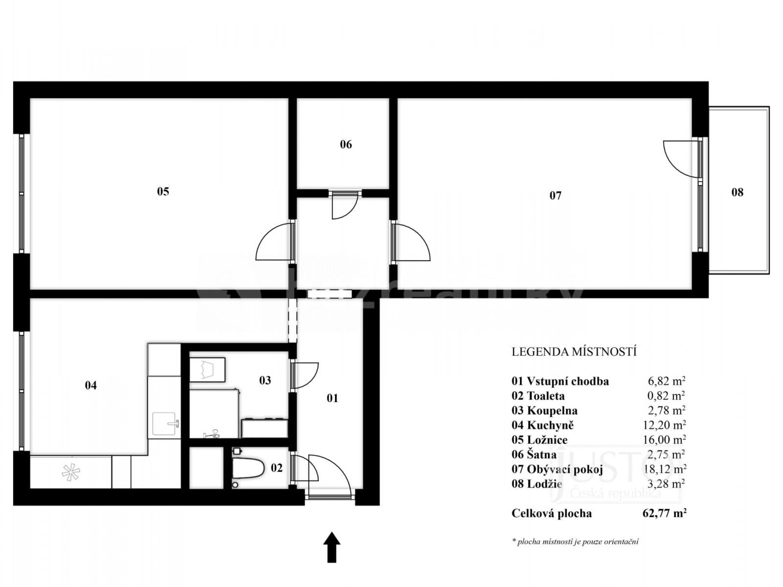
Byt s podlahovou plochou 62,77 m2 se nachází ve 4. patře panelového domu s výtahem. K bytu patří zasklený balkón o velikosti 3,28 m2 a také jedna prázdná místnost navíc (2,75 m2), která může posloužit například jako šatna.
Veškeré pokoje jsou neprůchozí. V příloze naleznete půdorys s detailními rozměry.
Kuchyň (12,2 m2) je vybavena vestavěnými spotřebiči jako je lednička, trouba s varnou deskou, digestoř, myčka a mikrovlnná trouba. Součástí kuchyně je jídelní stůl a židle. Obývací pokoj (18,12 m2) je zařízený sedačkou, konferenčním stolem a stolkem pod televizi. Z obývacího pokoje je vstup na zasklený balkón. V prostorné ložnici (16 m2) naleznete postel a skříň, v koupelně sprchový kout a pračku. WC je samostatně.
Autobusová zastávka se od domu nachází do 2 minut, tramvajová do 10 minut. Příjemnou procházkou lesem se na přehradu dostanete do půl hodiny. V blízkém okolí najdete supermarket Albert, mateřskou školu, pekárnu, pizzerii, kavárnu Objekt či bistro Bratrs. Přímo za domem je skvěle vybavené dětské hřiště.
Měsíční nájem činí 20 000,- Kč. Výše záloh za energie a služby pro 1 osobu je 4500,- Kč/měs.
Internet je od firmy O2 a stojí 400,- Kč/měs.
Jistota (vratná kauce) je 30 000,- Kč.
Preferuji nekuřáky bez domácích mazlíčků. Prohlídky dle domluvy.
Byt je volný od 1. března 2026.
Parametre nehnuteľnosti
| Dostupné od | 1. 3. 2026 |
|---|---|
| Konštrukcia budovy | Panel |
| Vybavené | Čiastočne |
| Číslo inzerátu | 760361 |
| Umiestnenie | Tichá lokalita |
| Cena za jednotku | 323 CZK / m2 |
| Stav | Veľmi dobrý |
|---|---|
| Dispozícia | 2+1 |
| Poschodie | 4. poschodie z 8 |
| PENB | G - Mimoriadne nehospodárne |
| Úžitková plocha | 62 m² |
Čo táto nehnuteľnosť ponúka?
| Balkón 3,28 m² | |
| MHD 4 minúty pešo |
| Výťah |
V okolí nehnuteľnosti nájdete
Stále hľadáte to pravé?
Nastavte si strážneho psa. Ponuky vybrané na mieru dostanete súhrnne 1× denne e-mailom. S Premium profilom máte po ruke rovno 5 strážcov a keď sa niečo objaví, informujú vás obratom.




















