
Prenájom bytu 1+kk • 23 m² bez realitkyNa Rokytce, Říčany - Říčany-Radošovice, Středočeský kraj
Na Rokytce, Říčany - Říčany-Radošovice, Středočeský krajMHD 3 minúty pešo • Čiastočne vybavené • ParkovanieDlouhodobý pronájem 1+kk bungalovu v Říčanech u Prahy – soukromí, zahrádka, výborná dostupnost do centra!
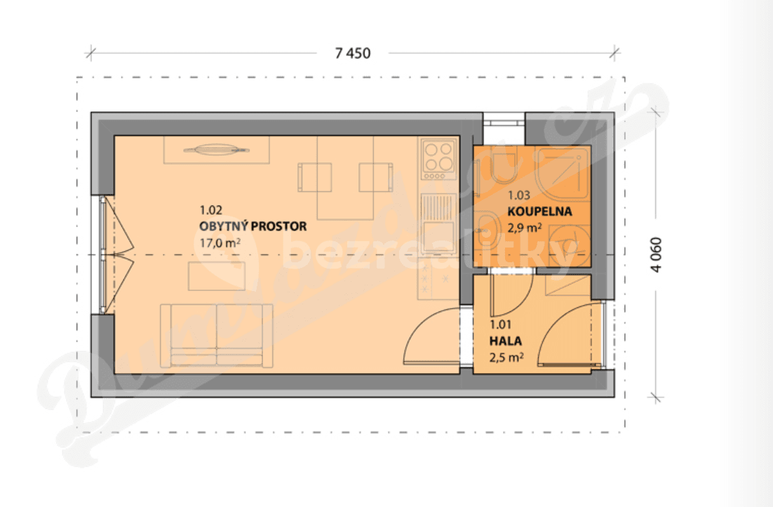
Nabízím k dlouhodobému pronájmu nový, energeticky úsporný bungalov (1+kk) o užitné ploše 23 m² (celková plocha 30 m²), ideálně pro jednotlivce nebo pár, kteří hledají klidné bydlení s perfektní dostupností do Prahy (MHD do centra za 25 minut).
🏡 Lokalita:
Nachází se ve staré zástavbě Říčan – klidná, rezidenční oblast s výbornou občanskou vybaveností v dosahu.
V dochozí vzdálenosti se nachází koupaliště a restaurace Jureček.
🔑 Dispozice a vybavení:
Vstupní hala
Obytný prostor s plně vybavenou kuchyňskou linkou (lednice, varná deska, mikrovlnná trouba, digestoř, LED podsvícení)
Koupelna se sprchovým koutem, toaletou, pračkou a skříňkou s umyvadlem
Vlastní vstup a naprosté soukromí – jednotka je stavebně oddělena od hlavního rodinného domu
🌿 Exteriér:
K dispozici soukromá zahrádka cca 100 m², oddělená od hlavního pozemku – ideální na relax nebo pěstování bylinek (aktuálně se v realizaci).
Vstup přes hliníkové bezpečnostní dveře
🔥 Technologie a úspory:
Nízkoenergetická dřevostavba (sendvičový systém)
Vytápění a chlazení pomocí tepelného čerpadla a split jednotky LG (topí i chladí) – velmi nízké provozní náklady
💡 Ideální pro ty, kdo hledají moderní, úsporné a bezstarostné bydlení – stačí se jen nastěhovat.
📅 K nastěhování v průběhu srpna .
🚭 Preferujeme nekuřáky, domácí mazlíčci dle domluvy.
📞 Pro více informací nebo domluvení prohlídky mě neváhejte kontaktovat.
Parametre nehnuteľnosti
| Vek | Do 10 rokov |
|---|---|
| Stav | Novostavba |
| Dispozícia | 1+kk |
| Poschodie | Prízemie |
| Vykurovanie | Ostatné |
| PENB | B - Veľmi úsporné |
| Umiestnenie | Tichá lokalita |
| Cena za jednotku | 870 CZK / m2 |
| Dostupné od | 31. 8. 2025 |
|---|---|
| Konštrukcia budovy | Zmiešaná |
| Vybavené | Čiastočne |
| Prevedenie | Štandardné |
| Číslo inzerátu | 758760 |
| Rekonštrukcia | Kompletné |
| Úžitková plocha | 23 m² |
Čo táto nehnuteľnosť ponúka?
| Predzáhradka 100 m² | |
| MHD 3 minúty pešo |
| Parkovanie |
V okolí nehnuteľnosti nájdete



Prenájom bytuNárodních hrdinů, Praha - Dolní Počernice- 1+kk
- 31 m²
19 900 CZK + 4 100 CZK21 000 CZK
Ušetríte 1 100 CZK

Stále hľadáte to pravé?
Nastavte si strážneho psa. Ponuky vybrané na mieru dostanete súhrnne 1× denne e-mailom. S Premium profilom máte po ruke rovno 5 strážcov a keď sa niečo objaví, informujú vás obratom.










