
Prenájom bytu 1+1 • 53 m² bez realitkyZávodského, Brno - Židenice, Jihomoravský kraj
Nabízím k podnájmu částečně zařízený byt 1+1 v přízemí rodinného domu v Brně - Juliánově. Byt bude k nastěhování v průběhu března 2026. Byt je v moderním stylu po celkové rekonstrukci v klidné jednosměrné ulici. Nachází se jen pár kroků od lesoparku Bílá hora. MHD tramvaj č 8. je 5 min od domu, autobus ještě blíže. V blízkosti Tesco Supermarket a veškerá občanská vybavenost.
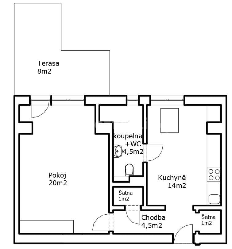
Plocha bytu je 45m2 plus terasa 8m2. Pokoj je o rozloze 20m2, Kuchyně 14m2, koupelna s WC 4,5m2. Dvě šatny mají po 1m2 a v jedné je umístěna pračka se sušičkou. Terasa je orientována do zahrady, kterou je možno využívat spolu s ostatními obyvateli domu. Byt je vybaven plovoucími podlahami a plastovými okny. V kuchyni je linka vybavená dřezem, indukční varnou deskou, lednicí s mrazákem, mikrovlnnou troubou a horkovzdušnou troubou. Dále je zde spíž na potraviny a jídelní stůl se židlemi. Pokoj je vybaven postelí o velikosti 140x200cm a vestavnou skříní. Koupelna s WC a sprchovým koutem.
Jako zdroj teplé vody je vlastní el. bojler o velikosti 100l. Vytápění je z centrálního kotle. Otopná tělesa jsou vybavena elektronickými termostatickými hlavicemi pro nastavení časových zón vytápění. V ceně nájmu je připojení na internet ( Wifi, nebo kabel). Možnost zavedení UPC kabelové televize. Parkování na ulici před domem - modrá zóna. K nájmu budou podle spotřeby účtovány platby za energie. Požaduji vratnou zálohu ve výši 2 měsíčních nájmů.
Byt je vhodný pro 2 osoby. Uvítáme nejraději nekuřáky bez zvířat, kteří hledají bydlení v klidném domě. Případné další vybavení bytu možné po dohodě. Byt je k dlouhodobému pronájmu se smlouvou na jeden rok s možností opakovaně prodlužovat. V případě zájmu, prosím, do kontaktního formuláře uveďte základní informace o nájemnících.
I am offering for rent a partially furnished 1 + 1 apartment on the first floor of a family house in Brno - Juliánov. The apartment is ready to move in on 1. 2. 2022. The apartment is in a modern style after a complete reconstruction in a quiet one-way street. It is located just a few steps from the Bílá hora park. Public transport tram No. 8 is 5 min from the house, bus even closer. Close to Tesco Supermarket and all amenities.
The area of the apartment is 45m2 plus a terrace of 8m2. The room has an area of 20 square meters, kitchen 14 square meters, bathroom with toilet 4.5 square meters. Two dressing rooms are 1 m2 each and one has a washing machine and dryer. The terrace is oriented to the garden, which can be used together with other residents of the house. The apartment is equipped with floating floors and plastic windows. The kitchen is equipped with a sink, induction hob, refrigerator with freezer, microwave and convection oven. There is also a pantry for dining and a dining table with chairs. The room is equipped with a bed measuring 140x200cm and a built-in wardrobe. Bathroom with toilet and shower.
As a source of hot water is its own el. boiler with a size of 100l. Heating is from the central boiler. The radiators are equipped with electronic thermostatic heads for setting the heating time zones. The rental price includes internet connection (Wifi or cable). Possibility of introducing UPC cable television. Parking on the street in front of the house. Energy payments will be charged for rent according to consumption. I require a refundable deposit of 1 to 2 monthly rents.
The apartment is suitable for up to 3 people. We prefer non-smokers without animals who are looking for housing in a quiet house. Any other equipment of the apartment possible by agreement. The apartment is for long-term rent with a contract for one year with the possibility of repeated extension. If you are interested, please provide basic information about tenants in the contact form.
Parametre nehnuteľnosti
| Vek | Do 10 rokov |
|---|---|
| Stav | Veľmi dobrý |
| Dispozícia | 1+1 |
| Poschodie | 1. poschodie |
| Vykurovanie | Ústredné |
| Vlastníctvo | Osobné |
| Rekonštrukcia | Interiér |
| Úžitková plocha | 53 m² |
| Dostupné od | 1. 3. 2026 |
|---|---|
| Konštrukcia budovy | Zmiešaná |
| Vybavené | Čiastočne |
| Prevedenie | Štandardné |
| Číslo inzerátu | 700317 |
| PENB | G - Mimoriadne nehospodárne |
| Umiestnenie | Tichá lokalita |
| Cena za jednotku | 321 CZK / m2 |
Čo táto nehnuteľnosť ponúka?
| Predzáhradka 30 m² | |
| Terasa 8 m² |
| MHD 2 minúty pešo |
V okolí nehnuteľnosti nájdete

Prenájom bytuSirotkova, Brno - Žabovřesky, Jihomoravský kraj- 2+kk
- 34 m²
16 900 CZK + 3 600 CZK18 300 CZK
Ušetríte 1 400 CZK


Prenájom bytuV Rejích, Brno - Chrlice, Jihomoravský kraj- 2+kk
- 60 m²
18 000 CZK + 4 000 CZK20 000 CZK
Ušetríte 2 000 CZK
Stále hľadáte to pravé?
Nastavte si strážneho psa. Ponuky vybrané na mieru dostanete súhrnne 1× denne e-mailom. S Premium profilom máte po ruke rovno 5 strážcov a keď sa niečo objaví, informujú vás obratom.













