
Prenájom bytu 3+kk • 79 m² bez realitkyNa Fialce, Říčany - Říčany u Prahy, Středočeský kraj
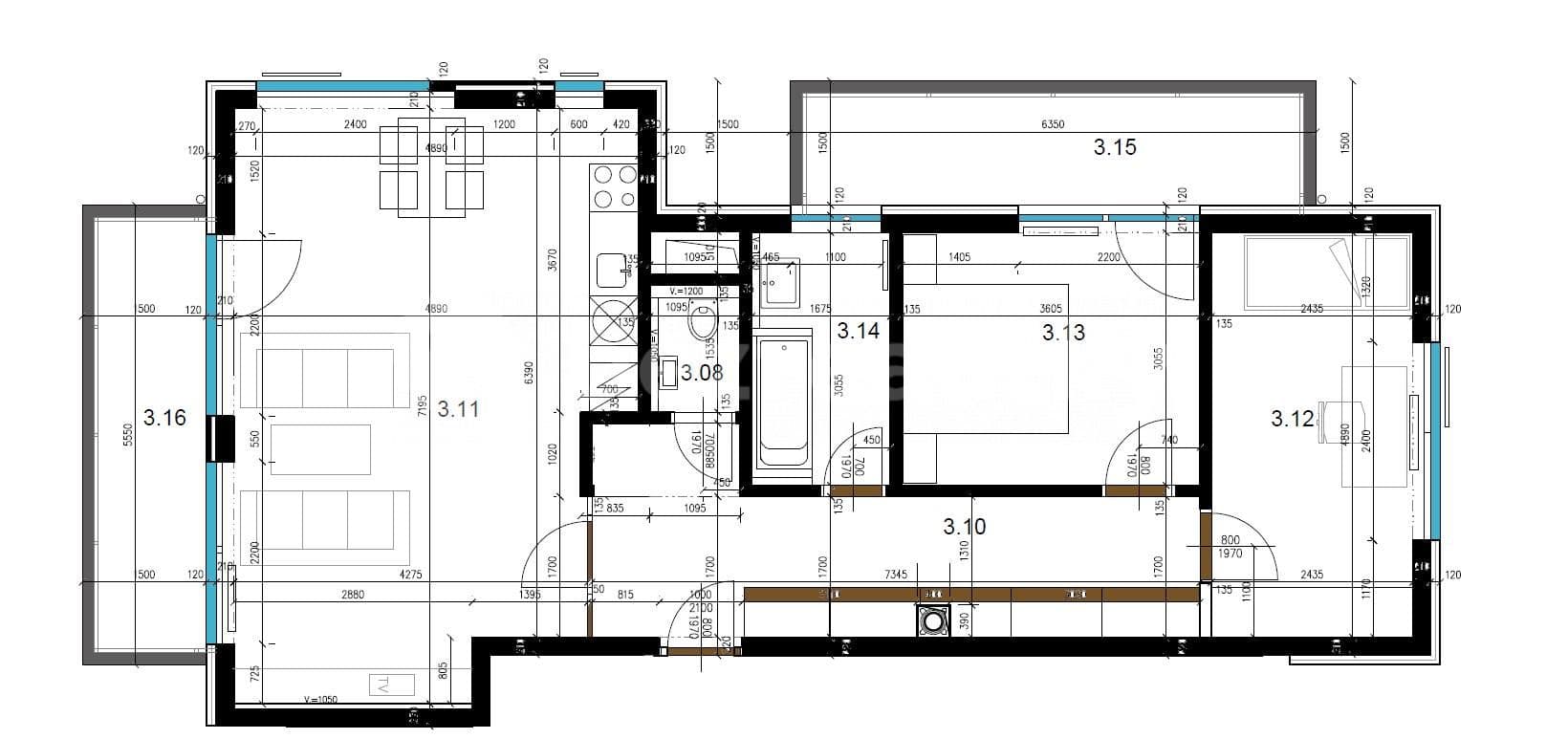
Na Fialce, Říčany - Říčany u Prahy, Středočeský krajMHD 1 minúta pešo • Čiastočne vybavené • Výťah • Parkovanie • Balkón 18 m² • Pivnica 3 m²Světlý byt 3+kk, 79 m2 + 2 balkony 18 m2, v menším bytovém domě z roku 2015 v Říčanech u Prahy, lokalita Na Fialce. Byt pronajímáme nevybavený, s kuchyní a velkou šatní skříní na chodbě. Všechno na dosah ruky, plná vybavenost, kino, bazén, školy i školky, dvě minuty na vlak (za 25 minut na hlavním nádraží).
- 2 balkony/terasy (jeden s výhledem do zeleně)
- vyhrazené parkovací stání před domem
- topení plynem, chytré hlavice Netatmo (topení si pustíte na dálku přes mobil, každou místnost můžete temperovat individuálně)
- okna na východ, jih a západ a tedy spousta světla + instalovány fólie se zvýšenou tepelnou odrazivostí ke zlepšení tepelného komfortu v létě
- dlouhá chodba s obrovskou vestavěnou skříní
- sklepní kóje (čistá, suchá)
Volný cca od poloviny ledna.
Nájem 24 000 Kč + zúčtovatelné poplatky včetně plynu a vody (v tuto chvíli 3000 za teplo + 1900 za vodu pro 3člennou rodinu). Elektřinu si platí nájemce.
Vratná kauce 2 měsíční nájmy.
Parametre nehnuteľnosti
| Vek | Do 10 rokov |
|---|---|
| Stav | Veľmi dobrý |
| Dispozícia | 3+kk |
| Poschodie | 3. poschodie |
| Vykurovanie | Plynové |
| Vlastníctvo | Osobné |
| Umiestnenie | Tichá časť |
| Cena za jednotku | 304 CZK / m2 |
| Dostupné od | 16. 1. 2026 |
|---|---|
| Výstavba budov | Zmiešaná |
| Vybavené | Čiastočne |
| Prevedenie | Štandardné |
| Číslo inzerátu | 669261 |
| PENB | C - Hospodárne |
| Úžitková plocha | 79 m² |
Čo táto nehnuteľnosť ponúka?
| Balkón 18 m² | |
| Pivnica 3 m² | |
| Parkovanie |
| Bezbariérový prístup | |
| Výťah | |
| MHD 1 minúta pešo |
V okolí nehnuteľnosti nájdete


Prenájom bytuGenerála Janouška, Praha - Černý Most- 3+1
- 80 m²
26 000 CZK + 7 139 CZK28 000 CZK
Ušetríte 2 000 CZK


Stále hľadáte to pravé?
Nastavte si strážneho psa. Ponuky vybrané na mieru dostanete súhrnne 1× denne e-mailom. S Premium profilom máte po ruke rovno 5 strážcov a keď sa niečo objaví, informujú vás obratom.













