
Prenájom kancelárie • 132 m² bez realitkyKrakovská, Praha - Nové Město
Krakovská, Praha - Nové MěstoMHD 2 minúty pešo • ParkovanieKANCELÁŘE K PRONÁJMU - 132 m2
!! NEPLATÍTE PROVIZI !!
Firma Real Top s.r.o., která je přímým majitelem a správcem objektu, nabízí k pronájmu kancelářské prostory v administrativní budově BUSINESS RESIDENCE v Krakovské ulici.
Objekt se nachází v blízkosti Václavského náměstí, 300 m od stanice metra Muzeum, I. P. Pavlova. K dispozici je 24 hodinová ostraha, výtah, možnost parkování v zakladači.
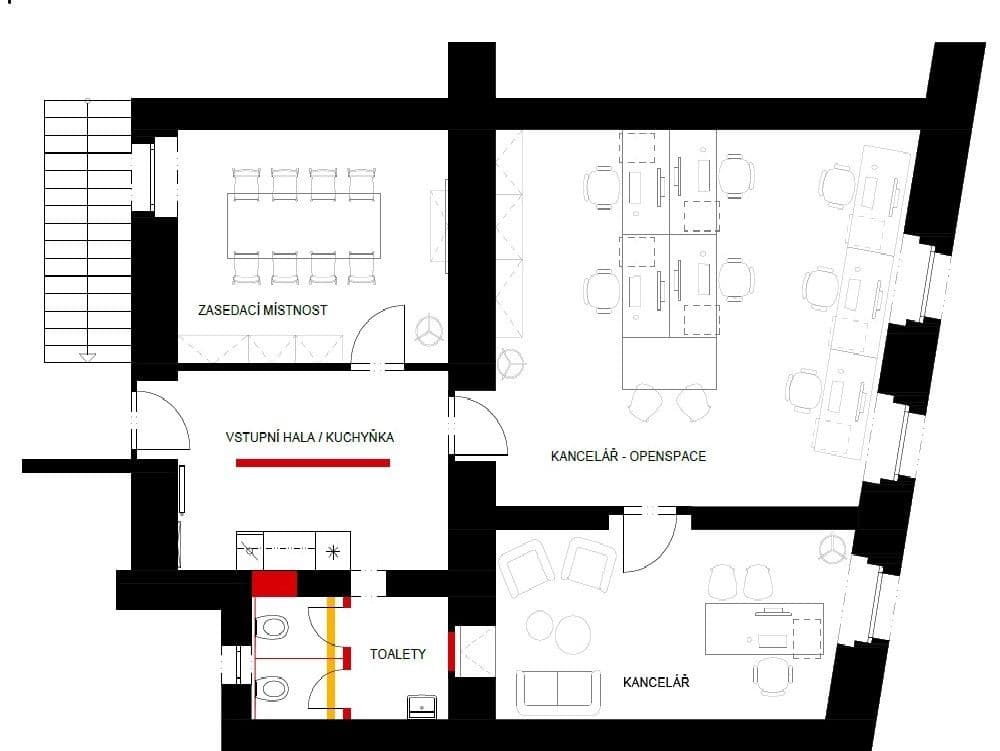
Nabízíme k pronájmu jednotku po celkové rekonstrukci o výměře 132m2 (vstupní hala s přípojkami na kuchyňku, 3 kanceláře, sociální zázemí) umístěná v 1NP.
Cena nájmu 295,-Kč/m2, provozní náklady 102 Kč/m2, topné náklady 36 Kč/m2.
Elektrická energie hrazena PŘÍMO DLE SPOTŘEBY NÁJEMCE (měřiče)
k nastěhování IHNED
Parametre nehnuteľnosti
| Dostupné od | 1. 9. 2025 |
|---|---|
| Výstavba budov | Tehla |
| Číslo inzerátu | 667332 |
| Umiestnenie | Tichá časť |
| Cena za jednotku | 295 CZK / m2 |
| Stav | Dobrý |
|---|---|
| Poschodie | 1. poschodie z 6 |
| PENB | E - Nehospodárne |
| Plocha kancelárie | 132 m² |
Čo táto nehnuteľnosť ponúka?
| Parkovanie |
| MHD 2 minúty pešo |
V okolí nehnuteľnosti nájdete
Stále hľadáte to pravé?
Nastavte si strážneho psa. Ponuky vybrané na mieru dostanete súhrnne 1× denne e-mailom. S Premium profilom máte po ruke rovno 5 strážcov a keď sa niečo objaví, informujú vás obratom.
















