
Prenájom bytu 3+kk • 143 m² bez realitky, Bádensko-Wurttembersko
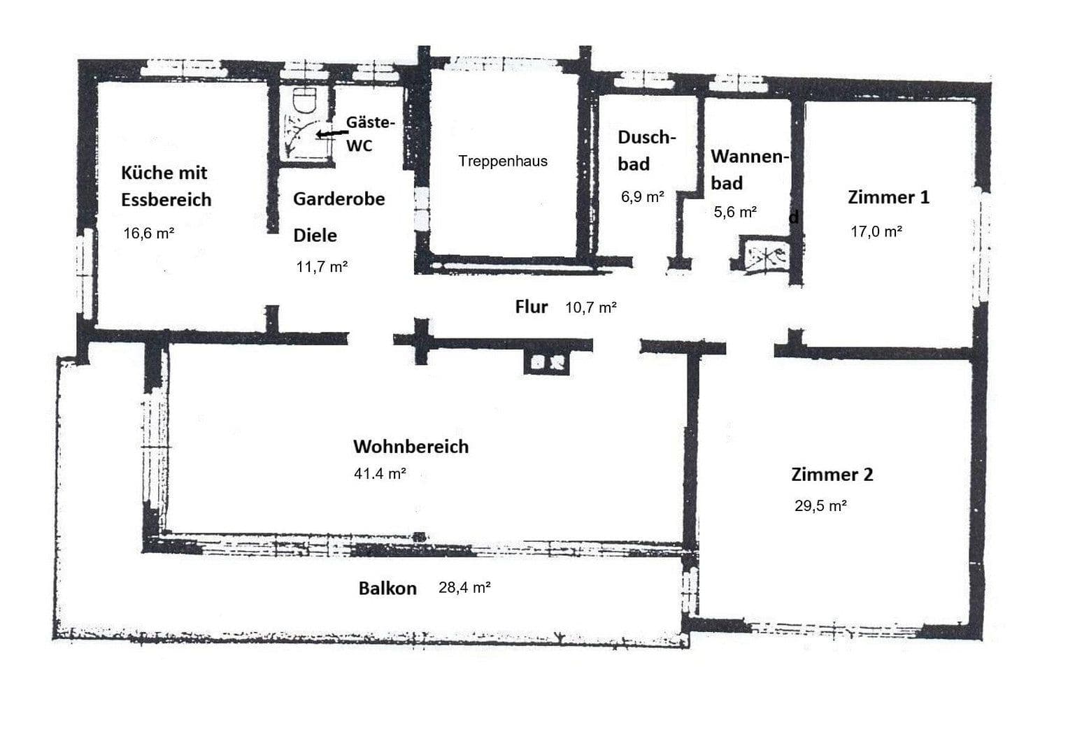
, Bádensko-WurttemberskoMHD 1 minúta pešo • GarážBudova sa nachádza v centrálnej, ale zároveň pokojnej časti Höchenschwandu a disponuje veľkým balkónom s alpskou panorámou.
Celý byt bol kompletne zrekonštruovaný a je už od teraz pripravený na prvé osídlenie.
Byt zaujme veľkorysým, svetlým a premysleným rozdelením priestorov, ktoré sa výborne hodí pre malú rodinu alebo pár, ktorý potrebuje home office.
Vďaka bezbariérovému sprchovému kúpeľni je byt vhodný aj pre ľudí so špeciálnymi potrebami.
Kuchyňa môže byť individuálne navrhnutá a vybavená podľa vlastných predstáv. Okrem toho sú k bytu priradené aj veľká samostatná pivnica a vlastná garáž.
Pri rekonštrukcii bola zabezpečená komplexná izolácia, ktorá spĺňa dnešné energetické štandardy. Nové okná významne prispievajú k zníženiu nákladov na energiu.
Byt sa nachádza v centrálnom mieste Höchenschwandu. Banka, lekár, možnosti nakupovania, základná a stredná škola, ako aj verejná doprava sú dostupné pešo za niekoľko minút.
Parametre nehnuteľnosti
| Vek | Nad 50 rokov |
|---|---|
| Dispozícia | 3+kk |
| Číslo inzerátu | 1018205 |
| Úžitková plocha | 143 m² |
| Stav | Po rekonštrukcii |
|---|---|
| Poschodie | 1. poschodie z 2 |
| PENB | D - Menej hospodárne |
| Cena za jednotku | 8,39 € / m2 |
Čo táto nehnuteľnosť ponúka?
| Balkón | |
| Pivnica | |
| MHD 1 minúta pešo |
| Bezbariérový prístup | |
| Garáž |
V okolí nehnuteľnosti nájdete
Stále hľadáte to pravé?
Nastavte si strážneho psa. Ponuky vybrané na mieru dostanete súhrnne 1× denne e-mailom. S Premium profilom máte po ruke rovno 5 strážcov a keď sa niečo objaví, informujú vás obratom.










