
Prenájom bytu 3+1 • 72 m² bez realitkyLoppengasse 21 A, , Bádensko-Wurttembersko
Loppengasse 21 A, , Bádensko-WurttemberskoMHD 3 minúty pešo • ParkovaniePrvé bývanie po rekonštrukcii od 01.06.26: V pokojnej lokalite v centre Nusslochu sú k prenájmu dva veľmi pekné, kompletne zrekonštruované byty s obytnou plochou 72 resp. 32 štvorcových metrov, bez sprostredkovateľského poplatku. Váš nový domov má pekný, tichý balkón a je vybavený kvalitnými, pre bývanie prospešnými materiálmi. Vybavenie je vysoko kvalitné – s porcelánovými dlaždicami, oknami z masívneho dreva (čiastočne nové) a parketami.
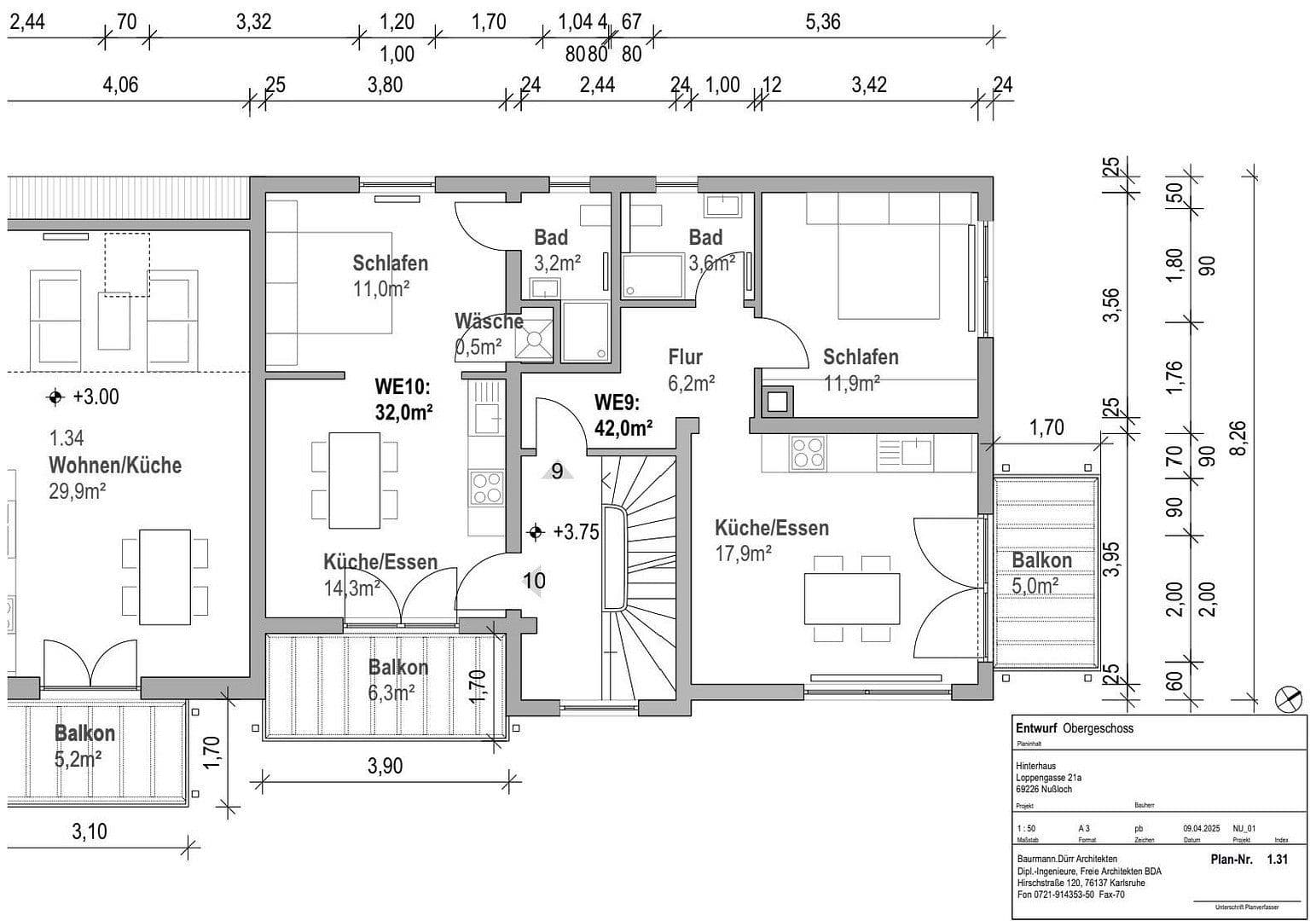
Na upozornenie: Fotografie pochádzajú z už dokončených bytov v prednej časti objektu. Oba tu ponúkané byty sa momentálne rekonštruujú.
Ako nájomcovia sú akceptované výlučne osoby s pevnými zamestnaneckými zmluvami na plný úväzok alebo osoby s ručením. Kaution (zábezpeka) predstavuje 3 mesiace nájomného (bez zahrnutia vykurovacích nákladov).
Zmluvy na elektrinu a internet budú nájomcovia uzatvárať sami, nakoľko tieto náklady nie sú zahrnuté do preddoplatku za prevádzkové náklady.
Prehľad dostupných bytov a nájomné bez vykurovacích nákladov + preddoplatok na prevádzkové náklady + elektrina + internet:
Byty v zadnej časti budovy, ešte nedokončené po rekonštrukcii, dostupné od 01.06.2026:
- Byt č. 8 v prízemí s približne 72 m² a balkónom, nájomné 1030 € bez vykurovacích nákladov, elektriny a internetu. Predpokladaný termín k dispozícii od 01.06.26. Možnosť parkovacieho miesta pre automobil za 70 € mesačne.
- Byt č. 10 v prvom poschodí s približne 32 m² a balkónom, nájomné 530 € bez vykurovacích nákladov, elektriny a internetu. Predpokladaný termín k dispozícii od 01.06.26. Možnosť parkovacieho miesta pre automobil za 70 € mesačne.
Budova sa nachádza v Nusslochu v blízkosti centra. Obchody, úrady, lekári, pohotovostná starostlivosť aj školy sú v bezprostrednom okolí.
Vybavenie je vysoko kvalitné – s porcelánovými dlaždicami, oknami z masívneho dreva (čiastočne nové) a parketami. Steny sú hladko omietnuté a natreté na bielo.
Parametre nehnuteľnosti
| Vek | Nad 50 rokov |
|---|---|
| Dispozícia | 3+1 |
| PENB | G - Mimoriadne nehospodárne |
| Cena za jednotku | 14,31 € / m2 |
| Stav | Po rekonštrukcii |
|---|---|
| Číslo inzerátu | 1017508 |
| Úžitková plocha | 72 m² |
Čo táto nehnuteľnosť ponúka?
| Balkón | |
| MHD 3 minúty pešo |
| Parkovanie |
V okolí nehnuteľnosti nájdete
Stále hľadáte to pravé?
Nastavte si strážneho psa. Ponuky vybrané na mieru dostanete súhrnne 1× denne e-mailom. S Premium profilom máte po ruke rovno 5 strážcov a keď sa niečo objaví, informujú vás obratom.














