Prenájom bytu 5+1 • 160 m² bez realitky, Šlezvicko-Holštajnsko
, Šlezvicko-HolštajnskoMHD 2 minúty pešo • ParkovanieNAD STRECHAMI LENSAHN – KRÁSNY MAISONNETTOVÝ BYT V ŠTÝLOVEJ STARŠEJ BÚDE
Tento výnimočný maisonnettový byt spája historický šarm s moderným komfortom bývania a nachádza sa priamo v srdci Lensahnu. V bývalej tlačiarni z roku 1924, ktorá bola v roku 2024 komplexne a kvalitne zrekonštruovaná, vznikli dve exkluzívne bývacie jednotky – tento byt ohromuje svojou priestrannosťou, svetlom a jedinečnými detailmi.
So zhruba 160 m² obytnou plochou, rozloženou na dve úrovne, a samostatným vstupom do bytu ponúka pocit bývania takmer ako vo vlastnom dome.
BYDLENIE A ŽIVOT NA 2 ÚROVNIACH
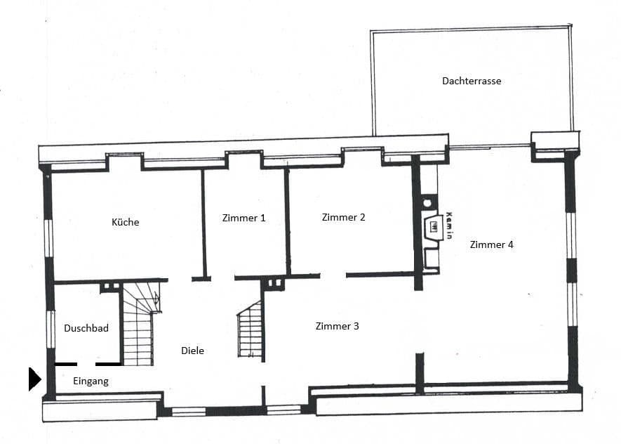
V 1. nadzemnom podlaží na vás čaká moderná a priestranná bytová kuchyňa s veľkým priestorom pre spoločné varenie a vychutnávanie, nové sprchovacie kúpeľne s oknom, tichá spálňa, dve priestranné, prepojené obývacie izby s krbom, ktoré ohromujú otvorenosťou a svetlosťou, a priamy prístup na slnečnú strešnú terasu, ideálnu pre oddychové chvíle nad strechami očarujúceho mestečka Lensahn.
Cez schodisko v chodbe sa dostanete na podkrovie, kde sa nachádza pôvabná biela kúpeľňa so dekoratívnymi oblúkovými oknami, dve samostatné izby a izba s prechodom, ideálna ako šatňa, čítačka alebo herná miestnosť.
PODMIENKY PRENÁJMU
Čisté nájomné: 1.750 €
Poplatky (vrátane nákladov na kúrenie): 350 €
Celkové nájomné: 2.100 €
Parkovacie miesto zahrnuté
Kaució: 5.250 €
Tento výnimočný maisonnettový byt zaujme svojím jedinečným charakterom staršej budovy, priestranným dispozíciám a vybavením, ktoré nezanecháva nič na želanie: Domov pre ľudí, ktorí hľadajú niečo výnimočné!
Byt sa nachádza v atraktívnej, centrálnej lokalite v Lensahne. Obchody pre bežnú potrebu, lekári, školy a materské školy sú v blízkosti a sú ľahko dostupné pešo. Lensahn zaujme svojou dobrou infraštruktúrou a praktickým napojením na verejnú dopravu a Bäderstraße.
Zvlášť treba vyzdvihnúť blízkosť Baltského mora – obľúbené pláže Lübeckej zátoky sú dosiahnuteľné len za pár minút jazdy a lákajú na prechádzky, výlety a oddychové chvíle pri mori. Kombinácia centrálneho bývania a blízkosti pobrežia robí túto lokalitu mimoriadne atraktívnou.
HIGHLIGHTS
- cca 160 m² obytná plocha na dvoch úrovniach (maisonnettový byt)
- Samostatný vstup do bytu pre vysokú mieru súkromia
- Štýlovo zrekonštruovaná staršia budova (bývalá tlačiareň, rok výstavby 1924)
- Priestranná bytová kuchyňa s moderným ambiansom
- Dve veľké, prepojené obývacie izby s krbom
- Slnečná strešná terasa
- Nová sprchovacia miestnosť s oknom
- Pôvabná biela kúpeľňa na podkroví s dekoratívnymi oblúkovými oknami
- Niekoľko flexibilne využiteľných izieb – ideálne pre rodinu, hostí alebo domácu kanceláriu
- Dizajnové vinylové podlahy v teplej drevenej optike (ako nové)
- Opravené originálne drevené dvere so šarmom staršej budovy
- Svetlom zaplavené izby s príjemnou atmosférou
- Parkovacie miesto zahrnuté (v cene nájmu)
- Centrálna poloha v Lensahne, blízkosť Baltského mora
Parametre nehnuteľnosti
| Vek | Nad 50 rokov |
|---|---|
| Dispozícia | 5+1 |
| Číslo inzerátu | 1017310 |
| Úžitková plocha | 160 m² |
| Stav | Veľmi dobrý |
|---|---|
| Poschodie | 1. poschodie z 2 |
| PENB | B - Veľmi úsporné |
| Cena za jednotku | 10,94 € / m2 |
Čo táto nehnuteľnosť ponúka?
| Parkovanie |
| MHD 2 minúty pešo |
V okolí nehnuteľnosti nájdete
Stále hľadáte to pravé?
Nastavte si strážneho psa. Ponuky vybrané na mieru dostanete súhrnne 1× denne e-mailom. S Premium profilom máte po ruke rovno 5 strážcov a keď sa niečo objaví, informujú vás obratom.









