Prenájom bytu 2+1 • 74 m² bez realitkyBoschstraße 3 Heldenstein Bayern 84431
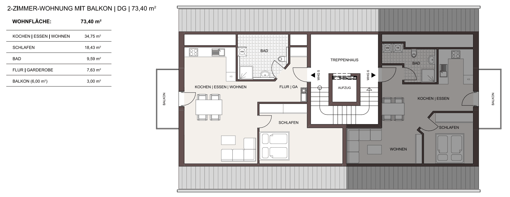
Boschstraße 3 Heldenstein Bayern 84431MHD 9minút pešo • Výťah • ParkovanieOd 01.08.2026 sa môžete nastať do tohto nádherného bytu v podkroví v Heldensteine, ktorý zaujme elegantným interiérovým vybavením. Dom sa nachádza na absolútnom okraji so vzrušujúcim výhľadom na prírodu. Dve príjemné izby si môžete zariadiť podľa vlastného vkusu. Byt je bezbariérový a je vybavený aj výťahom, ktorý vás dovezie z pivnice až do podkrovia. Mimoriadne stojí za vyzdvihnutie úžasný balkón, kde si môžete výborne oddýchnuť od každodenného zhonu a vychutnať si nádherný výhľad do prírody. Ku bytu patria dve parkovacie miesta pre vaše auto, čo vám zaručuje pohodlné parkovanie bez únavného hľadania. K dispozícii máte aj pivničný priestor. Veľmi dobrý energetický preukaz a kúrenie na pelety zabezpečujú dlhodobo nízke náklady na vykurovanie.
Heldenstein je perspektívna obec v okrese Mühldorf, ktorá veľmi profitovala z vidieckeho, idylického prostredia, ako aj z priameho prístupu na diaľnicu A94 a krátkej cesty do Ampfingu, kde sa nachádza železničné spojenie do Mníchova. Vďaka tomu sa usadzuje mnoho mladých rodín, ktoré sa autom čoskoro dostanú do Mníchova, ale predsa si chcú vychutnať vidiecke, pokojné prostredie. V dôsledku prílivu nových obyvateľov a vďaka veľmi dobrej infraštruktúre sa v Heldensteine vytvárajú nové podniky a možnosti nákupu. Napríklad nedávno bola postavená nová pobočka Edeka, ktorá je od objektu vzdialená len niekoľko minút chôdze. Vďaka blízkosti a optimálnemu spojeniu do Ampfingu, Waldkraibury a Mühldorfu máte naozaj všetko, čo potrebujete, v bezprostrednej blízkosti.
Heldenstein je perspektívna obec v okrese Mühldorf, ktorá veľmi profitovala z vidieckeho, idylického prostredia, ako aj z priameho prístupu na diaľnicu A94 a krátkej cesty do Ampfingu, kde sa nachádza železničné spojenie do Mníchova. Vďaka tomu sa usadzuje mnoho mladých rodín, ktoré sa autom čoskoro dostanú do Mníchova, ale aj napriek tomu si želajú vychutnať vidiecke, pokojné prostredie. V dôsledku prílevu nových obyvateľov a veľmi dobrej infraštruktúry sa v Heldensteine vytvárajú nové podniky a možnosti nákupu. Napríklad nedávno bola otvorená nová pobočka Edeka, ktorá je len pár minút pešo od objektu. Vďaka blízkosti a optimálnemu spojeniu do Ampfingu, Waldkraibury a Mühldorfu máte naozaj všetko, čo potrebujete, v blízkosti.
Infraštruktúra (v okruhu 5 km):
• Liekáreň, diskont potravín, všeobecný lekár, materská škola, základná škola, stredná škola, reálna škola, gymnázium, verejná doprava
• KfW55 štandard
• Výťah z pivnice až do podkrovia
• Bezbariérový prístup
• Kvalitná vinylová podlaha v úžasnej dubovej optike
• Moderné obklady v kúpeľni
• Dve parkovacie miesta pre vaše autá
• Nádherný balkón s úžasným výhľadom do prírody
• Centrálny peletový kotol s veľmi dobrým energetickým preukazom, ktorý udržiava prevádzkové náklady na nízkej úrovni
• Pripojenie pre práčku v kúpeľni
• Automatické vetranie miestností
Parametre nehnuteľnosti
| Vek | Nad 50 rokov |
|---|---|
| Stav | Veľmi dobrý |
| Poschodie | 2. poschodie z 2 |
| PENB | A - Mimoriadne úsporné |
| Cena za jednotku | 12,84 € / m2 |
| Dostupné od | 1. 8. 2026 |
|---|---|
| Dispozícia | 2+1 |
| Číslo inzerátu | 1017136 |
| Úžitková plocha | 74 m² |
Čo táto nehnuteľnosť ponúka?
| Balkón | |
| Pivnica | |
| Parkovanie |
| Bezbariérový prístup | |
| Výťah | |
| MHD 9 minút pešo |
V okolí nehnuteľnosti nájdete
Stále hľadáte to pravé?
Nastavte si strážneho psa. Ponuky vybrané na mieru dostanete súhrnne 1× denne e-mailom. S Premium profilom máte po ruke rovno 5 strážcov a keď sa niečo objaví, informujú vás obratom.






















