Predaj bytu 4+kk • 171 m² bez realitkyMünchen Schwabing Bayern 80796
• Penthouse bývanie na úplne inej úrovni.
• Jedinečné vo všetkých ohľadoch.
• Miesto nad mestom – na oblohe nad Mníchovom
Penthouse takejto kategórie je v Mníchove absolútnou výnimkou. Vo výške cez 40 metrov sa otvára životný pocit, ktorý je ťažko porovnateľný aj v prémiovom segmente: nekonečná rozsiahlosť, mimoriadna pohoda, absolútna súkromnosť a ohromujúce panoramatické výhľady cez mesto až k alpskému pásmu. Kto sem príde, okamžite pocíti, že toto nie je obyčajná nehnuteľnosť, ale domov na úplne inej úrovni.
Nachádza sa v architektonickom solitériu CUBELLO od prof. Otto Steidle, toto penthouse spája ikonickú architektúru s polohou, ktorá v Mníchove patrí k vzácnostiam. V srdci Schwabingu, obklopené parkmi a zelenými plochami, medzi Olympijským parkom a Hohenzollernplatz, zažijete mestský život na úplne novej úrovni – a zároveň pokoj, ktorý by ste neočakávali. Výnimočná výška a doprava upokojené okolie dávajú strešnej terase takmer bezváhovú atmosféru s pocitom rozsiahlosti a súkromia v novej definícii – miesto ústupu nad strechami Mníchova.
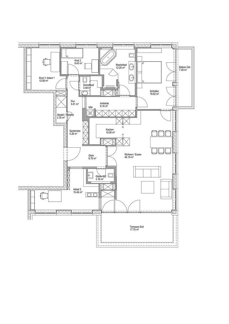
Na približne 170 m² obytného priestoru sa nachádza 4,5 izieb s otvoreným obývacím/jedálenským priestorom, štědrou okennou výlohou, pôsobivými výškami a vysoko kvalitnou interiérovou architektúrou. Viac ako šesť metrov široká panoramatická sklenená fasáda robí z obývacej časti každodenný zážitok. Z obývačky a južnej terasy sa otvára ten ikonický pohľad na Mníchov, ktorý sa objavuje na celosvetových reklamných kampaniach, pohľadniciach a imidžových materiáloch mesta – s Frauenkirche, siluetou starého mesta a alpským pozadím, akoby išlo o dokonale inscenované reklamné dielo.
Ráno môžete zo spálne so strešnou terasou nad mestom zažiť východ slnka, cez deň bývať alebo pracovať v svetlom naplnenom prostredí a večer relaxovať na južnej strešnej terase pri západe slnka – toto penthouse premieňa každodennosť na kvalitu života. Pocit, že ste nad všetkým, a zároveň priamo v srdci diania, je výnimočný a v mníchovskej novej výstavbe takmer neexistuje.
Priestranné strešné terasy rozširujú obytný priestor pod otvoreným nebom. Či už ide o raňajky s výhľadom, štýlové večery s hosťami, súkromné únikové okamihy alebo home office s výhľadom na Alpy, panorámu mesta a so zorným poľom na Olympiaturm – každá denná doba tu je jedinečná. Terasy sú navrhnuté nepriehľadne a veľmi priestranne, takže sú ideálne pre slnenie, elegantné večery s hosťami alebo prácu s výhľadom. Keď večer slnko zmizne za panorámou a dominanty mesta sa pred alpským pásmom začnú kresliť, vznikne panorama, aké sa ťažko zopakuje.
Aj vybavenie spĺňa najvyššie požiadavky: vznešené parkety, podlahové kúrenie, presne vyrobené vstavané prvky, profesionálny svetelný koncept, kontrolované vetranie obytného priestoru, Sonos zvukový systém, domáce kino a množstvo individuálnych dizajnových riešení. Exkluzívna kuchyňa ohromí vysoko kvalitným stolárskym spracovaním, veľkorysým úložným priestorom, prémiovými spotrebičmi od Gaggenau, dizajnovým kubusom, granitovou pracovnou doskou a vstavaným krbom.
Tri vysoko kvalitné kúpeľne poskytujú súkromný wellness komfort na najvyššej úrovni. Hlavná kúpeľňa (master) ponúka walk-in sprchu, vírivkovú vaňu, dizajnové armatury a presne vyrobené umývadlá. Doplnkom k výnimočnému priestorovému konceptu je ďalšia wellness kúpeľňa s parným kúpeľom a sprchou s efektom dažďa.
Je možné zakúpiť až 4 parkovacie miesta v podzemnej garáži (2 s rolovacími bránami), vrátane pivnice a wallboxu pre elektromobilitu. Budova disponuje 2 výťahmi, bezpečnostným konceptom a bezbariérovým prístupom od podzemnej garáže až do bytu.
Výnimočná ponuka pre ľudí, ktorí nechcú len bývať – ale žiť na úrovni, akú sa len zriedka nachádza. Bývanie s nezameniteľnou hodnotou. Iba málo lokalít spája takmer všetko – priamo v centre, mestsky a zároveň úplne pokojným spôsobom.
Váš nový penthouse byt sa tyčí nad obľúbenou štvrťou Schwabing, jednou z najžiadanejších prémiových lokalít v Mníchove, medzi Olympijským parkom a Hohenzollernplatz. Táto poloha sa vyznačuje dokonalou infraštruktúrou, centrálnym a zároveň mimoriadne pokojným prostredím a obrovským relaxačným potenciálom. Dom je prístupný cez dopravne upokojenú prístupovú cestu.
Obchody:
Všetky základné nákupné možnosti, ako aj množstvo lifestyle ponúk, máte pešo priamo pred dverami: Edeka, Rewe, Basic (biomarkt), Lidl, Müller, cukrárne, McDonald’s, kvetinárne, lekárne, týždenný trh, dve čerpacie stanice, fitness centrá, pilates štúdiá, Nordbad, kozmetické salóny, lekárske ordinácie atď. Tiež materské školy a škôlky sú vzdialené pešo približne dve minúty. V okolí nájdete aj množstvo základných a stredných škôl.
Voľný čas:
Olympijský park začína prakticky priamo pred vašimi dverami a je spojený s vlastnou parkovou zónou cez malé pešie mostíky, bez nutnosti prechádzať cez cestu. Celoročne vás tu čakajú koncerty, festivaly, Tollwood a rozmanitý športovo-voľnočasový program. Navyše budete môcť počuť koncerty z Olympijského štadióna a obdivovať ohňostroje a prírodné predstavenia zo strešných terás.
Osobné autá a doprava, MVV:
Infraštruktúra vďaka spojeniu s verejnou dopravou a hlavnými dopravnými ťažnicami mesta je vynikajúca. Autom sa vám v priebehu niekoľkých minút cez stredný okruh dostane do centra, na diaľničné spojenie Mníchov–Norimberg a obchádzku Mníchova (A99) s priamym napojením na bavorskú predsieň Álp. Ideálne pre tých, ktorí potrebujú z pracovných dôvodov perfektné spojenie s hlavnou železničnou stanicou (cca 8 minút) alebo s letiskom (cca 25 minút). Autobusové a električkové zastávky sú v bezprostrednej blízkosti domu.
K najbližšej autobusovej zastávke je to približne 100 metrov. Stanica metra Hohenzollernplatz je vzdialená približne 10 minút pešo alebo 4 minúty autobusom.
• Georg-Birk-Str. (pri Edeka): 100 m od domu, autobus 59
• Barbarastr. (pri REWE): 300 m od domu
• Autobus 53 smer Münchener Freiheit / Aidenbachstr.
• Autobus 59 smer Giesing / Ackermannbogen
• Električka 12 smer Romanplatz / Schwabing Nord
• Nordbad (pri McDonald’s): (5 minút pešo)
• Električka 27 smer Petuerling / Karlsplatz
• Autobus 154 smer …
• Stanica metra Hohenzollernplatz:
• U2/U8 (10 minút pešo, 4 minút autobusom)
Hlavné výhody:
• Absolútna jedinečnosť vďaka bývaniu nad mestom
• V okruhu viac ako 1,2 km – neobmedzený výhľad do všetkých strán
• Spektakulárne vnútorné a vonkajšie perspektívy a neobmedzené výhľadové osi
• Scénické, nepriehľadné strešné terasy s absolútnym súkromím
• Podlahové XXL panoramatické okno vyrobené na mieru
Vybavenie:
• Pôsobivé výšky miestností až do 3,02 m
• Dvere zapustené do steny s rovnými rámami, s Tectus pásmi a precíznym rezaním línií
• Vznešené parkety Weitzer – dub v exkluzívnom výbere
• Podlahové kúrenie v celom byte vrátane kúpeľní
• Vnútorné vstavané prvky lakované do hodvábne matnej bielej, čiastočne s vnútorným osvetlením
• Celostenná šatnícka skriňa s extra veľkými posuvnými dverami a zapusteným XXL zrkadlom
• Priestor pre práčku a sušičku
• Technické vybavenie pre zábavnú elektroniku a inštaláciu kinového/muzikálneho systému
• Kontrolované vetranie obytného priestoru vo všetkých miestnostiach
• Profesionálny svetelný koncept v celom byte
• DELTALIGHT LED/halogénové vstavané svietidlá
• RGB LED svetelné scénáre pre západ slnka, televíziu, párty a romantiku
• Voliteľné riadenie KNX/Bus
• Centrálny vypínač umiestnený pri vchodových dverách bytu a v spálni
• Prepnúť by ste môžete so systémom Busch-Jäger a programom prepínačov a zásuviek od Tobias Grau
• Úplné zatienenie vo všetkých miestnostiach pre absolutné súkromie a režim inkognita
• Vonkajšie tienenie pre spálňu, obývaciu, jedálenskú a pracovňu
• Sonos Home Sound System s plošne integrovanými LB reproduktormi v celom byte
• Domáce kino s priestorovým zvukom vrátane subwoofera v TV/kinematografickej zóne
• Plošne zapustené LED stropné panely s efektom oblohy
• Optické RGB LED “hviezdne nebo” v spálni s ručne maľovaným stropom
• Ručne vyhladená TV stena s držiakom pre veľké ploché obrazovky
Master kúpeľňa:
• Wellness chrám s podlahou na rovine – XXL walk-in sprchou, 2 hlavovými sprchami, rainshower,
• 6 bočných sprch, 2 vodopádové sprchy a zvukový systém
• Gessi armatury s dvojitým termostatom a 6 samostatnými ovládacími prvkami
• Vírivková vaňa so zabudovaným LED osvetlením
• Rôzne nicky v sprche a vo vírivke s RGB LED osvetlením
• Stolársky dvojitý zrkadlový skriňový systém so LED osvetlením
• Dvojité Corian umývadlá s integrovaným spodným skrinkovým riešením
• Dizajnový ohrievač uterákov z ručne kovaného nerezového materiálu
• WC s odsávaním pachov a prípravou pre sprchové WC
• Stropné svetlo Tobias Grau “Falling Trio”
• TV nika so sieťovým pripojením a anténou
Hostínska wellness kúpeľňa:
• Corian parná kúpeľňa s funkciou vône, LED-RGB “hviezdne nebo”, vyhrievanou sedacou lavicou
• Corian nicky, bočné sprchy, hlavová a rainshower a zvukový systém
• Armatury značky Dornbracht
• Zrkadlová skriňa s osvetlením
• Corian umývadlo s integrovaným spodným skrinkovým riešením
• Dizajnový ohrievač uterákov z ručne kovaného nerezového materiálu
• WC s odsávaním pachov a prípravou pre sprchové WC
Hostská toaleta:
• Dizajn inšpirovaný štýlom slávneho mníchovského nočného klubu s Petra Antiqua prírodným kameňom
• Stenné lakovanie a LED nika s dichroizovaným svetlom
• Alternatívne využitie – možno ju premeniť na priestrannú skrinku na topánky / šatník
Kuchyňa:
• Vysoko lesklá lakovaná biela stolárska kuchyňa s celostennými vstavanými prvkami
• XXL úložný priestor, mostík a posuvné zrkadlové dvere
• Dizajn podľa variácie Poggenpohl Artesio (Hadi Teherani)
• Dva chladničky, z toho jedna s automatickým výrobcem ľadu a prípojkou na stálu vodu
• Gaggenau parný varný prístroj s prípojkou na stálu vodu a rúra s teplovou zásuvkou
• DiskControl indukčná varná doska
• Vstavaný, plošne integrovaný vodný parný krb s LED-RGB konceptom
• Saténová pracovná doska z Nero-Assoluto granitu
Ďalšie:
• 120 x 120 porcelánové terasové dlaždice s prírodnými žilami kameňa na južnej terase
• Markíza Weinor s osvetlením
• Nábytok a umelecké diela – voliteľne kúpiteľné po dohode
Parkovacie miesta v podzemnej garáži & pivnice/skladovacie priestory:
• Celkovo je možné zakúpiť až 4 priestranné miesta v podzemnej garáži:
• 1x dvojgaráž so 2 veľkými parkovacími miestami
• Rolovacia brána s diaľkovým ovládaním pri dvojgaráži
• Integrovaný, uzamykateľný pivničný priestor (cca 13 m²)
• 1x Wallbox (12 kWh) s modulom na optimalizáciu ceny elektriny pri dvojgaráži
• 2 ďalšie, vedľa seba umiestnené parkovacie miesta v podzemnej garáži
• Okrem toho je možné prenajať ďalšie parkovacie miesta v podzemnej garáži
Možnosti dispozície:
• Individuálne varianty dispozície je možné prispôsobiť životnej situácii
• Voľne navrhnuté rozdelenie je dané iba vonkajšími stenami a inštalačnými šachtami
• Vďaka modulárnej suchebnej výstavbe sú takmer všetky požadované dispozície realizovateľné
• Možné krátkodobé prevedenie po dohode
• Odborné firmy zapojené do rekonštrukcie sú k dispozícii
napríklad plánovači osvetlenia a elektroinštalácií, stolári, suchební stavitelia
• Úpravy je možné zrealizovať v priebehu niekoľkých týždňov
Dom:
• Dvojfarebný, sochársky ztvárnený architektonický skvost – projekt architektonickej kancelárie vizionára prof. Otto Steidle
• Prístup do poschodia je umožnený výlučne cez transpondrový bezpečnostný systém so 2 výťahmi
• Vrátane schodiska Key-Only, dverových kamier a interkomu
Rok výstavby / dokončenia: 2011
• Diaľkové vykurovanie a podlahové kúrenie
• Miestnosť pre bicykle a detské kočíky
• Batériový záložný zdroj energie pre celý dom pri výpadkoch elektriny a núdzových situáciách
• Bezbariérový prístup vo všetkých oblastiach – od podzemnej garáže až po byt
Parametre nehnuteľnosti
| Vek | Nad 50 rokov |
|---|---|
| Dispozícia | 4+kk |
| PENB | C - Hospodárne |
| Cena za jednotku | 21 929,82 € / m2 |
| Stav | Veľmi dobrý |
|---|---|
| Číslo inzerátu | 1017041 |
| Úžitková plocha | 171 m² |
Čo táto nehnuteľnosť ponúka?
| Balkón | |
| Pivnica | |
| Výťah | |
| Terasa |
| Bezbariérový prístup | |
| Garáž | |
| MHD 2 minúty pešo |
V okolí nehnuteľnosti nájdete
Stále hľadáte to pravé?
Nastavte si strážneho psa. Ponuky vybrané na mieru dostanete súhrnne 1× denne e-mailom. S Premium profilom máte po ruke rovno 5 strážcov a keď sa niečo objaví, informujú vás obratom.



























