
Predaj domu 5+1 • 140 m² bez realitky, Dolné Sasko
Táto mladá a samostatne stojaca rodinná vila ponúka ideálne podmienky pre rodiny, ktoré si cenia tichú obytnú lokalitu, premyslené dispozičné riešenie a dobré dopravné spojenie. Nehnuteľnosť sa nachádza v vyvinutej obytné štvrti Achim-Uphusen a najmä prekvapí praktickými možnosťami využitia v každodennom živote.
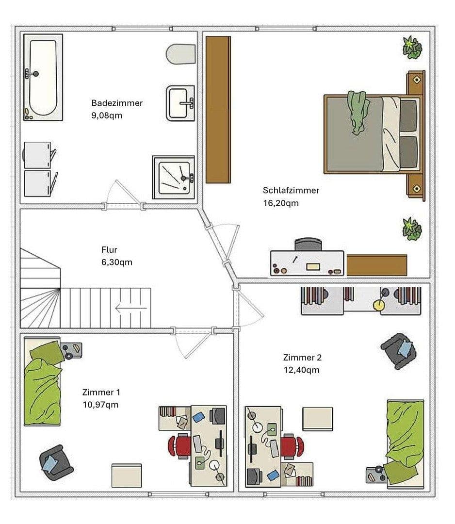
S obytnou plochou približne 144 m², rozloženou do piatich izieb, je k dispozícii dostatok priestorov pre súkromie aj spoločné aktivity. Dispozičné riešenie je jasne členené a umožňuje kombinovať rodinný život aj prácu z domu.
V prízemí zabezpečuje svetlý vstupný priestor príjemný prvý dojem. Odtiaľ sú prístupné všetky miestnosti tohto poschodia. Okrem hostového WC so sprchou a oknom sa tu nachádza aj samostatná izba, ktorá je ideálna ako pracovňa alebo izba pre hostí. Priestranná kuchyňa ponúka dostatok miesta pre rodinný každodenný život. Dodatočný úložný priestor pod schodiskom poskytuje praktické uskladnenie.
Obývacia izba, vďaka oknám až po podlahu, je veľmi svetlá a ponúka priamy prístup na terasu a do záhrady, čo umožňuje funkčné prepojenie interiéru a exteriéru.
Svetlá a útulná jedálenská časť v vyklenutom priestore dopĺňa priestranný obývací priestor, pričom sa tu v prípade potreby dá realizovať aj ďalšia veľká izba.
Prípojky pre krb sú zabezpečené.
Na poschodí nájdete tri dobre usporiadané spálne, ktoré sa flexibilne prispôsobia rôznym životným etapám. Kúpeľňa so vstupom denného svetla je vybavená vaňou, sprchou a podlahovým kúrením.
Izolovaný podkrovie dopĺňa dispozičný záber a slúži ako dodatočný úložný priestor.
Dom je v prízemí úplne vybavený podlahovým kúrením. Plynové kúrenie od spoločnosti Buderus (2023), elektrické rolety, nová zabudovaná kuchyňa od spoločnosti Nolte, aplikáciou ovládané termostaty v prízemí a dostupná wallbox predstavujú ďalšie funkčné prednosti tejto nehnuteľnosti.
Vybavenie:
• Samostatne stojaci rodinný dom
• Rok výstavby: 1999
• Obytná plocha približne 140 m²
• Pozemok približne 306 m²
• 5 izieb (možnosť rozšírenia)
• 2 kúpeľne
• Terasa so vstupom do záhrady z obývacej izby
• Izolovaný podkrovie s dodatočným úložným priestorom
• Podlahové kúrenie v prízemí a v hornom kúpeľni
• Plynové kúrenie (spoločnosť Buderus, 2023)
• Elektrické rolety v celom dome
• Nová zabudovaná kuchyňa (spoločnosť Nolte)
• Aplikáciou ovládané termostaty v prízemí
• Veľké a svetlé dlaždice v prízemí
• Kvalitný laminát na poschodí
• Dostupná a nainštalovaná wallbox
Ďalšie informácie:
Nehnuteľnosť je k dispozícii na základe dohody
Stav:
Zrenovovaný a zmodernizovaný, udržiavaný
Nehnuteľnosť sa nachádza v štvrti Uphusen mesta Achim. Obytné zoskupenie je pokojné a rodinno-orientované, pričom ponúka aj dobré spojenie s mestským prostredím.
V bezprostrednej blízkosti začína močariská krajina, ktorá je ideálna pre prechádzky, voľnočasové aktivity a oddych v prírode. Táto blízkosť k zeleným plochám predstavuje zvláštnu výhodu pre rodiny a milovníkov prírody.
Bremer Weserpark je rýchlo dostupný a ponúka širokú ponuku obchodov, gastronómie a voľnočasových aktivít.
Okrem toho je zabezpečené veľmi dobré spojenie s bremer MHD a okolnými diaľnicami, vďaka čomu sú Bremen aj ďalšie regionálne ciele rýchlo dostupné. Poloha je preto ideálna pre dochádzajúcich, ktorí chcú spojiť pokojné bývanie s výbornou dostupnosťou.
Predaj prebieha od súkromných vlastníkov
- Žiadny dodatočný maklérsky poplatok! -
Parametre nehnuteľnosti
| Vek | Nad 50 rokov |
|---|---|
| Dispozícia | 5+1 |
| PENB | E - Nehospodárne |
| Plocha pozemku | 306 m² |
| Stav | Po rekonštrukcii |
|---|---|
| Číslo inzerátu | 1016990 |
| Úžitková plocha | 140 m² |
| Cena za jednotku | 3 421,43 € / m2 |
Čo táto nehnuteľnosť ponúka?
| Parkovanie | |
| Terasa |
| MHD 0 minút pešo |
V okolí nehnuteľnosti nájdete
Stále hľadáte to pravé?
Nastavte si strážneho psa. Ponuky vybrané na mieru dostanete súhrnne 1× denne e-mailom. S Premium profilom máte po ruke rovno 5 strážcov a keď sa niečo objaví, informujú vás obratom.



















