
Prenájom bytu 2+kk • 56 m² bez realitkyU Kasáren, Dašice - Dašice, Pardubický kraj
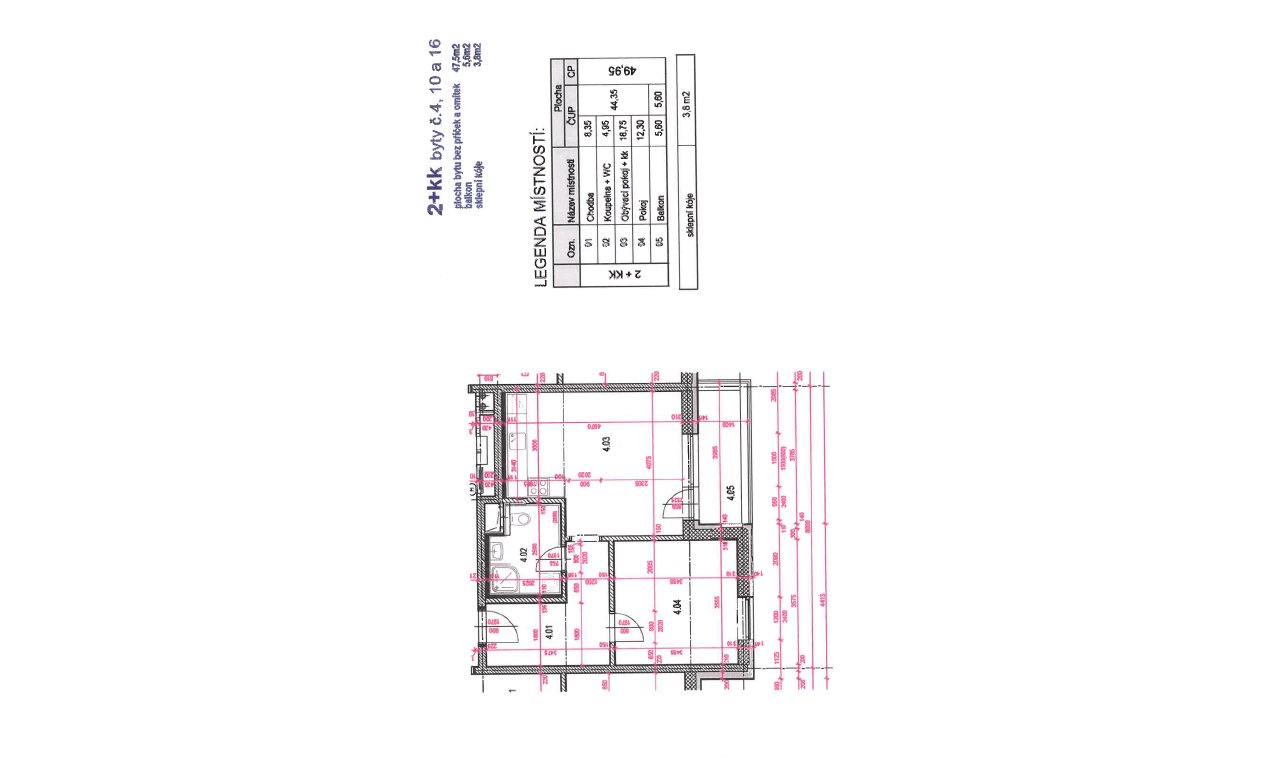
Nabízím k pronájmu světlý a moderní byt 2+kk v cihlové novostavbě. Nachází se v příjemném domě se čtyřmi podlažími v moderně zrealizovaném prostoru s kvalitními materiály. Byt o celkové ploše 56 m² se nachází ve druhém patře s využitím výtahu, což zvyšuje komfort bydlení. Dispozice bytu vám nabízí samostatnou obývací část s kuchyňským koutem a další pokoj, který můžete využít dle vlastních představ.
Byt je částečně vybaven, což umožňuje individuální úpravy interiéru podle vašich potřeb a vkusu. Kromě toho oceníte také malý balkón o ploše 5 m² a rovněž sklep s praktickou plochou 3 m², který nabízí doplňkový úložný prostor. Pro vaše pohodlí je rovněž dostupné parkování, které zajistí bezpečné místo pro vaše vozidlo.
Kolaudace bytu je plánována na květen 2026.
V případě zájmu mne neváhejte kontaktovat skrz zprávy na této komunikační platformě.
Parametre nehnuteľnosti
| Dostupné od | 20. 6. 2026 |
|---|---|
| Konštrukcia budovy | Tehla |
| Vybavené | Čiastočne |
| Číslo inzerátu | 1016637 |
| Umiestnenie | Tichá lokalita |
| Cena za jednotku | 266,07 CZK / m2 |
| Stav | Novostavba |
|---|---|
| Dispozícia | 2+kk |
| Poschodie | 2. poschodie z 4 |
| PENB | B - Veľmi úsporné |
| Úžitková plocha | 56 m² |
Čo táto nehnuteľnosť ponúka?
| Balkón 5 m² | |
| Výťah |
| Pivnica 3 m² | |
| Parkovanie |
V okolí nehnuteľnosti nájdete

Prenájom bytuLuže - Luže, Pardubický kraj- 3+kk
- 70 m²
12 000 CZK + 3 300 CZK16 000 CZK
Ušetríte 4 000 CZK


Stále hľadáte to pravé?
Nastavte si strážneho psa. Ponuky vybrané na mieru dostanete súhrnne 1× denne e-mailom. S Premium profilom máte po ruke rovno 5 strážcov a keď sa niečo objaví, informujú vás obratom.


