Predaj domu 5+1 • 206 m² bez realitkyzur Heide 53, , Sasko-Anhaltsko
Tento štýlový rodinný dom z roku 1999 sa prezentuje vo vynikajúcom stave a spája klasické obytné prostredie s moderným vybavením.
Nehnuteľnosť sa nachádza v pokojnej obytné oblasti Eulau – obklopená upravenými záhradami a rozľahlými zelenými plochami.
S obytnou plochou približne 206 m² a priestranným pozemkom, upravenou záhradou, bazénom a saunou ponúka tento dom ideálne útočisko pre rodiny aj páry.
Sídlo ohromuje kvalitnou stavebnou realizáciou, masívnou tehlovou konštrukciou, premysleným rozložením priestorov a množstvom láskavých detailov, ktoré vytvárajú útulný pocit domova.
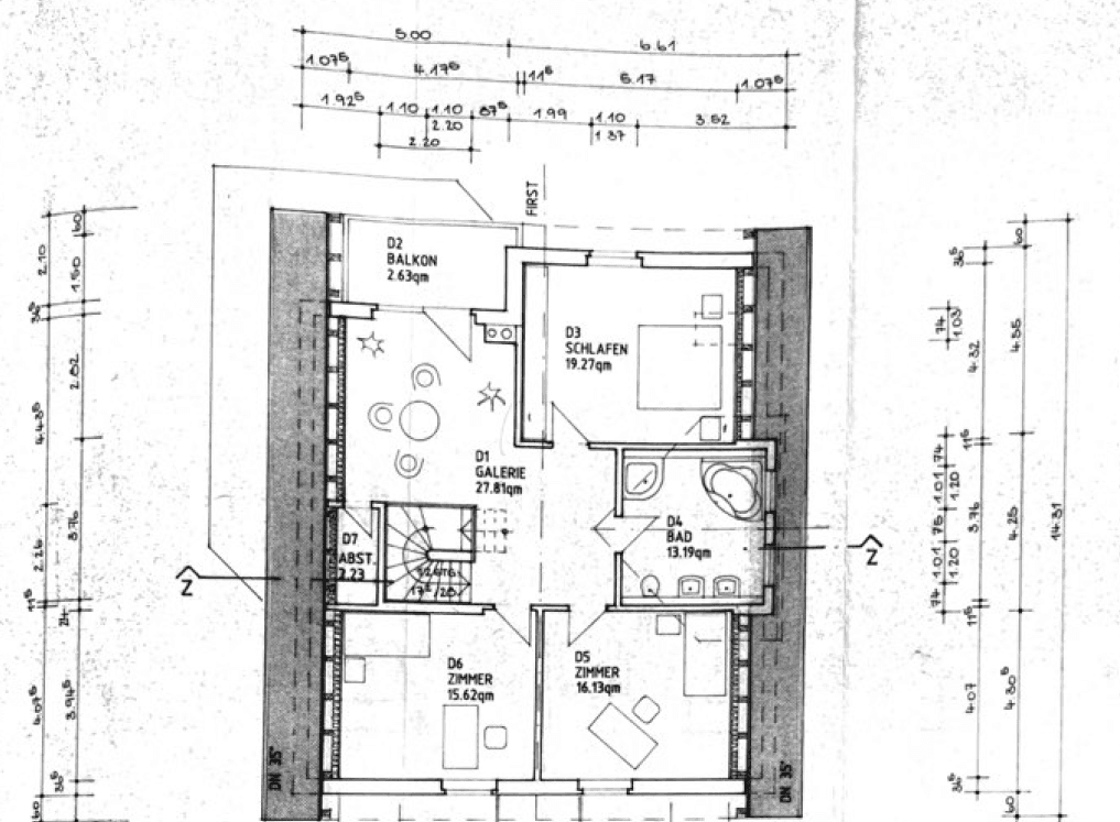
Prízemie:
• Veľkorysý vstupný priestor
• Obývacia/jedálenská izba s priamym vstupom na terasu a do záhrady
• Kuchyňa
• Hosťové WC
• Pracovňa / hosťovská izba
Poschodie:
• Hlavná spálňa
• Dve detské izby
• Veľká rodinná kúpeľňa s vaňou a sprchou
Suterén:
• Dva vyhrievané hobby miestnosti
• Sauna so sprchovým oddelením a relaxačnou zónou
• Domácnostná miestnosť
• Technická a skladovacia miestnosť
• Vstup do dvojgaráže
Dom sa nachádza v 06618 Eulau, v upravenej a pokojnej obytné oblasti s vynikajúcou kvalitou života. Ideálne útočisko pre milovníkov prírody a pokoja.
Rok výstavby: 1999, masívna konštrukcia
Obytná plocha: 206 m²*
Rozloha pozemku: 811 m²
Kúrenie: Plynové ústredné kúrenie s podlahovým kúrením a radiátormi
Strecha: Sedlová strecha s červenou hlinenou krytinou, izolovaná
Okná: Dvojsklové drevené okná s okenicami
Podlahy: Granit, parkety, dlažba
Krbový kachlík v obývacej izbe
Dve priestranné kúpeľne
Otvorená obývacia/jedálenská časť s prístupom na terasu
Montovaná kuchyňa (voliteľne prevzateľná)
Sauna v suteréne s relaxačnou zónou
Dvojgaráž s priamym vstupom do domu
Vonkajší bazén (cca 8 x 4 m) so slnečnou terasou
Krajinne upravená záhrada s prírodným kameňom
Balkón, terasa a prístrešený vonkajší priestor
Úplne podkrovený, s ďalšou hobby miestnosťou
K dispozícii pripojenie pre fotovoltaiku a wallbox
Osobitosti
• Ihneď na nasťahovanie
• Vysokokvalitné spracovanie granitu a prírodného kameňa
• Vlastná sauna v suteréne
• Upravené vonkajšie priestory s bazénom
• Nadpriemerný stav údržby
• Pokojná, slnečná poloha s nezablokovateľným výhľadom
Ďalšie informácie
Energetický preukaz: v príprave
Voľný podľa dohody
Typ nehnuteľnosti: rodinný dom
Stav: veľmi udržiavaný / na nasťahovanie
Parametre nehnuteľnosti
| Vek | Nad 50 rokov |
|---|---|
| Stav | Dobrý |
| Číslo inzerátu | 1016559 |
| Úžitková plocha | 206 m² |
| Celkové poschodia | 2 |
| Dostupné od | 1. 1. 2026 |
|---|---|
| Dispozícia | 5+1 |
| PENB | D - Menej hospodárne |
| Plocha pozemku | 811 m² |
| Cena za jednotku | 2 859,22 € / m2 |
Čo táto nehnuteľnosť ponúka?
| Balkón | |
| Garáž | |
| Terasa |
| Pivnica | |
| MHD 5 minút pešo |
V okolí nehnuteľnosti nájdete
Stále hľadáte to pravé?
Nastavte si strážneho psa. Ponuky vybrané na mieru dostanete súhrnne 1× denne e-mailom. S Premium profilom máte po ruke rovno 5 strážcov a keď sa niečo objaví, informujú vás obratom.










