
Prenájom nebytového priestoru • 446 m² bez realitky, Hesensko
, HesenskoMHD do minúty pešo • VýťahViac priestoru, nové možnosti pre Váš obchod alebo podnikanie
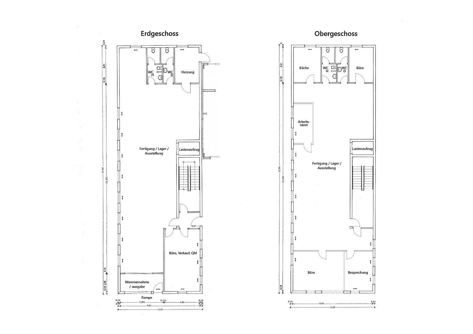
• 446 m² dielňa, výroba, výstava, sklad – s kanceláriou a pomocnými priestorami
• 8 parkovacích miest pre osobné vozidlá
• V prípade potreby je možné prenajať až 4 160 m² susedného vonkajšieho priestoru
• Bez provízie od súkromného poskytovateľa
PERFEKTNÁ LOKALITA:
Gelnhausen Hailer-Ost: Populárna, expandujúca obchodná zóna okresného mesta Gelnhausen na východnom okraji regiónu Rýn-Majns
Priama dostupnosť na diaľnici A66 (logistická trasa Frankfurt–Fulda); len 45 minút od medzinárodného letiska; mestská autobusová zastávka v pešej vzdialenosti, len cca 3 min. od železničnej stanice Gelnhausen
V bezprostrednej blízkosti sa nachádza množstvo maloobchodných a služobných podnikov, ako aj gastronomické prevádzky, hotely a fitness centrum
VAŠE NOVÉ PRIESTORY:
• Masívna stavba, dvoj-poschodová
• Väčšinou svetlé priestory s množstvom denného svetla
• Dobre vybavená elektroinštalácia
• Potrubia pre stlačený vzduch v celom výrobnom priestore
• Sekčná dverová konštrukcia s dňovými svetelnými segmentmi a nakladacou rampou
• Nákladový výťah do 1 000 kg / 11 osôb
• Výška miestností: prízemie 3,50 m, poschodie 3,00 m
AKO NÁS DOSIAHNUŤ:
V prípade záujmu nám, prosím, pošlite správu s
• Vaším menom a názvom spoločnosti, adresou
• Telefónnym číslom
• E-mailovou adresou
• Stručným popisom, na čo by ste objekt chceli využiť
Parametre nehnuteľnosti
| Vek | Nad 50 rokov |
|---|---|
| Číslo inzerátu | 1016462 |
| Cena za jednotku | 0 € / m2 |
| Stav | Dobrý |
|---|---|
| Plocha nebytového priestoru | 446 m² |
Čo táto nehnuteľnosť ponúka?
| Výťah |
| MHD 0 minút pešo |
V okolí nehnuteľnosti nájdete
Stále hľadáte to pravé?
Nastavte si strážneho psa. Ponuky vybrané na mieru dostanete súhrnne 1× denne e-mailom. S Premium profilom máte po ruke rovno 5 strážcov a keď sa niečo objaví, informujú vás obratom.











