Predaj domu 4+1 • 124 m² bez realitkyDockstraße 25 Lübeck-Kücknitz Herrenwyk Schleswig-Holstein 23569
Ponúkaná dvojdomovka z pôvodného roku 1940 s priestrannou prístavbou z roku 1985 sa nachádza na pozemku o výmere cca 400 m² (vlastný pozemok) v pokojných obytných oblastiach Lübeck-Kücknitz.
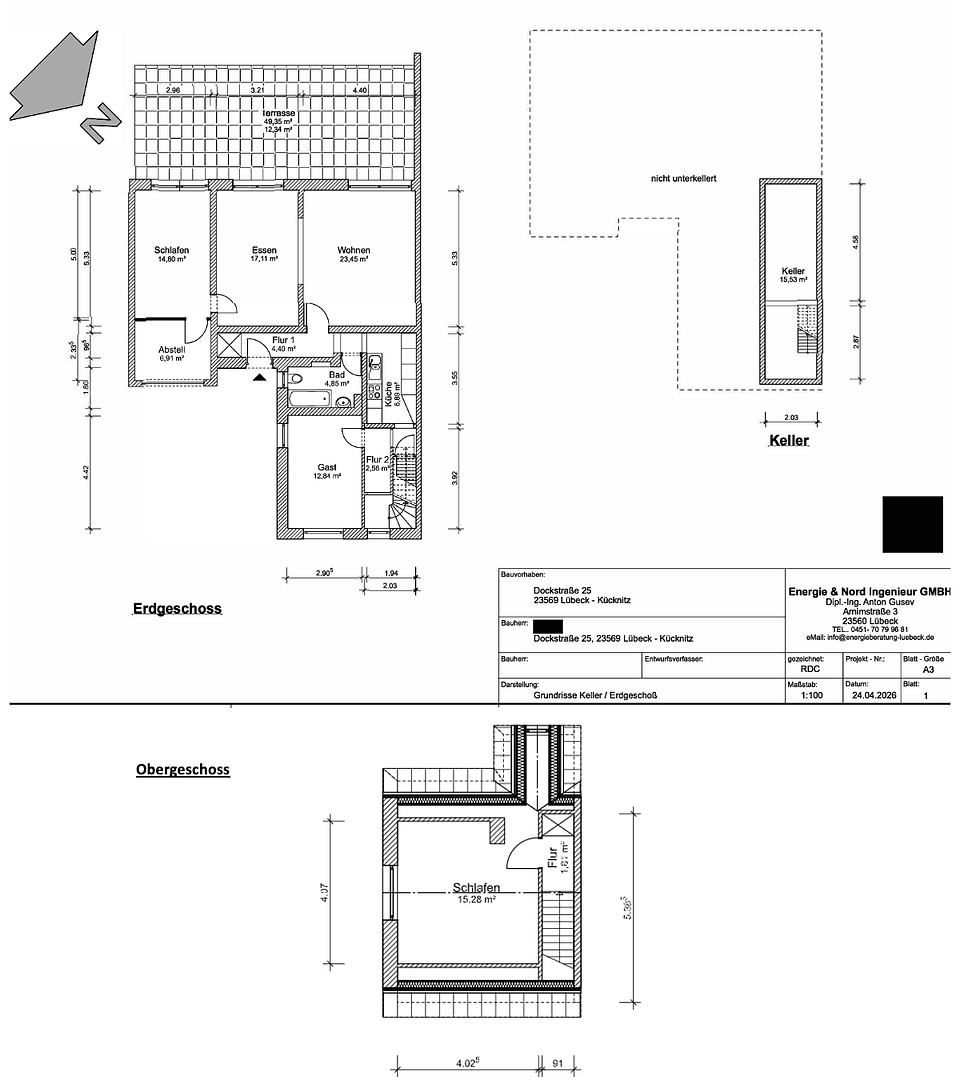
S obytnou plochou približne 123 m² a celkom 4 izbami ponúka nehnuteľnosť dobrý základ pre rodiny alebo páry so značným priestorovým nárokom. Dom je čiastočne s pivnicou a bol v priebehu rokov priebežne udržiavaný a modernizovaný. Mnohé opatrenia, najmä v posledných rokoch, zabezpečili celkovo udržiavaný a funkčný stav.
Obzvlášť je potrebné vyzdvihnúť prístavbu, v ktorej sa nachádza obývacia izba s integrovaným jedálenským priestorom. Táto časť vytvára priestranný dojem z bývania a je navyše vybavená podlahovým kúrením. Odtiaľto je priamy vstup do záhrady, čo je ideálne pre každodenný život s deťmi alebo pre relaxačné chvíle na čerstvom vzduchu.
Z prístavby sa tiež dostanete do spálne. Táto miestnosť bola pôvodne navrhnutá ako garáž a bola prerobená s ľahkými stavebnými priečkami. Návrat k pôvodnému využitiu ako garáž je v zásade možný.
Exteriér zaujme upravenou záhradou orientovanou na juhozápad, ktorá ponúka rôzne možnosti využitia. Okrem chatky na náradie je k dispozícii aj masívna, kúrená prístavba, ktorá sa môže využiť napríklad ako hobby miestnosť, dielňa alebo ako ďalší úložný priestor.
V roku 2023 bola nainštalovaná wallbox (11 kW), ktorá výhodne dopĺňa existujúce vybavenie.
Nehnuteľnosť sa nachádza v Lübeck-Kücknitz, v ustálenom a pokojnom obytnom prostredí s dobrou infraštruktúrou.
Obzvlášť pre rodiny dôležité:
• Základná škola a bazén sú pešo dostupné približne do 5 minút.
• Nákupné centrum (Famila) sa nachádza pešo približne 10 minút.
Ďalšie možnosti nakupovania, lekári aj zariadenia pre každodenné potreby sú dostupné v bezprostrednom okolí.
Doprava mestskou hromadnou dopravou aj spojenie do centra Lübecku je dobré. Blízkosť Baltského mora a Travemünde ponúka ďalšie možnosti na voľnočasové aktivity.
Pri vstupe do domu sa ocitnete v centrálnej halli, z ktorej sú prístupné miestnosti v prízemí. Dispozícia izieb je funkčná a umožňuje rôzne spôsoby využitia.
Kuchyňa bola vstavaná na mieru v roku 2019 a ponúka moderné využitie. Kúpeľňa bola v roku 1998 zásadne zrekonštruovaná.
Obývacia izba v prístavbe tvorí centrálnu spoločenskú časť domu. Podlahové kúrenie a ľahko udržiavateľná dlažba tu zabezpečujú príjemný komfort bývania.
V pôvodnom hlavnom dome sa nachádza podlahové drevo v prízemí aj v poschodí, ktoré je momentálne prekryté kobercovou podlahou a v prípade potreby môže byť opäť odhalené.
Za kuchyňou, smerom k ulici, sa nachádza detská izba. Odtiaľ máte tiež prístup na poschodie domu, kde sa nachádza ďalšia obytná miestnosť s malou dodatočnou nika na šikmej stene strechy.
Technicky sa nehnuteľnosť prezentuje v pevnom stave:
• Plynové kúrenie (z roku 2008, pravidelne udržiavané)
• Ohrev teplej vody cez vykurovaciu sústavu
• Väčšina radiátorov bola obnovená (2022)
• Elektroinštalácia väčšinou trojadrová vrátane prúdového chrániča (FI-chránič)
• Väčšina okien pochádza z cca roku 1980 (plastové, dvojsklo).
Realizované opatrenia:
• 2024: Obnovenie kanalizačného potrubia vrátane pristupovej šachty
• 2024: Obnovenie odkvapového systému a odtokov
• 2023: Inštalácia wallboxu (11 kW)
• 2015: Rekonštrukcia plochej strechy na prístavbe
K dispozícii sú rôzne faktúry, ďalšie podklady a stavebné povolenia od stavebného úradu v Lübecku.
Náklady:
• Daň z nehnuteľnosti: 258,81 € ročne
• Poistné budovy: cca 220 € ročne
Súkromný predaj – bez provízie.
Poskytnuté informácie o nehnuteľnosti, dokumenty, plány atď. pochádzajú od vlastníka/predávajúceho. Nie je prevzatá žiadna zodpovednosť za správnosť alebo úplnosť uvedených údajov. Preto je na záujemcovi/kúpajúcom overiť správnosť informácií uvedených v dokumentácii. Ponuka nehnuteľnosti je bez záväzku a je podmienená možnými chybami, predčasným predajom alebo prenájmom či iným medzičasovým využitím.
Kontakt:
Prosím, kontaktujte nás písomne prostredníctvom tejto platformy. Nezabudnite uviesť svoje telefónne číslo, aby sme Vás mohli kontaktovať.
Prehliadky prosím len po predchádzajúcej dohode!
Parametre nehnuteľnosti
| Vek | Nad 50 rokov |
|---|---|
| Stav | Dobrý |
| Číslo inzerátu | 1016415 |
| Úžitková plocha | 124 m² |
| Celkové poschodia | 2 |
| Dostupné od | 1. 8. 2026 |
|---|---|
| Dispozícia | 4+1 |
| PENB | F - veľmi nehospodárne |
| Plocha pozemku | 400 m² |
| Cena za jednotku | 2 403,23 € / m2 |
Čo táto nehnuteľnosť ponúka?
| Pivnica |
| Terasa |
V okolí nehnuteľnosti nájdete
Stále hľadáte to pravé?
Nastavte si strážneho psa. Ponuky vybrané na mieru dostanete súhrnne 1× denne e-mailom. S Premium profilom máte po ruke rovno 5 strážcov a keď sa niečo objaví, informujú vás obratom.







































