Prenájom bytu 6+1 • 125 m² bez realitkyÄußere Oybiner Straße 5, , Sasko
Äußere Oybiner Straße 5, , SaskoMHD 2 minúty pešo • ParkovaniePri danej nehnuteľnosti ide o udržiavaný rohový dom s priestranným pozemkom a bezprostredne priľahlým rozsiahlym parkoviskom. V budove sa nachádzajú celkovo tri už prenajaté, priestranne usporiadané obytné jednotky. Poschodie nad strechou je momentálne ešte nevybudované a ponúka perspektívne ďalší rozvojový potenciál. Ponúkaný byt zaujme svojou priestrannou dispozíciou a príjemnou obytnou atmosférou.
Nehnuteľnosť sa nachádza na výbornom mieste s veľmi dobrou infraštruktúrou. Možnosti nákupu bežných potrieb, medzi ktoré patrí aj pekárne, maloobchod či lekárska starostlivosť, sú pohodlne dostupné. Dopravné spojenie je optimálne: Zastávka autobusu a malá autobusová stanica sa nachádzajú len približne päť minút pešo. Centrum mesta je dosiahnuteľné za približne sedem minút. Poloha je ideálna pre rodiny, pracujúcich aj pre došlých.
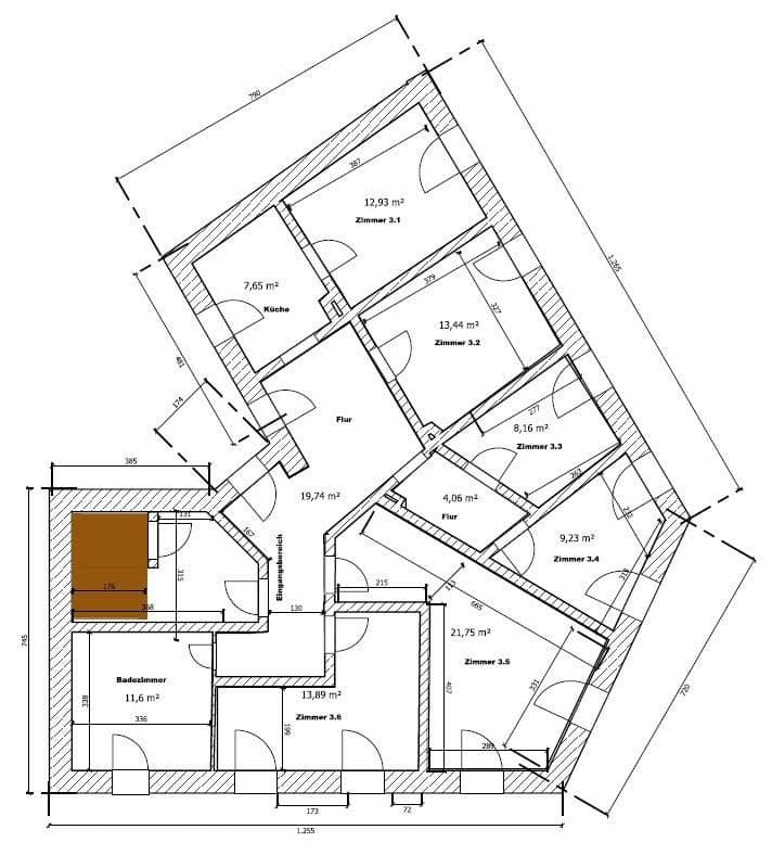
Byt disponuje celkovo šiestimi izbami a ponúka približne 125 m² obytného priestoru, čo poskytuje veľké možnosti rozvoja. Časť izieb je už zariadená, prevažne s funkčným a jednoduchým vybavením. Izby sú svetlé a priestranné, pričom rôzne veľkosti izieb ponúkajú ako väčšie obytné priestory, tak aj kompaktné miestnosti.
Niektoré okná sú vybavené moderným trojnásobným zasklením, čo zabezpečuje dobrú energetickú účinnosť a príjemný pokoj.
Kúpeľňa je vybavená vaňou, ktorá sa využíva aj ako sprchový kút, umývadlom a záchodom. V kúpeľni sa nachádza aj prípojka pre práčku. Byt je doplnený o priestranný a príťažlivý predsál.
Kuchyňa je vybavená staršou, no udržiavanou zabudovanou linkou, ktorú je možné v prípade potreby vymeniť za novú. Na podporu ohrevu teplej vody boli v suteréne inštalované dve vzduchové tepelné čerpadlá. Tieto prispievajú k efektívnemu hospodáreniu s energiou a k minimalizácii bežných nákladov pre obyvateľov.
Zittau sa vyznačuje ako živé univerzitné a študentské mesto s viacerými vzdelávacími inštitúciami a výskumnými strediskami, čo zabezpečuje rozmanitú kultúrnu a spoločenskú ponuku.
V bezprostrednom okolí je množstvo možností pre aktívnu oddychovú rekonvalescenciu, medzi ktoré patrí najmä nedaleké jazero Olbersdorfer. Aj príjemná príroda Zittauského pohoria ponúka ideálne podmienky pre výlety a aktivity v prírode.
Kombinácia modernej mestskej infraštruktúry a prírodného prostredia robí lokalitu obzvlášť atraktívnou.
Parametre nehnuteľnosti
| Vek | Nad 50 rokov |
|---|---|
| Stav | Po rekonštrukcii |
| Poschodie | 2. poschodie z 3 |
| Úžitková plocha | 125 m² |
| Dostupné od | 1. 7. 2026 |
|---|---|
| Dispozícia | 6+1 |
| Číslo inzerátu | 1016324 |
| Cena za jednotku | 5,48 € / m2 |
Čo táto nehnuteľnosť ponúka?
| Parkovanie |
| MHD 2 minúty pešo |
V okolí nehnuteľnosti nájdete
Stále hľadáte to pravé?
Nastavte si strážneho psa. Ponuky vybrané na mieru dostanete súhrnne 1× denne e-mailom. S Premium profilom máte po ruke rovno 5 strážcov a keď sa niečo objaví, informujú vás obratom.


















