
Prenájom bytu 2+kk • 64 m² bez realitkyLandwehrstraße 14, , Severné Porýnie - Westfálsko
Landwehrstraße 14, , Severné Porýnie - WestfálskoMHD 3 minúty pešo • ParkovaniePonúkame priestranný 2,5 izbový byt v centrálnej lokalite v Moers.
Pešo to len pár krokov do centra mesta, no napriek tomu je byt situovaný pokojne.
Budova je zásobená diaľkovým kúrením.
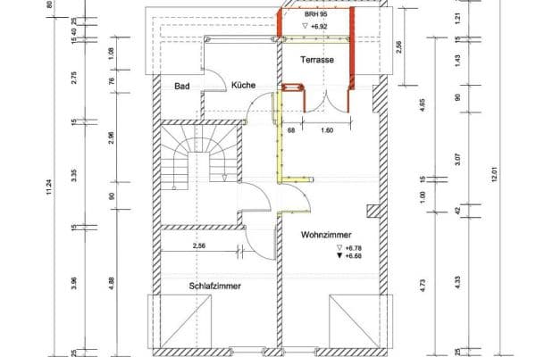
Byt sa skladá z izieb: spálňa, obývačka, kuchyňa, chodba, kúpeľňa, priestranná komora a suterén.
Mansardový predsieň s balkonovým charakterom a vlastné uzamykateľné parkovacie miesto pre automobil dopĺňajú ponuku.
Byt je voľný od 01.07.2026.
Pri záujme prosím vo svojej žiadosti uveďte nasledujúce údaje:
- Celé meno
- Povolanie a príjem
- Vek
- Domáce zvieratá (nie/áno – aké?)
- Dátum nasťahovania
Neúplné žiadosti bohužiaľ nemôžeme zohľadniť.
V prípade otázok sme vám k dispozícii.
Parametre nehnuteľnosti
| Vek | Nad 50 rokov |
|---|---|
| Dispozícia | 2+kk |
| Číslo inzerátu | 1016308 |
| Úžitková plocha | 64 m² |
| Dostupné od | 1. 7. 2026 |
|---|---|
| Poschodie | 2. poschodie z 3 |
| PENB | F - veľmi nehospodárne |
| Cena za jednotku | 9,45 € / m2 |
Čo táto nehnuteľnosť ponúka?
| Balkón | |
| MHD 3 minúty pešo |
| Parkovanie |
V okolí nehnuteľnosti nájdete

Prenájom bytuVon-der-Mark-Str. 37 Duisburg Mittelmeiderich Nordrhein-Westfalen 47137- 3+1
- 83 m²
615 € + 280 €



Stále hľadáte to pravé?
Nastavte si strážneho psa. Ponuky vybrané na mieru dostanete súhrnne 1× denne e-mailom. S Premium profilom máte po ruke rovno 5 strážcov a keď sa niečo objaví, informujú vás obratom.







