
Prenájom bytu 4+kk • 148 m² bez realitkyLeipzig Schleußig Sachsen 04299
Leipzig Schleußig Sachsen 04299MHD do minúty pešo • Výťah • GarážHľadá sa nový nájomca! Krásny [4,5]-izbový byt v Leipzig-Schleussig.
Základné údaje:
Izby: 4,5
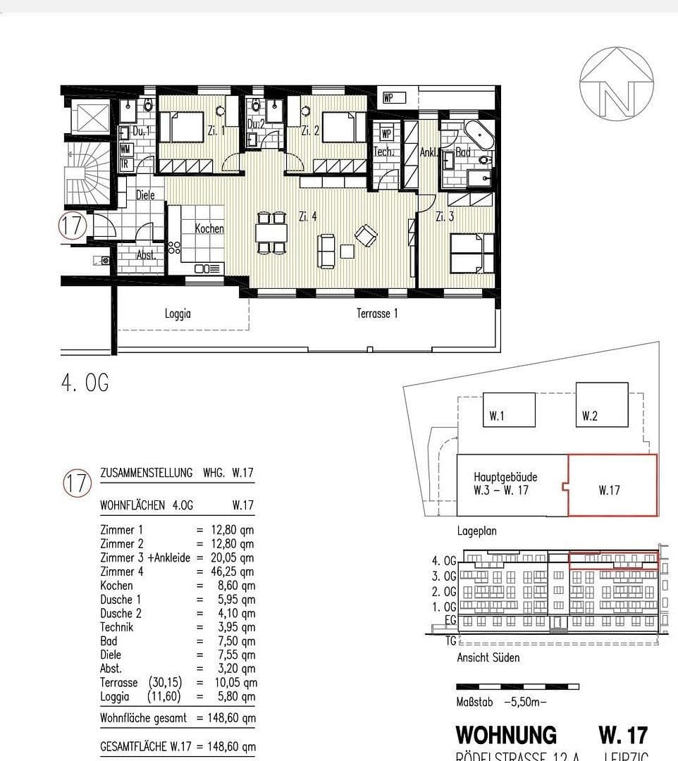
Bytová plocha: cca 148 m²
Nájomné (bez poplatkov): 2190 €
Prevádzkové náklady: 240 €
Nájomné vrátane poplatkov: 2430 €
K dispozícii od: 01.07.2026
Popis:
Hľadáme nového nájomcu pre náš krásny a rodinne prívetivý byt v Leipzig-Schleussig, ktorý bude k dispozícii od 01.07.2026.
Byt má balkón.
4. poschodie. Výťah je k dispozícii. Podzemná garáž je možná za príplatok. Vstavaná kuchyňa môže byť prevzatá za príplatok.
K dispozícii je aj záhrada na spoločné využitie.
Lokalita:
Byt sa nachádza v skvelej dopravnej dostupnosti. Obchody, lekári, školy a škôlky sú v bezprostrednej blízkosti. Spojenie s MHD je výborné.
Ak máte záujem o prehliadku, napíšte mi, prosím, krátku správu s niekoľkými informáciami o sebe (povolanie, počet sťahujúcich sa osôb, mesačný čistý príjem).
Teším sa na vaše správy!
Roedelstr 12a
Parametre nehnuteľnosti
| Vek | Nad 50 rokov |
|---|---|
| Dispozícia | 4+kk |
| Číslo inzerátu | 1015654 |
| Cena za jednotku | 15,81 € / m2 |
| Stav | Veľmi dobrý |
|---|---|
| Poschodie | 4. poschodie z 4 |
| Úžitková plocha | 148 m² |
Čo táto nehnuteľnosť ponúka?
| Garáž | |
| MHD 0 minút pešo |
| Výťah |
V okolí nehnuteľnosti nájdete
Stále hľadáte to pravé?
Nastavte si strážneho psa. Ponuky vybrané na mieru dostanete súhrnne 1× denne e-mailom. S Premium profilom máte po ruke rovno 5 strážcov a keď sa niečo objaví, informujú vás obratom.












