
Predaj bytu 2+kk • 55 m² bez realitkyZakšínská, Praha - Střížkov
RK nekontaktovat. Psát správu. Čislo neplatné.
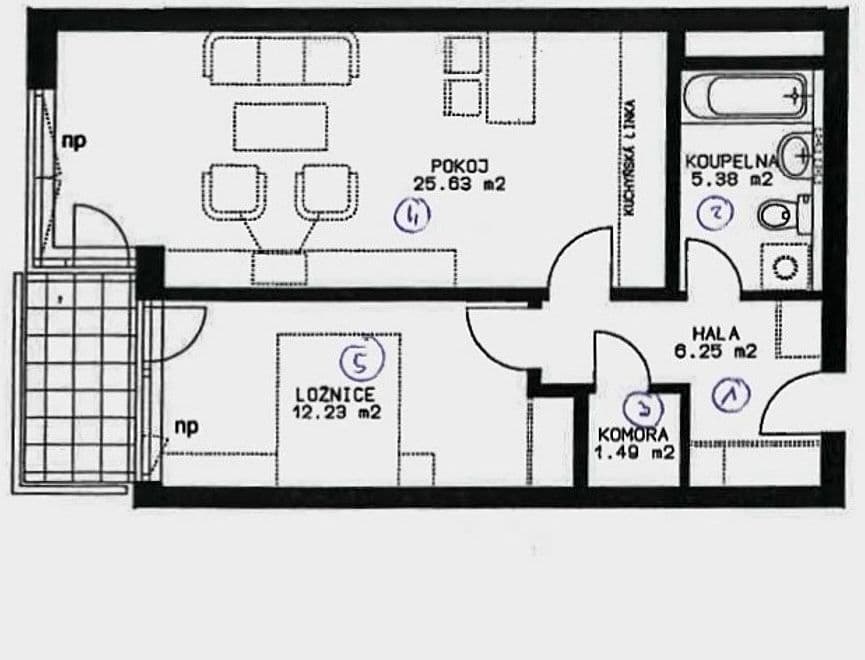
Nabízím k prodeji světlý a prakticky řešený byt 2+kk o velikosti cca celkem cca 54,8 m² (včetně balkonu), situovaný ve 2. nadzemním podlaží moderního rezidenčního projektu FINeP – Park Prosek, Praha 9.
Byt je orientovaný na západ, díky čemuž nabízí dostatek přirozeného světla a příjemnou atmosféru zejména v odpoledních hodinách.
Dispozice a vybavení:
• obývací pokoj s kuchyňskou linkou
• samostatná ložnice
• koupelna s vanou
• zasklený balkon (cca 3,8 m²)
• nová kuchyňská linka v záruce
• filter na vodu / revezní osmóza
• praktické dispoziční řešení
Garáž:
• možnost dokoupení garážového stání
Lokalita:
Velmi klidná a oblíbená část Prahy 9 – Střížkov.
V docházkové vzdálenosti metro C – Střížkov (cca 8 minut), kompletní občanská vybavenost v okolí (obchody, restaurace, školy, školky).
Milovníci přírody ocení blízkost parků – Park Přátelství a Ďáblický háj.
Ideální jako:
• vlastní bydlení
• investice na pronájem (výborná poptávka v lokalitě)
Parametre nehnuteľnosti
| Dostupné od | 31. 7. 2026 |
|---|---|
| Konštrukcia budovy | Zmiešaná |
| Vybavené | Čiastočne |
| Číslo inzerátu | 1015508 |
| PENB | B - Veľmi úsporné |
| Úžitková plocha | 55 m² |
| Stav | Veľmi dobrý |
|---|---|
| Dispozícia | 2+kk |
| Poschodie | 2. poschodie z 7 |
| Vlastníctvo | Osobné |
| Umiestnenie | Tichá lokalita |
| Cena za jednotku | 150 909,09 CZK / m2 |
Vyberáte byt?
Majte istotu, že máte všetky dôležité informácie!
Čo táto nehnuteľnosť ponúka?
| Garáž | |
| Lodžia 3,8 m² | |
| MHD 3 minúty pešo |
| Výťah | |
| Parkovanie |
V okolí nehnuteľnosti nájdete
Stále hľadáte to pravé?
Nastavte si strážneho psa. Ponuky vybrané na mieru dostanete súhrnne 1× denne e-mailom. S Premium profilom máte po ruke rovno 5 strážcov a keď sa niečo objaví, informujú vás obratom.














