Prenájom nebytového priestoru • 1 m² bez realitkyIm Tiefenbruch 5, , Dolné Sasko
Im Tiefenbruch 5, , Dolné SaskoMHD 2 minúty pešoIm priemyselnej zóne sever v Lehrte vzniká niekoľko skladových hál a XXL garáží s dokonalým napojením na diaľnice.
**DÔLEŽITÉ**
Nejde o obyčajné prefabrikované haly, ale o masívne múrované jednotky z pórobetónu (24–30 cm hrúbka steny).
Strecha pozostáva zo 12 cm silných, zateplených sandwich panelov – ideálne pre vyvážené vnútorné prostredie.
Všeobecné informácie:
- úplne dlazdená prístupová cesta
- prístup do hál/garáží priamo zo zeme
- možnosť otáčania
- video dohľad
- prístup 24 hodín denne, 7 dní v týždni
- vynikajúce napojenie na diaľnice
- pozemok osvetlený
Prosím, prečítajte si špecifikácie vybavenia garáží a hál s kanceláriami.
Nasledujúce jednotky sú k dispozícii:
XXL SKLAD / GARÁŽ TYP 1:
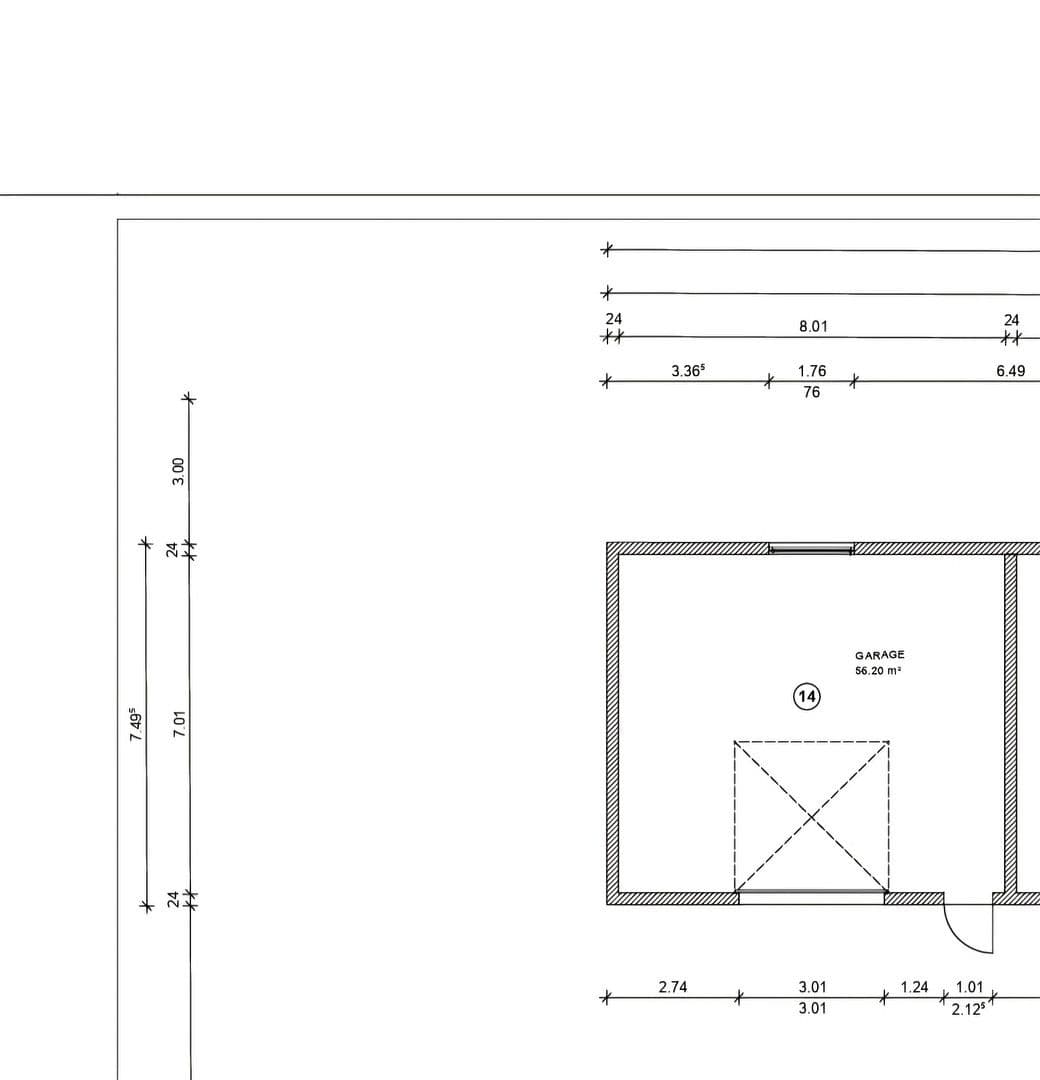
56 m² (7 metrov hĺbka, 8 metrov šírka a cca 5,50 m výška)
XXL SKLAD / GARÁŽ TYP 2:
64 m² (8 metrov hĺbka, 8 metrov šírka a cca 5,50 m výška)
SKLADOVÁ HALA S KANCELÁRIAMI TYP 1:
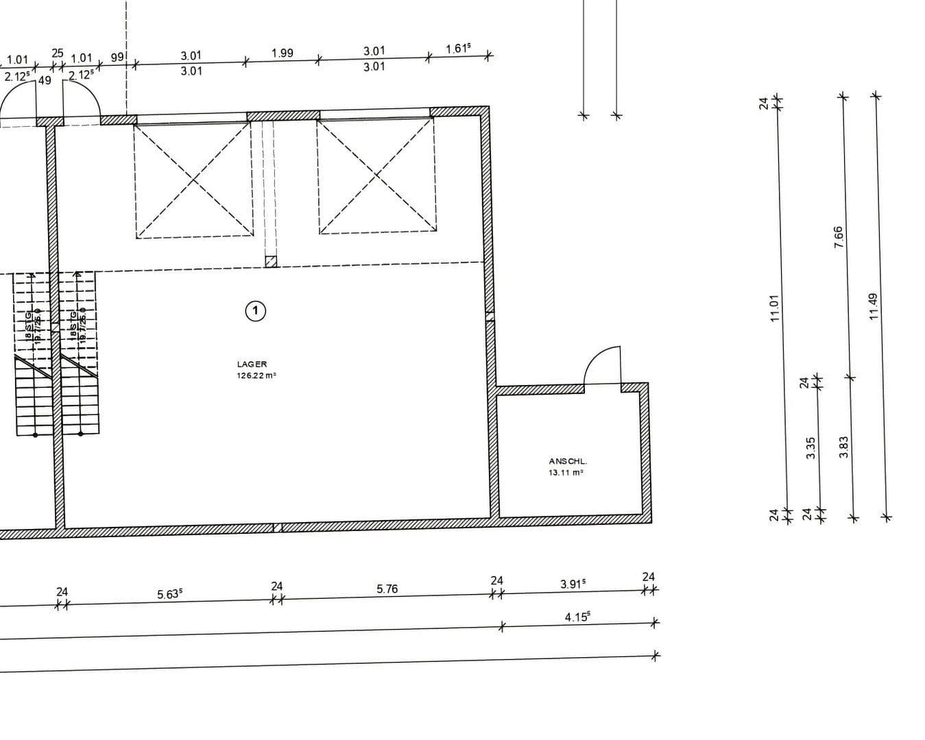
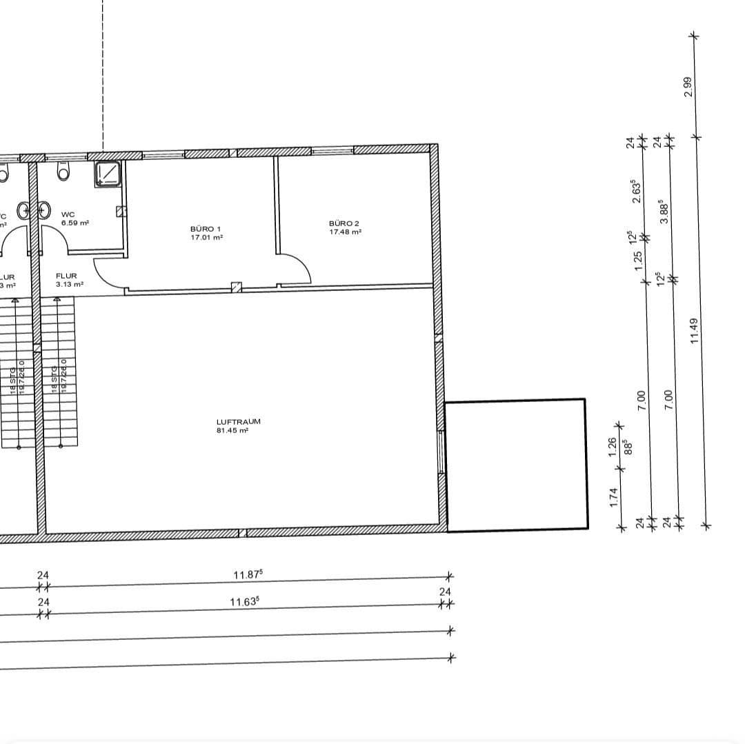
171 m² (rozložených na 126 m² v prízemí a 45 m² v nadzemí)
V nadzemí sa nachádzajú 2 kancelárske miestnosti a 1 kúpeľňa.
SKLADOVÁ HALA S KANCELÁRIAMI TYP 2:
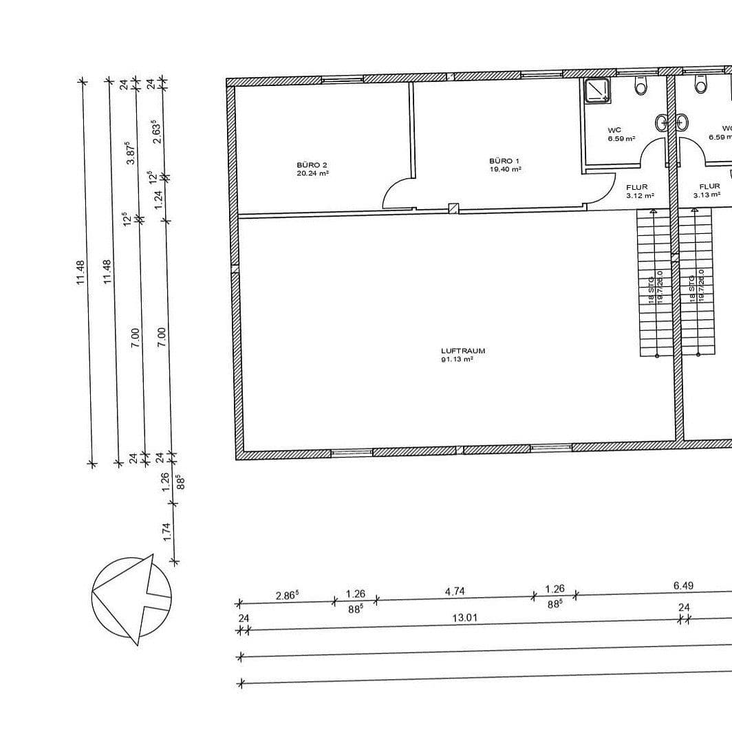
191 m² (rozdelených na 141 m² v prízemí a 50 m² v nadzemí)
V nadzemí sa nachádzajú 2 kancelárske miestnosti a 1 kúpeľňa.
Poznámka k využitiu:
Jednotky sú ideálne pre skladovanie, logistiku a podnikateľskú činnosť.
Nie je povolené:
- prevádzka autoservisov
- používanie zdvihacích plošin
Radi Vám dohodneme termín na obhliadku, ak máte záujem.
Vybavenie XXL SKLAD / GARÁŽ TYP 1 a TYP 2:
- priemyselne vyhladená betónová podlaha
- zateplená elektrická sekčná brána (priechod 3,50 m vysoký a 3 m široký)
- dodatočný vstup cez vlastné dvere
- osvetlenie a elektrické pripojenie
- výška stropu nad 5 metrami
- zateplená strecha
- okno vo výške nad 4 metre (pevný prvok)
- voliteľne k dispozícii sanitárne zariadenia
SKLADOVÁ HALA S KANCELÁRIAMI TYP 1:
171 m² (rozložených na 126 m² v prízemí a 45 m² v nadzemí)
V nadzemí sa nachádzajú 2 kancelárske miestnosti a 1 kúpeľňa.
SKLADOVÁ HALA S KANCELÁRIAMI TYP 2:
191 m² (rozdelených na 141 m² v prízemí a 50 m² v nadzemí)
V nadzemí sa nachádzajú 2 kancelárske miestnosti a 1 kúpeľňa.
Vybavenie SKLADOVEJ HALY S KANCELÁRIAMI TYP 1 a TYP 2:
- priemyselne vyhladená betónová podlaha
- 2 zateplené elektrické sekčné brány (priechod 3 m vysoký a 3 m široký)
- dodatočný vstup cez vlastné dvere
- osvetlenie a elektrické pripojenie
- výška stropu cca 7 metrov
- zateplená strecha
- 2 veľké okná vo výške nad 6 metrov (pevný prvok)
- kúpeľňa v 1. poschodí
- 2 kancelárie v 1. poschodí (pozri pôdorys)
- internetové pripojenie v kanceláriách
- dlažba v kanceláriách
- pripojenia pre kuchynský kút v kanceláriách
Parametre nehnuteľnosti
| Vek | Nad 50 rokov |
|---|---|
| Číslo inzerátu | 1015106 |
| Cena za jednotku | 1 € / m2 |
| Stav | Novostavba |
|---|---|
| Plocha nebytového priestoru | 1 m² |
Čo táto nehnuteľnosť ponúka?
| MHD 2 minúty pešo |
V okolí nehnuteľnosti nájdete
Stále hľadáte to pravé?
Nastavte si strážneho psa. Ponuky vybrané na mieru dostanete súhrnne 1× denne e-mailom. S Premium profilom máte po ruke rovno 5 strážcov a keď sa niečo objaví, informujú vás obratom.











