Predaj bytu 1+1 • 32 m² bez realitkyŽižkova, Týnec nad Labem - Týnec nad Labem, Středočeský kraj
Nabízíme k prodeji útulný 1+1 byt o výměře 32 m², situovaný v přízemí rodinného domu. Nemovitost je v rekonstrukci, což představuje jedinečnou příležitost ji přizpůsobit svým vlastním představám a vkusu. Byt je nabízen v osobním vlastnictví a dosud není zařízen, takže máte možnost zařídit si jej přesně podle svých potřeb. Byt je zcela samostatný, vlastní měření el. energie, tudíž vlastní ohřev vody el. bojlerem a topení tepelným čerpadlem, případně krbovými kamny. Vážným zájemcům je možnost zaslat vizualizace.
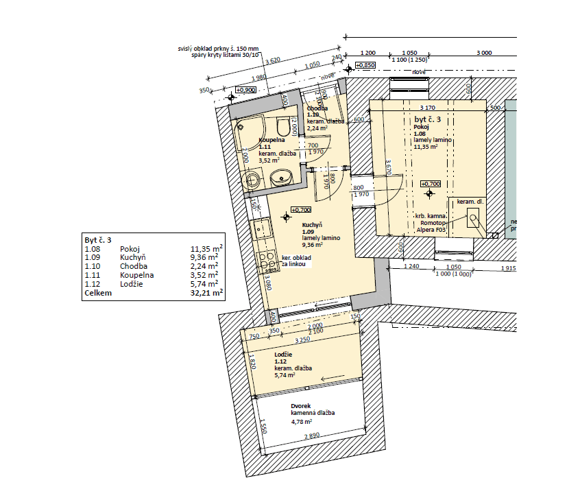
Součástí bytu je také lodžie o rozloze 5,74 m², která služebně rozšiřuje obytnou plochu a nabízí prostor pro chvíle odpočinku.
Kontaktujte nás prosím prostřednictvím zpráv na komunikační platformě. Těším se na Vaši nabídku a možnosti společné prohlídky této nemovitosti, která čeká jen na nového majitele, jenž ji promění ve své ideální místo k životu. Na jakékoliv projevy realitních makléřů či kanceláří nebude brán zřetel.
Parametre nehnuteľnosti
| Vek | 30 - 50 rokov |
|---|---|
| Stav | V rekonštrukcii |
| Dispozícia | 1+1 |
| Poschodie | Prízemie |
| Vykurovanie | Ostatné |
| Vlastníctvo | Osobné |
| Rekonštrukcia | Kompletné |
| Úžitková plocha | 32 m² |
| Dostupné od | 31. 8. 2026 |
|---|---|
| Konštrukcia budovy | Tehla |
| Vybavené | Nevybavené |
| Prevedenie | Štandardné |
| Číslo inzerátu | 1015037 |
| PENB | G - Mimoriadne nehospodárne |
| Umiestnenie | Centrum mesta |
| Cena za jednotku | 57 812,50 CZK / m2 |
Vyberáte byt?
Majte istotu, že máte všetky dôležité informácie!
Čo táto nehnuteľnosť ponúka?
| Lodžia 5,74 m² |
| Parkovanie |
V okolí nehnuteľnosti nájdete
Stále hľadáte to pravé?
Nastavte si strážneho psa. Ponuky vybrané na mieru dostanete súhrnne 1× denne e-mailom. S Premium profilom máte po ruke rovno 5 strážcov a keď sa niečo objaví, informujú vás obratom.



