Predaj bytu 2+1 • 60 m² bez realitky, Bavorsko
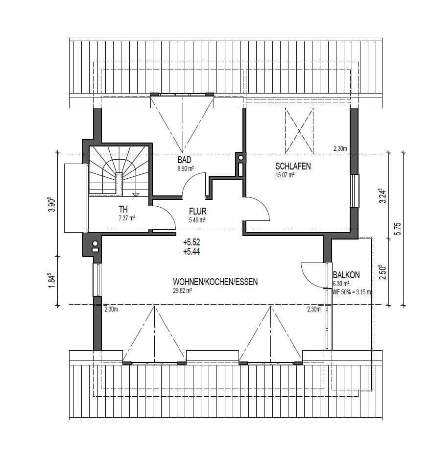
, BavorskoMHD 3 minúty pešo • ParkovanieTáto udržiavaná 2-izbová bytosť s približne 60,65 m² obytnou plochou sa nachádza v podkroví pokojného viacrodinného domu s iba troma bytovými jednotkami. Byt je momentálne prenajatý, a preto je ideálny pre kapitálových investorov, zároveň však ponúka perspektívu pre vlastné využitie.
Jedinečným prvkom je balkón s pekným výhľadom, ktorý poskytuje dodatočný komfort bývania a príjemné miesto na pobyt na čerstvom vzduchu. K bytu patrí aj vlastné parkovacie miesto, ktoré ponuku dopĺňa. Navyše je tu možnosť inštalácie wallboxu pre elektromobilitu.
Budova bola tento rok komplexne zmodernizovaná: schodisko bolo úplne zrekonštruované a vybavené novými oknami, rovnako bola inštalovaná nová vstupná dvere. Pre budúcnosť orientované a energeticky úsporné zásobovanie zabezpečuje novo inštalované vzduchové tepelné čerpadlo. Okrem toho sa v súčasnosti obnovuje fasáda domu, čo ďalej zvyšuje celkový stav nehnuteľnosti.
Vitajte v jednej z najžiadanejších rezidenčných lokalít Goldbachu! Tu sa spája pokojné, prírodné prostredie s blízkosťou mesta Aschaffenburg.
Centrum Aschaffenburgu dosiahnete za pár minút autom alebo autobusom. Očakáva vás tam množstvo obchodov, reštaurácií, kaviarní a kultúrnych ponúk. Ideálne je aj napojenie na diaľnicu A3 – ako pre dochádzajúcich do Frankfurtu, tak aj smerom k Würzburgu, ktorí profitujú z krátkych ciest a rýchlej dostupnosti.
Materské školy, škôlky, školy ako základná škola Goldbach, športové kluby a všetky zariadenia dennej potreby sa nachádzajú v bezprostrednej blízkosti, čo robí lokalitu mimoriadne rodinne priateľskou.
Ďalším lákadlom je nedaleko situovaný lesný bazén, ktorý bol nedávno zrekonštruovaný. Je možné sa tam pešo dostať do 10 minút.
*Nežiadú sa dopyty maklérov!*
Nová energetická správa sa práve pripravuje.
Parametre nehnuteľnosti
| Vek | Nad 50 rokov |
|---|---|
| Stav | Dobrý |
| Poschodie | 2. poschodie z 2 |
| Úžitková plocha | 60 m² |
| Dostupné od | 27. 4. 2026 |
|---|---|
| Dispozícia | 2+1 |
| Číslo inzerátu | 1014907 |
| Cena za jednotku | 3 250 € / m2 |
Čo táto nehnuteľnosť ponúka?
| Balkón | |
| Parkovanie |
| Pivnica | |
| MHD 3 minúty pešo |
V okolí nehnuteľnosti nájdete
Stále hľadáte to pravé?
Nastavte si strážneho psa. Ponuky vybrané na mieru dostanete súhrnne 1× denne e-mailom. S Premium profilom máte po ruke rovno 5 strážcov a keď sa niečo objaví, informujú vás obratom.










