Predaj domu 4+1 • 125 m² bez realitky, Dolné Sasko
, Dolné SaskoMHD 6minút pešo • Parkovanie • GarážTento svetlom zalitý bungalow bol dokončený vo februári 2025 a ponúka na svojich 124 m² dostatok priestoru aj pre staršie páry alebo rodiny s deťmi.
Predsien, v ktorej sa nachádza vstup do hosťovskej kúpeľne s toaletou/umývadlom/vanou, je oddelený od chodby zvukotesnými dverami.
Priestranná obývacia jedáleň má veľké okno s dvoma krídlami a poskytuje priamy prístup na terasu, do záhrady so slanou bazénom, do garáže a drevenej chaty.
Vedľa kuchyne sa nachádza samostatná technická miestnosť s vykurovacím systémom, priestorom pre práčku/ssušičku, policami a pre veľkú kombináciu chladničky/mraziacej skrine.
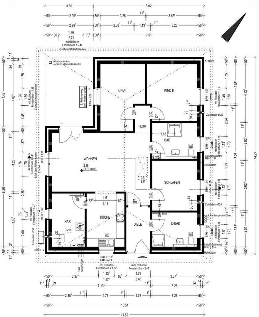
Aktuálne využitie izieb:
Spálňa: Spánok
Dieťa II: Hosťovská izba
Dieťa I: Spánok
Obývačka: Obývacia jedáleň
D-kúpeľňa: Hosťovská kúpeľňa
Kúpeľňa: Hlavná kúpeľňa
Obe kúpeľne sú vybavené bezprahovými sprchami (odtok pomocou lišty). Navyše má hlavná kúpeľňa vyvýšené sprchové WC, ktoré je tak prispôsobené pre zdravotne postihnutých.
Vďaka suchému zatepľovaciemu rámovému systému vznikol na podkroví 30 m² veľký skladovací priestor/možnosť úprav, ktorý je už uložený pod podlahou.
Obytná plocha: 124 m²
Vonkové rozmery: 11,52 m x 14,27 m
Sedlová strecha 35°
Miestnosti v prízemí
(Údaje o obytnej ploche podľa WoFlV)
Obývačka: 32,10 m²
Spálňa: 11,64 m²
Detská izba I: 13,93 m²
Detská izba II: 14,33 m²
Kuchyňa: 10,52 m²
Kúpeľňa: 8,41 m²
D-kúpeľňa: 8,01 m²
Predsien: 4,95 m²
Chodba: 2,19 m²
Miestnosť pre pripojenie domu: 9,08 m²
Zastrešená terasa: 8,97 m²
Stavebné podklady sú kompletné.
Neuenkirchen je obec v Dolnom Sasku so 7 obvodmi a patrí do spoločenstva Land Hadeln v okrese Cuxhaven a nachádza sa v blízkosti Otterndorfu, prímořského mesta s dobrou infraštruktúrou a námorným nádychom uprostred malebnej krajiny severonemeckej nížiny.
Obec zaujme blízkosťou k Severnému moru a ponúka pôvabnú vidiecku atmosféru s vyvinutou dedinskou infraštruktúrou a je ideálnym východiskovým bodom pre rekreačných návštevníkov a prírodných nadšencov.
Napriek vidieckemu charakteru sú väčšie mestá – Cuxhaven, Bremerhaven, Stade … – vďaka výhodnej polohe s prístupom na B73 a A27 dobre dostupné, čo ešte viac zvyšuje atraktivitu obce ako obydlia.
Nehnuteľnosť sa nachádza v centrálnej časti hlavnej obce Neuenkirchen na okraji uzavretej novej stavebnej štvrte na pozemku o veľkosti 1028 m².
Možnosti nákupu potrebných vecí máte pešo v obchode „Dein Dorfladen“.
Lekára, zubára, reštauráciu, mäsiara, kaderníka a dedinskú kultúrnu domovinu dosiahnete len 400 metrami, materská škola je vzdialená 900 metrov.
Najbližšia zastávka autobusu je taktiež 400 metrov vzdialená a ponúka spojenie s verejnou dopravou, okrem iného do Otterndorfu a Cuxhavenu.
Dom je obložený dekoratívnym múrovým obkladom.
Na všetkých oknách sú motorom ovládané rolety, stropy vo všetkých miestnostiach majú výšku 2,72 m. Každá samostatná obytná miestnosť má vlastný termostat pre individuálne nastavenie teploty.
Kúpeľne, kuchyňa a technická miestnosť sú vybavené ventilačným systémom.
Obe kúpeľne sú kompletne obložené z podlahovej úrovne, ako aj obvodovo v rozmedzí 1,20 m a v sprchovej zóne do 2,10 m, a sú vybavené sprchovými armaturami od spoločnosti Grohe (s termostatmi).
Dve z izieb (Spálňa/Dieťa II) majú vysoko kvalitnú koberčekovú podlahu z guľôčkového prímesi a ostatné miestnosti majú vinylovú podlahu.
Stropné svetlá so zabudovanými spotmi v kúpeľniach, chodbe a obývacej jedálni.
Vo všetkých izbách je okrem trojitých zásuviek prítomné aj dátové pripojenie.
Na streche sa okrem satelitnej antény nachádza 4 solárne panely s celkovým výkonom 2 kWp a na podkroví je batéria s kapacitou 2,24 kWh. Prístup na podkroví je zabezpečený v predsieni, nie v oblasti chodby. Vďaka ďalším oknám má podkroví prirodzené denné svetlo.
Internetové pripojenie je zabezpečené prostredníctvom 5G antény namontovanej na dome.
K dispozícii je betónová prefabrikovaná garáž s rozmermi 3 x 6 m s motorom prevádzkovanými dverami a ďalšie dve parkovacie miesta.
Drevená chata z drevených dosiek (45 mm) so zatvoreným priestorom 3 x 3 m a 3 x 3 m otvoreným frontom sa nachádza v zadnej časti záhrady.
Jeden meter zapustený osemhranný bazén naplnený slanou vodou s rozmermi 7,25 x 4,60 x 1,50 m so systémom pieskového filtra a so systémom slanej elektrolytickej úpravy vody je chránený stabilným 8 x 5 m veľkým stanom firmy „Stabile Zelte“ pred poveternostnými vplyvmi.
Ďalšie fotografie interiéru domu sú k dispozícii po dohode.
Parametre nehnuteľnosti
| Vek | Nad 50 rokov |
|---|---|
| Dispozícia | 4+1 |
| PENB | A - Mimoriadne úsporné |
| Plocha pozemku | 1 028 m² |
| Cena za jednotku | 3 992 € / m2 |
| Stav | Veľmi dobrý |
|---|---|
| Číslo inzerátu | 1014819 |
| Úžitková plocha | 125 m² |
| Celkové poschodia | 1 |
Čo táto nehnuteľnosť ponúka?
| Bezbariérový prístup | |
| Parkovanie | |
| Terasa |
| Garáž | |
| MHD 6 minút pešo |
V okolí nehnuteľnosti nájdete
Stále hľadáte to pravé?
Nastavte si strážneho psa. Ponuky vybrané na mieru dostanete súhrnne 1× denne e-mailom. S Premium profilom máte po ruke rovno 5 strážcov a keď sa niečo objaví, informujú vás obratom.




















